Wohnobjekt

BAUSTART IST ERFOLGT! «Dorf Ottikon»: Freiraum und Wohnauswahl in einzigartigem Ensemble

CHF 790'000

 | 

74 m²

 | 

2.5 Zimmer

Ort & Lage

Grüningerstrasse 181, 8625 Gossau ZH

BAUSTART IST ERFOLGT! «Dorf Ottikon»: Freiraum und Wohnauswahl in einzigartigem Ensemble - Karte

Verfügbarkeit

Bezugstermin:
1. Dezember 2026

Kosten

Kaufpreis:
CHF 790'000

Angaben

Objektkategorie
Eigentum
Status
Verfügbar
Objektreferenz
0072_Neu_C002_2.5_PU8
Adresse
Grüningerstrasse 181
PLZ/Ort
8625 Gossau ZH
Region
Hinwil
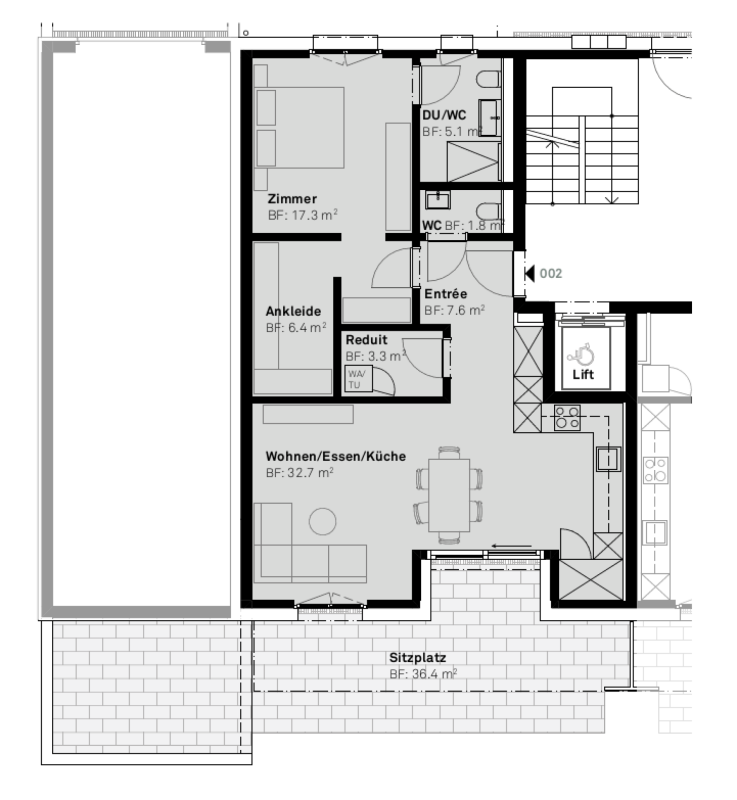
Wohnfläche
74 m²
Anzahl Zimmer
2.5 Zi
Etage
EG
Baujahr
2025
Kategorie
Wohnung

Merkmale und Ausstattung

Haustiere erlaubt
Balkon
Kabelfernsehen
Ladestation
Garage
Parkplatz
Tumbler
Waschmaschine
Kinderfreundlich
Parterre
Sonnig

Beschreibung

Als kleine Wacht der Gemeinde Gossau im Zürcher Oberland liegt Ottikon ruhig und eingebettet in die Natur. Hier geniesst man Landleben mit Stadtanschluss. Der Bus fährt in zehn Minuten nach Wetzikon, auf der Forchautobahn dauert die Fahrt mit dem Privatwagen nach Uster kurze zwölf Minuten, nach Zürich nur rund zwanzig Minuten.

Im gewachsenen, gepflegten Dorf entsteht ein einzigartiges Ensemble, das Freiraum für individuelle Lebensformen mit herzlicher Nachbarschaft verbindet: Das bestehende Haupthaus schaut bereits auf eine über 200-jährige Geschichte zurück. Eine Hälfte davon wird zu zwei Hausteilen mit 4½ und 6½ Zimmern auf mehreren Etagen umgebaut - topmodern, aber mit historischem Charme. Die zweite Gebäudehälfte weicht einem Ersatzbau, der drei Wohnungen mit je 3½ Zimmern beherbergt. Vervollständigt wird das Trio durch einen Neubau mit sechs Eigentumswohnungen von 2½ bis 4½ Zimmern.

Umbau, Ersatzbau und Neubau haben ihren eigenen Charakter und Stil, dennoch passen sie perfekt zusammen und ins Ortsbild. Eine hochwertige Massivbauweise, grosszügige Grundrisse, moderner Wohnkomfort sowie ein erstklassiger Ausbau prägen sowohl die beiden Hausteile wie auch die Eigentumswohnungen. Jede Einheit profitiert dank Gartensitzplatz, Loggia oder Balkon von einem privaten Aussenbereich; ein geschützter Gemeinschaftsplatz mit Pergola und Hochbeeten lädt zu Begegnung und Spiel. Die Tiefgarage, die im Ersatz- und Neubau per Lift zu erreichen ist, bietet ausreichend Stellplätze. Zum schonenden Umgang mit Ressourcen sind für das Ensemble eine Photovoltaik-Anlage, eine Erdsonden-Wärmepumpe sowie ein Last- und Lademanagementsystem für E-Mobilität geplant.

Schenken Sie Ihrem Leben neuen Raum - wir beraten Sie gerne zu Ihren Wohnoptionen in «Ottikon Dorf».

Anbieter
art-im IMMOBILIEN AG
art-im Immobilien AG
Anbieter kontaktieren
Eine persönliche Nachricht erhöht die Erfolgschancen.
Partner-Netzwerk

Kontakt

art-im Immobilien AG
Gino Ponsillo
  • Gino Ponsillo
  • art-im IMMOBILIEN AG
  • gibt Ihnen gerne Auskunft.
  • Nummer Anzeigen

  • Einer von mehr als 80 Premium-Partnern
  • Projekte schon in der Vorvermarktung auf Erstbezug.ch
  • Garantierte Antwort
Anbieter kontaktieren