Wohnobjekt

Helle 4.5-Zimmer Gartenwohnung mit Sitzplatz und Garten

CHF 1'110'000

 | 

115 m²

 | 

4.5 Zimmer

Ort & Lage

Lindenstrasse 8, 8483 Kollbrunn

Helle 4.5-Zimmer Gartenwohnung mit Sitzplatz und Garten - Karte

Verfügbarkeit

Nach Vereinbarung

Kosten

Kaufpreis:
CHF 1'110'000

Angaben

Objektkategorie
Eigentum
Status
Verfügbar
Objektreferenz
B1
Adresse
Lindenstrasse 8
PLZ/Ort
8483 Kollbrunn
Region
Winterthur
Wohnfläche
115 m²
Anzahl Zimmer
4.5 Zi
Etage
EG
Baujahr
2027
Kategorie
Wohnung

Merkmale und Ausstattung

Balkon
Lift
Garage
Kinderfreundlich
Parterre
Sonnig
Rollstuhlgängig

Beschreibung

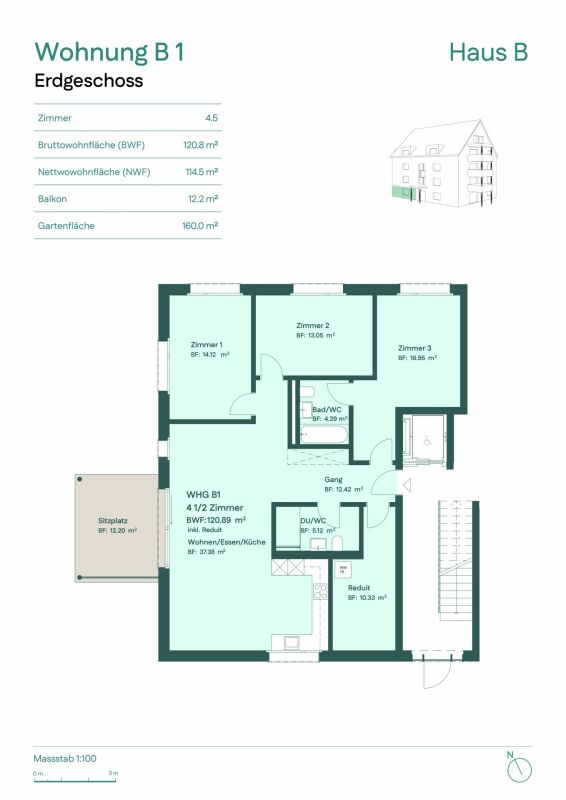
4.5-Zimmer Gartenwohnung

Neubauprojekt Kollbrunn
In Kollbrunn liegt die Natur direkt vor Ihrer Haustür: Ein Paradies für Wanderer, Velofahrer und Geniesser, die dem Trubel der Stadt entfliehen möchten, ohne auf eine gute Anbindung zu verzichten. Es laden nicht nur die weitläufigen Wege entlang der Töss zu ausgedehnten Spaziergängen ein, sondern auch einzigartige Naturdenkmäler.

4.5-Zimmer-Gartenwohnung
Diese attraktive 4.5-Zimmer-Gartenwohnung überzeugt durch einen durchdachten Grundriss, helle Räume und einen grosszügigen Wohnbereich. Das Herzstück der Wohnung bildet der offene Wohn-, Ess- und Küchenbereich, der viel Platz für gemeinsames Leben, Kochen und Entspannen bietet. Von hier aus gelangen Sie direkt auf Ihren privaten und gemütlichen Sitzplatz. Drei gut geschnittene Zimmer bieten vielfältige Nutzungsmöglichkeiten. Das Badezimmer mit Badewanne/WC sowie ein separates Gäste-WC mit Dusche sorgen für Wohnkomfort. Praktischen Stauraum bietet das grosszügige Reduit mit Waschturm.

Kontaktieren Sie uns für ein unverbindliches Beratungsgespräch an der Lindenstrasse 8 in Kollbrunn!

Die Wohnung-Highlights auf einen Blick

  • Grosszügiger Wohn-/Ess-/Küchenbereich
  • Zwei Nasszellen (Bad/WC und DU/WC)
  • Privater Gartensitzplatz (12 m²) mit ca. 160 m² Gartenfläche
  • Reduit mit Waschturm in der Wohnung
  • Helle Räume und funktionaler Grundriss
  • Kellerraum von 9 m² im UG

Parkplätze und zusätzliche Kellerräume

Parkplätze Standardgrössen: CHF 42'000.--
Parkplätze Sondergrössen: ab CHF 45'000.-- 

Beim Kauf einer 4.5 oder 5.5 Zimmer-Wohnung können zusätzlich zwei Garagenparkplätze erworben werden. Grundsätzlich wird bei einer 3.5-Zimmer-Wohnung ein Garagenparkplatz zum Kauf angeboten.

Zusätzliche Kellerräume können je nach Verfügbarkeit ab CHF 22'050.- dazu erworben werden.

Zahlungsmodus
Bei Unterzeichnung des Reservationsvertrages ist eine Anzahlung von CHF 40'000.-- fällig. 20% vom  Verkaufspreis (inkl. Anzahlung) werden bei der Beurkundung des Kaufvertrages verrechnet.

Der Restbetrag bei Schlüsselübergabe/Eigentumsübertragung. Bauherrenwünsche sind innert 30 Tagen nach Rechnungsstellung zu bezahlen - spätestens bei Eigentumsübertragung.

Bemerkungen:
Handänderungs- und Notariatskosten werden je zur Hälfte von Käufer und Verkäufer übernommen. 

Zwischenverkauf und Preisänderungen vorbehalten.

Anbieter
Himmelrich Partner AG
Himmelrich Partner AG
Anbieter kontaktieren
Eine persönliche Nachricht erhöht die Erfolgschancen.
Partner-Netzwerk

Kontakt

Himmelrich Partner AG
Sandra Beerli
  • Sandra Beerli
  • Himmelrich Partner AG
  • gibt Ihnen gerne Auskunft.
  • Nummer Anzeigen

  • Einer von mehr als 80 Premium-Partnern
  • Projekte schon in der Vorvermarktung auf Erstbezug.ch
  • Garantierte Antwort
Anbieter kontaktieren