Wohnobjekt

Fünf grosszügige Einfamilienhäuser in Madiswil

keine Preisangabe

 | 

148 m²

 | 

6.5 Zimmer

Ort & Lage

Mostereiweg, 4934 Madiswil

Fünf grosszügige Einfamilienhäuser in Madiswil - Karte

Kosten

Kaufpreis:
keine Preisangabe

Angaben

Objektkategorie
Eigentum
Objektreferenz
2210ec40-9a59-4c75-914c-dbdda9044e52
Adresse
Mostereiweg
PLZ/Ort
4934 Madiswil
Region
Oberaargau
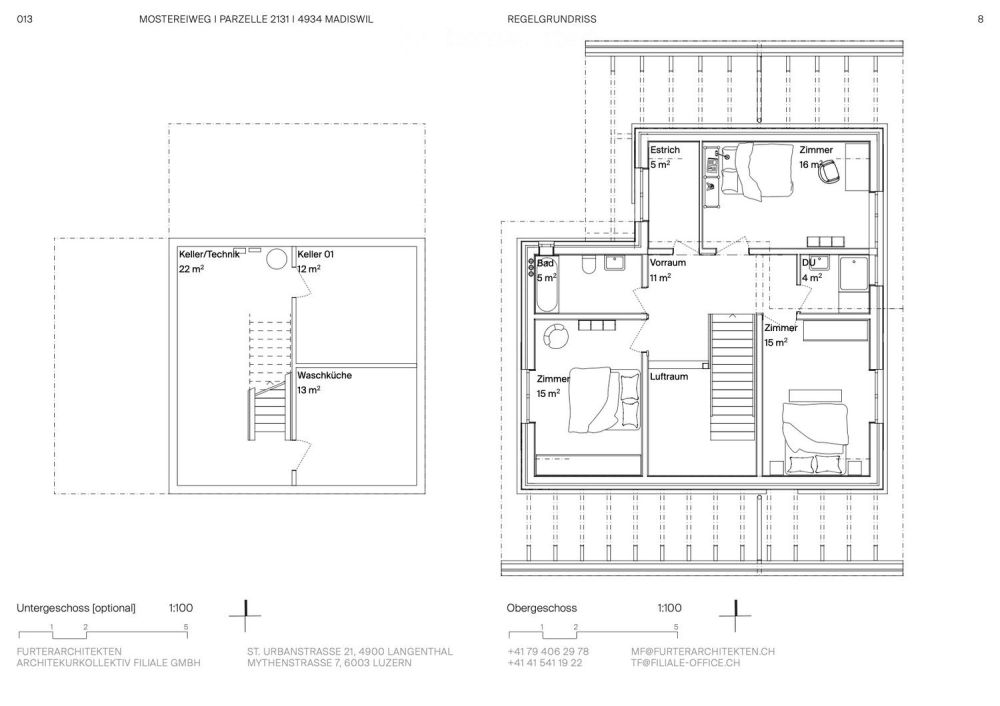
Wohnfläche
148 m²
Anzahl Zimmer
6.5
Baujahr
2026

Merkmale und Ausstattung

Balkon
Feuerstelle
Garage
Schöne Aussicht
Parkplatz
Kinderfreundlich
Rollstuhlgängig
Minergie

Beschreibung

Am Mostereiweg in Madiswil werden an zentraler und ruhiger Wohnlage fünf Einfamilienhäuser geplant. Die fünf Bauten fügen sich harmonisch in den historischen Dorfkern von Madiswil ein. Sie sind in einer effizienten und nachhaltigen Holzkonstruktionsweise konzipiert und stehen inmitten eines grosszügigen Gartens. Zu diesem hin sind die Wohnräume im Erdgeschoss mehrseitig ausgerichtet. Innen- und Außenräume verbinden sich gezielt und schaffen eine grosszügige, helle Wohnatmosphäre. Die effiziente und durchdachte Gebäudestruktur ermöglicht es Ihnen, Ihr Wohnhaus im weiteren Projektverlauf selbst mitzugestalten – wir begleiten Sie dabei gerne.

Kontakt

Tobias Furter
  • Tobias Furter
  • gibt Ihnen gerne Auskunft.
  • Nummer Anzeigen

Auch inseriert auf:

homegate.ch