Wohnobjekt

Wohnung in Erstbezug 2.5 Zimmer mit Waschküche

CHF 1'050

 | 

2.5 Zimmer

Ort & Lage

Via Carlo Maderno, 6500 Bellinzona

Wohnung in Erstbezug 2.5 Zimmer mit Waschküche - Karte

Kosten

Mietpreis:
CHF 1'050

Angaben

Objektkategorie
Miete
Objektreferenz
764f6456-bee7-4747-b0e6-5b0335741493
Adresse
Via Carlo Maderno
PLZ/Ort
6500 Bellinzona
Region
Bellinzona
Anzahl Zimmer
2.5

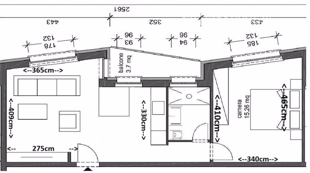
Beschreibung

Miete von 2,5-Zimmer-Wohnung - ErstbezugOffene Küche mit Geschirrspüler und Insel mit integriertem Tisch.Großes Zimmer und ein Badezimmer mit großzügiger Dusche und Waschküche in der Wohnung.Heizung mit Heizschlangen, Fenster mit Dreifachverglasung.Terrasse mit schönem Blick auf die Berge und die Burgen von Bellinzona. Große Helligkeit in allen Zimmern.Das Gebäude verfügt über 12 Wohnungen, mit Aufzug, komfortablen Kellerräumen und hohem Energiestandard. Auch die Akustik und der Komfort wurden sorgfältig gestaltet, um eine überdurchschnittliche Wohnqualität zu gewährleisten.Kleinere Haustiere sind auf Anfrage erlaubt.Kaution von 3 Monatsmieten erforderlich.Keine Abrechnung am Ende des Jahres, für eine bessere finanzielle Sicherheit der Mieter.Es stehen Außenparkplätze zur Verfügung: CHF 80.-Monatliche Miete: CHF 1'050.-Monatliche Vorauszahlung für Nebenkosten, ohne Schlussabrechnung: CHF 150.-Verfügbar ab sofort.

Kontakt

Auch inseriert auf:

immoscout24.ch