Wohnobjekt

4.5-Zimmer-Wohnung in Binningen

CHF 3'279

 | 

108 m²

 | 

4.5 Zimmer

Ort & Lage

Rebgasse 27, 4102 Binningen

4.5-Zimmer-Wohnung in Binningen - Karte

Kosten

Nettomiete:
CHF 2'839
Nebenkosten:
440
Mietpreis:
CHF 3'279

Angaben

Objektkategorie
Miete
Objektreferenz
8096d4cd-3f96-41e3-bc9c-86fe32b9bc7f
Adresse
Rebgasse 27
PLZ/Ort
4102 Binningen
Region
Arlesheim
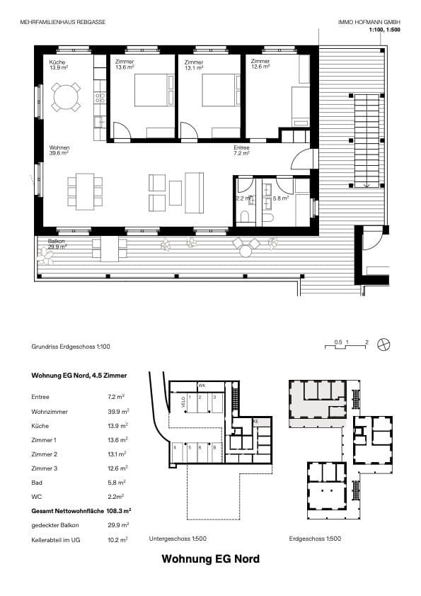
Wohnfläche
108 m²
Anzahl Zimmer
4.5
Etage
1
Baujahr
2025

Merkmale und Ausstattung

Balkon
Lift
Garage

Beschreibung

Die kleine Wohnüberbauung mit 9 Wohnungen besteht aus drei dreigeschossigen Gebäudekörpern, die sich noch im Bau befinden, jedoch ab dem 01. März 2026 oder nach Vereinbarung bezugsbereit sein werden. Die Wohnungen sind grosszügig bemessen und lichtdurchflutet, mit heller Holzdecke und Gussboden, die eine Atmosphäre moderner Gemütlichkeit vermitteln.
Die 4.5-Zimmer-Wohnung verfügt über einen großzügigen gedeckten Balkon. Zudem steht ein schöner Garten zur gemeinsamen Nutzung zur Verfügung. Die Wohnungen sind durch einen offenen Laubengang erschlossen.
Das Gebäude ist in konsequenter Holzbauweise errichtet.
Ein Garage-Platz kann dazu gemietet werden.

Kontakt

Gioia Hofmann / Immo Hofmann GmbH
  • Gioia Hofmann / Immo Hofmann GmbH
  • gibt Ihnen gerne Auskunft.

Auch inseriert auf:

homegate.ch