Wohnobjekt

Erstvermietung Moderne 4-Zimmer-Wohnung an perfekter Lage mit Aussicht

CHF 2'870

 | 

104 m²

 | 

4.5 Zimmer

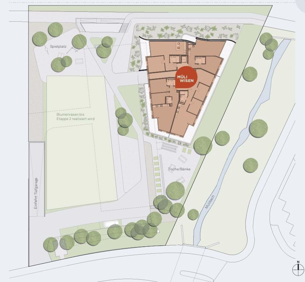
Ort & Lage

Mülibachstrasse 2, 8107 Buchs ZH

Erstvermietung Moderne 4-Zimmer-Wohnung an perfekter Lage mit Aussicht - Karte

Verfügbarkeit

Verfügbar ab:
13. Dezember 2025

Kosten

Nettomiete:
CHF 2'590
Nebenkosten:
280
Mietpreis:
CHF 2'870

Angaben

Objektkategorie
Miete
Objektreferenz
72bdba50-0f16-41f7-8e47-42cb8926390d
Adresse
Mülibachstrasse 2
PLZ/Ort
8107 Buchs ZH
Region
Dielsdorf
Wohnfläche
104 m²
Anzahl Zimmer
4.5
Etage
3
Baujahr
2025

Merkmale und Ausstattung

Balkon
Lift
Garage
Schöne Aussicht

Beschreibung

Willkommen in Ihrem neuen Zuhause: Diese stilvolle, lichtdurchflutete 4.5-Zimmer-Wohnung mit grosszügiger Terrasse befindet sich im 3. Obergeschoss eines im Dezember 2025 fertiggestellten Neubaus in Buchs ZH. Mit 103,9 m2 Wohnfläche plus 30,9 m2 Aussenraum/Terrasse, eigenem Waschraum und Lift bietet sie modernen Wohnkomfort auf höchstem Niveau. Bezugsbereit ab 13. Dezember 2025 Erstbezug garantiert. Ihre Highlights: Modernes Wohnen: Offene, hochwertige Küche, einladendes Wohnzimmer und helle Räume mit viel Tageslicht.Grosszügiger Aussenbereich: Sonnige Terrasse mit Morgen- und Mittagssonne, Blick auf Lägern und Altberg sowie Fernsicht auf die Glarner Alpen.Komfort pur: Privater Waschraum mit eigener Waschmaschine und Tumbler.Familienfreundlich: Spielplatz und Grünflächen in der Überbauung, zusätzliche Spiel- und Freizeitmöglichkeiten in der Nähe.Perfekte Lage: Optimal angebunden: SBB-Bahnhof nur 3 Gehminuten entfernt halbstündige Direktverbindungen nach Zürich und Baden. Autobahn A1 in unter 10 Minuten erreichbar.Ruhig & entspannt: Verkehrsberuhigte Umgebung, Wohnung liegt auf der vom Bahnhof abgewandten Seite.Parken leicht gemacht: Grundinstallation inkl. Lastmanagementsystem für den Anschluss von Elektrofahrzeugen (Ladestation optional). Tiefgaragenplatz optional für CHF 120. pro Monat.Die gelungene Kombination aus Neubauqualität, ruhiger Lage und hervorragender Verkehrsanbindung macht diese Wohnung zum idealen Zuhause für Familien oder Paare, die Wert auf Komfort und Lebensqualität legen. Hinweis: Die gezeigten Bilder sind Musterfotos, da sich das Gebäude noch im Bau befindet. Die Aussicht ist in Wirklichkeit noch freier, da sich die Wohnung im 3. Obergeschoss befindet.

Kontakt

  • Bättig Immobilienberatung GmbH
  • Zürcherstrasse 7, 8107, Buchs ZH
  • Nummer Anzeigen

Auch inseriert auf:

homegate.ch