Wohnobjekt

exklusive Attikawohnung über den Dächern von Bülach ERSTBEZUG

CHF 4'000

 | 

147 m²

 | 

4.5 Zimmer

Ort & Lage

Bahnhofstrasse 13, 8180 Bülach

exklusive Attikawohnung über den Dächern von Bülach ERSTBEZUG - Karte

Verfügbarkeit

Verfügbar ab:
1. November 2025

Kosten

Nettomiete:
CHF 3'650
Nebenkosten:
350
Mietpreis:
CHF 4'000

Angaben

Objektkategorie
Miete
Objektreferenz
2054cd83-d640-4093-bf35-c0fd1645da99
Adresse
Bahnhofstrasse 13
PLZ/Ort
8180 Bülach
Region
Bülach
Wohnfläche
147 m²
Anzahl Zimmer
4.5

Merkmale und Ausstattung

Schöne Aussicht

Beschreibung

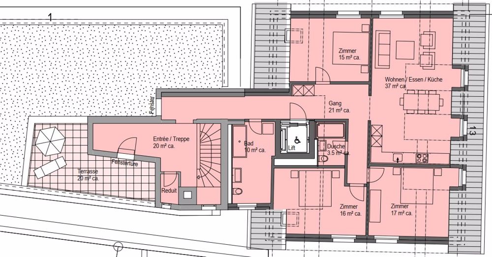
Suchen Sie das besondere, schätzen eine zentrale Wohnlage und viel, Platz? Dann sind Sie bei uns genau richtig! Hier wohnen Sie exklusiv, an zentraler Lage und mit dem gewissen Etwas. Per 1. November 2025 vermieten wir diese traumhafte 4.5 Zimmer-Attikawohnung, die mit 147m2 Wohnfläche, durchdachtem Design und erstklassiger Ausstattung höchsten Wohnkomfort bietet Highlights auf einen Blick: • Offenes Wohn- und Esskonzept: Freuen Sie sich auf grosszügige Räume, die keine Wünsche offenlässt • Modern ausgestattete Küche: Natursteinabdeckung, Glaskeramik mit Kochfeldabsaugung, Kombi-Steamer • Drei grosszügige Schlafzimmer: Perfekt geschnitten, bieten sie viel Platz für Ihre individuellen Wohnideen. • Zwei elegante Badezimmer: o Master-Badezimmer mit integriertem Waschturm o Zweites Badezimmer mit Dusche • Komfortabler Zugang: Ob über das Treppenhaus oder den Lift – Sie gelangen bequem und barrierefrei direkt in die Wohnung • Separates Entree beim Treppenaufgang: Der halboffene Bereich lässt sich ideal als Homeoffice oder für Ihr Hobby nutzen • Bodenbeläge: Wohnflächen, und Bäder mit exklusiven Keramikbodenplatten in beige, Schlafzimmer mit pflegeleichtem Vinylboden in edler Parketoptik • Grosse Dachterrasse: auf rund 20m2 geniessen Sie den einmaligen Blick über Bülach • genügend Stauraum: Reduit, praktischer Einbauschrank im Korridor, Kellerabteil im UG Die Wohnung befindet sich mitten in der charmante Altstadt von Bülach zahlreiche Einkaufsmöglichkeiten, Restaurants und der Bahnhof Bülach befinden sich nur wenige Schritte entfernt. Ein Aussenparkplatz kann bei Bedarf dazugemietet werden. Eine Besichtigung der Wohnungen ist nach Rücksparche möglich. Grundrisse, detaillierte Informationen zum Projekt sowie den ausführlichen Baubeschrieb finden Sie in der beigefügten Dokumentation. Möchten Sie einziehen? Kontaktieren Sie uns — wir freuen uns auf Ihre Anfrage!

Kontakt

  • Architekturbüro Oskar Meier AG
  • Kasernenstrasse 19, 8180, Bülach
  • Nummer Anzeigen

Auch inseriert auf:

homegate.ch