Wohnobjekt

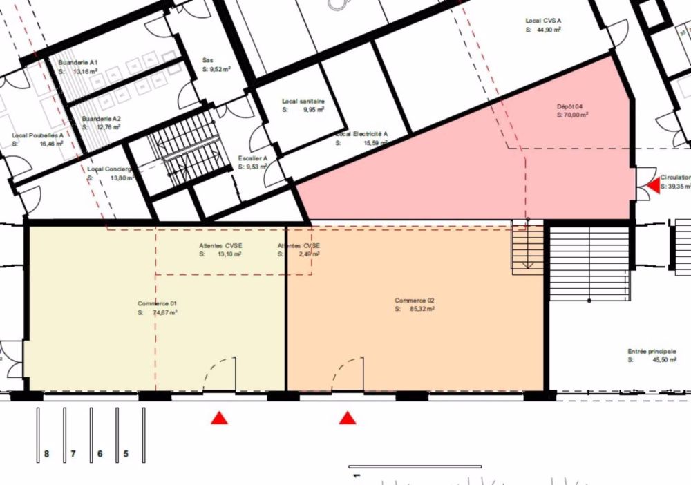
In der Nähe des Bahnhofs Renens im Angebot - helle Fläche von 88 m2 in der Arcade mit schönen Auslagen, großes Volumen

CHF 2'570

 | 

88 m²

Ort & Lage

1023 Crissier

In der Nähe des Bahnhofs Renens im Angebot - helle Fläche von 88 m2 in der Arcade mit schönen Auslagen, großes Volumen - Karte

Kosten

Mietpreis:
CHF 2'570

Angaben

Objektkategorie
Miete
Objektreferenz
e3fc409e-ac96-4cc3-9fb1-b5d9f8670c52
PLZ/Ort
1023 Crissier
Region
Lausanne
Wohnfläche
88 m²
Etage
EG
Baujahr
2025

Merkmale und Ausstattung

Lift
Garage
Rollstuhlgängig

Beschreibung

Profitieren Sie von dieser einzigartigen Lage im Viertel des ersten Bahnhofs im Kanton Waadt und der auch von der M2, den öffentlichen Verkehrsmitteln Lausanne und der zukünftigen Straßenbahn bedient wird. Diese Einheit wurde designed, um Ihren Wünschen entsprechend ein Showroom, ein Geschäft oder Büros aufzunehmen und Ihnen Sichtbarkeit und einen sehr dynamischen Rahmen zu bieten. Um es jedem zu ermöglichen, sie nach seinen Bedürfnissen oder Einschränkungen auszustatten, werden sie halb-roh geliefert, wie im Detail unten angegeben: - Betonboden - Glastüren von 140 x 210 cm mit Metallrahmen - Stores aus Stoff mit Gelenkarm - Elektrotafel mit zur Verfügung stehender Leistung: 25 A - Fußbodenheizung - Luftdurchsatz von 3,8 m3/h pro m2 - WC-Zelle mit Boden- und Wandfliesen - Wasser- und Abflussanschluss für die Installation einer Küchenzeile durch den Benutzer Die Nettomiete wurde auf Chf. 350.--/m2/Jahr + Nebenkosten und Zusatzkosten festgelegt. Innenparkplätze im Parkhaus des Gebäudes verfügbar.

Kontakt

  • Avenue du Grey 24, 1004, Lausanne
  • Nummer Anzeigen

Auch inseriert auf:

homegate.ch