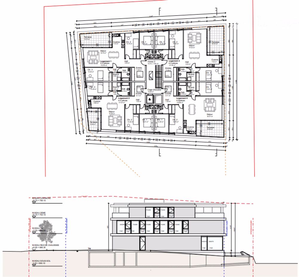
Wohnobjekt

Dachgeschoss in Cugy VD

CHF 2'800

 | 

110 m²

 | 

4.5 Zimmer

Ort & Lage

Route de Bottens 7, 1053 Cugy VD

Dachgeschoss in Cugy VD - Karte

Verfügbarkeit

Verfügbar ab:
19. Juni 2026

Kosten

Nettomiete:
CHF 2'600
Nebenkosten:
200
Mietpreis:
CHF 2'800

Angaben

Objektkategorie
Miete
Objektreferenz
48c5e85c-1004-4fc7-874a-e979451f5bf2
Adresse
Route de Bottens 7
PLZ/Ort
1053 Cugy VD
Region
Gros-de-Vaud
Wohnfläche
110 m²
Anzahl Zimmer
4.5
Etage
2
Baujahr
2026

Merkmale und Ausstattung

Balkon
Lift
Schöne Aussicht
Kinderfreundlich
Rollstuhlgängig

Beschreibung

Modernes Dachgeschoss-Apartement mit 4,5 Zimmern von etwa 110m2. Privater Balkon. Eingerichtete Küche. 2 Badezimmer. Waschmaschinenanschluss. Unterirdischer Parkplatz. In der Nähe von Geschäften, Bushaltestelle vor dem Gebäude, 10 Minuten von der Autobahn.

Kontakt

  • Nummer Anzeigen

Auch inseriert auf:

homegate.ch