Wohnobjekt

Neubau in Dällikon: Zeitgemässe Architektur trifft auf ländlichen Charme

CHF 2'670

 | 

116 m²

 | 

3.5 Zimmer

Ort & Lage

Dänikerstrasse 13, 8108 Dällikon

Neubau in Dällikon: Zeitgemässe Architektur trifft auf ländlichen Charme - Karte

Verfügbarkeit

Bezugstermin:
1. April 2026

Kosten

Nettomiete:
CHF 2'400
Nebenkosten:
270
Mietpreis:
CHF 2'670

Angaben

Objektkategorie
Miete
Objektreferenz
12965408-407d-4adf-aa53-bd1ff878fd65
Adresse
Dänikerstrasse 13
PLZ/Ort
8108 Dällikon
Region
Dielsdorf
Wohnfläche
116 m²
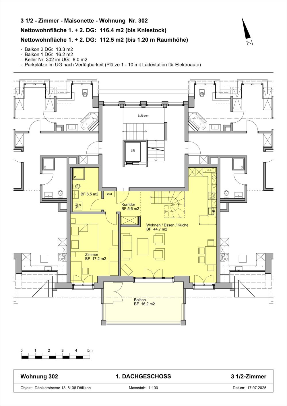
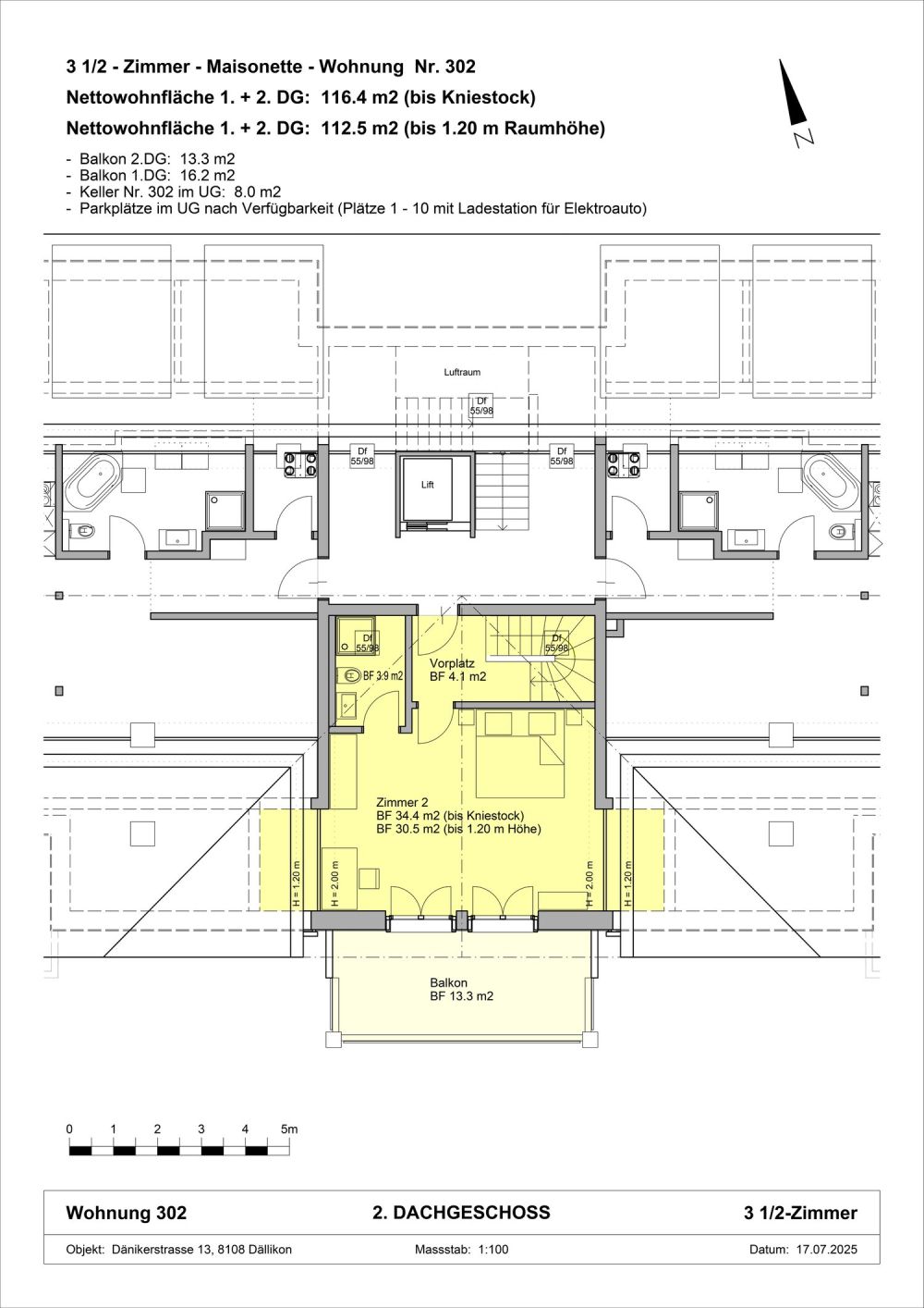
Anzahl Zimmer
3.5
Etage
3
Baujahr
2026

Merkmale und Ausstattung

Balkon
Kabelfernsehen
Lift
Garage
Schöne Aussicht
Kinderfreundlich

Beschreibung

Per 1. April 2026 vermieten wir eine 3.5- Zimmer-Maisonettewohnung (3. OG) in einem Neubau in Dällikon. (Fotos anhand der Musterwohnung an der Dänikerstrasse 15).
Das moderne Mehrfamilienhaus mit insgesamt 14 Wohnungen setzt neue Massstäbe in Hinblick auf Energieeffizienz, Komfort und Nachhaltigkeit, wodurch Heiz- und Nebenkosten deutlich gesenkt werden können. Freuen Sie sich auf eine einladende Wohnatmosphäre, die mit viel Charme und stilvollem Ambiente überzeugt. Direkt um die Ecke finden Sie eine Bäckerei – der perfekte Ort für Ihren Frühstückseinkauf oder einen kurzen Kaffeestopp. Die Liegenschaft ist naturnahe gelegen, sodass sie mit ihrer grünen Umgebung zu zahlreichen Spaziermöglichkeiten dazu einlädt, die Seele baumeln zu lassen.
Ideal für Naturliebhaber, die zugleich eine gute Anbindung an die Stadt schätzen.
Folgend einige Besonderheiten des Mehrfamilienhauses resp. der Wohnungen:
- Lift
- In jeder Wohnung einen eigenen Waschturm mit Waschmaschine & Tumbler
- Grosse Balkone (Richtung Süden resp. Westen ausgerichtet)
- Geräumige und gut ausgestattete Küchen
- Helle Wohnräume
- Komfortlüftung mit Wärmerückgewinnung
Ausserdem stehen Tiefgaragenplätze für Fr. 140.00/Monat und zusätzliche Plätze mit E-Ladestationen (Elektrofahrzeuge) für Fr. 170.00/Monat zur Verfügung.
Sind Sie interessiert? So senden Sie uns eine Anfrage via E-Mail zu, sodass wir eine gemeinsame Besichtigung durchführen können.
Wir freuen uns auf Ihre Bewerbung.

Kontakt

David Knutti
  • David Knutti
  • Eisenegger Immobilien & Treuhand AG
  • gibt Ihnen gerne Auskunft.
  • Nummer Anzeigen

Auch inseriert auf:

homegate.ch