Wohnobjekt

Neubau in Dällikon: Zeitgemässe Architektur trifft auf ländlichen Charme, Loft-Wohnung

keine Preisangabe

 | 

76 m²

 | 

1.5 Zimmer

Ort & Lage

Dänikerstrasse 13, 8108 Dällikon

Neubau in Dällikon: Zeitgemässe Architektur trifft auf ländlichen Charme, Loft-Wohnung - Karte

Verfügbarkeit

Bezugstermin:
1. April 2026

Kosten

Mietpreis:
keine Preisangabe

Angaben

Objektkategorie
Miete
Objektreferenz
5344b087-30c1-44fc-ac00-d2e50eea9af5
Adresse
Dänikerstrasse 13
PLZ/Ort
8108 Dällikon
Region
Dielsdorf
Wohnfläche
76 m²
Anzahl Zimmer
1.5
Etage
4
Baujahr
2026

Merkmale und Ausstattung

Balkon
Kabelfernsehen
Lift
Garage
Schöne Aussicht
Kinderfreundlich

Beschreibung

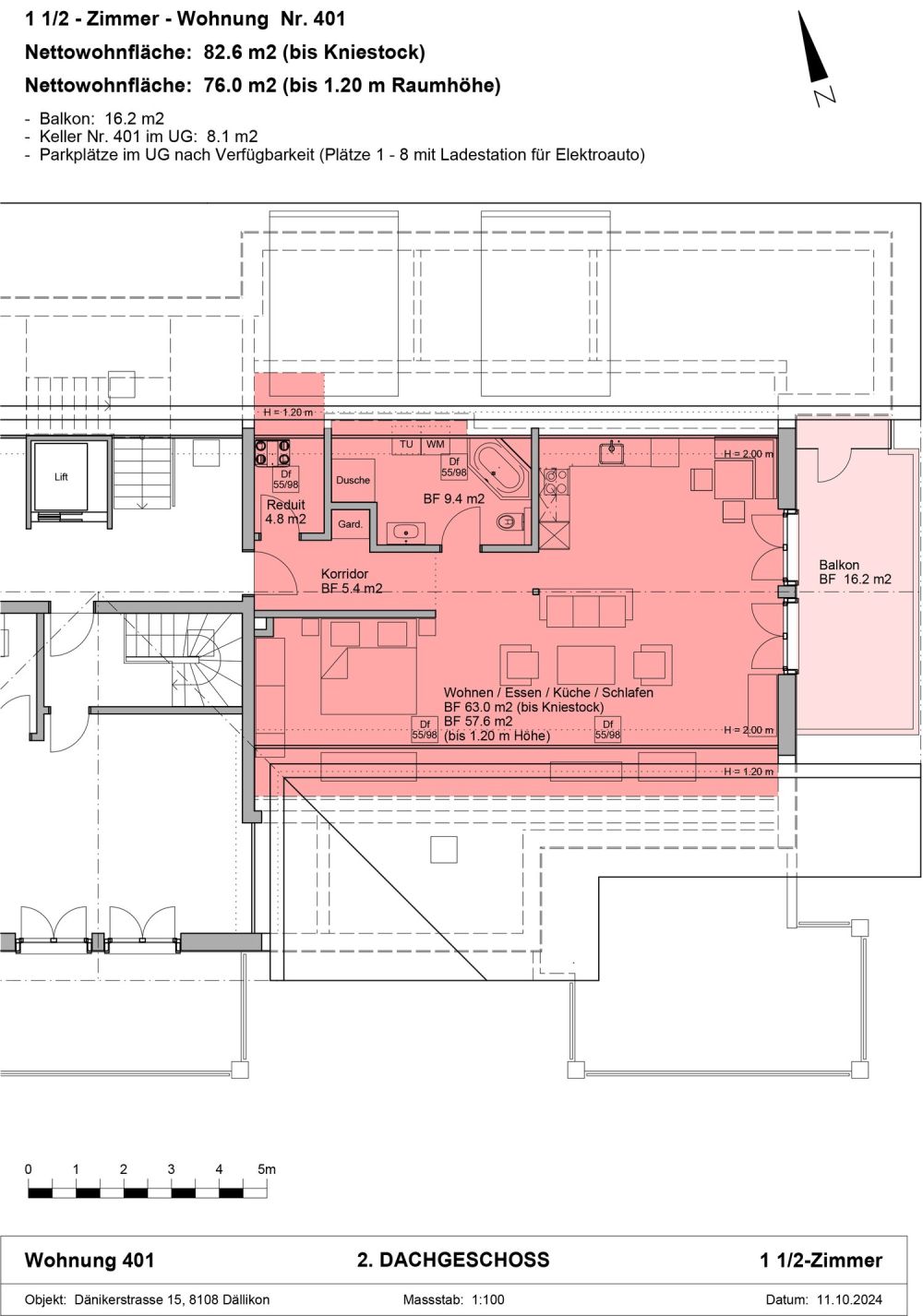
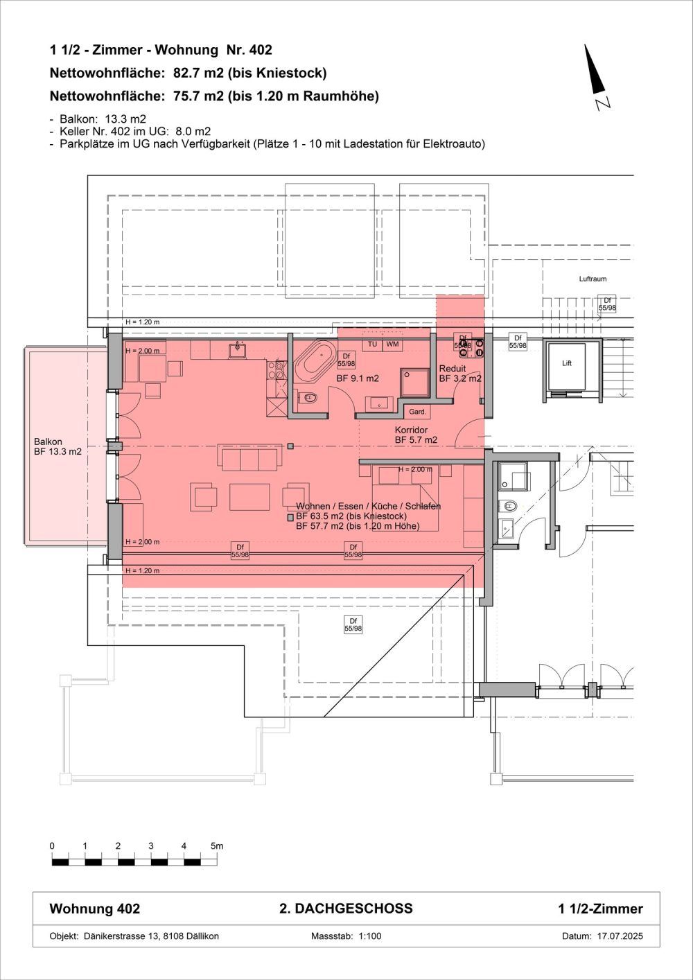
Per 1. April 2026 vermieten wir zwei 1.5- Zimmer-Loftwohnungen (4. OG) in einem Neubau in Dällikon. (Fotos anhand der Musterwohnung an der Dänikerstrasse 15).
Das moderne Mehrfamilienhaus mit insgesamt 14 Wohnungen setzt neue Massstäbe in Hinblick auf Energieeffizienz, Komfort und Nachhaltigkeit, wodurch Heiz- und Nebenkosten deutlich gesenkt werden können. Freuen Sie sich auf eine einladende Wohnatmosphäre, die mit viel Charme und stilvollem Ambiente überzeugt.
Direkt um die Ecke finden Sie eine Bäckerei – der perfekte Ort für Ihren Frühstückseinkauf oder einen kurzen Kaffeestopp. Die Liegenschaft ist naturnahe gelegen, sodass sie mit ihrer grünen Umgebung zu zahlreichen Spaziermöglichkeiten dazu einlädt, die Seele baumeln zu lassen. Ideal für Naturliebhaber, die zugleich eine gute Anbindung an die Stadt schätzen.
Folgend einige Besonderheiten des Mehrfamilienhauses resp. der Wohnungen:
- Lift
- In jeder Wohnung einen eigenen Waschturm mit Waschmaschine & Tumbler
- Grosse Balkone (Richtung Osten, Nr. 401 / Richtung Westen, Nr. 402 ausgerichtet)
- Geräumige und gut ausgestattete Küchen
- Helle Wohnräume
- Komfortlüftung mit Wärmerückgewinnung
Ausserdem stehen Tiefgaragenplätze für Fr. 140.00/Monat und zusätzliche Plätze mit E-Ladestationen (Elektrofahrzeuge) für Fr. 170.00/Monat zur Verfügung.
Bitte beachten Sie, dass zusätzlich zum Nettomietzins eine Nebenkostenzahlung in Höhe von CHF 210.00 fällig ist.
Sind Sie interessiert? Wir freuen uns auf Ihre Kontaktaufnahme, damit wir Ihnen die Wohnung im Rohbau zeigen können.

Kontakt

  • Eisenegger Immobilien & Treuhand AG
  • Althardstrasse 46, 8105, Regensdorf
  • Nummer Anzeigen

Auch inseriert auf:

homegate.ch