Wohnobjekt

helle und moderne Attikawohnung

CHF 2'125

 | 

80 m²

 | 

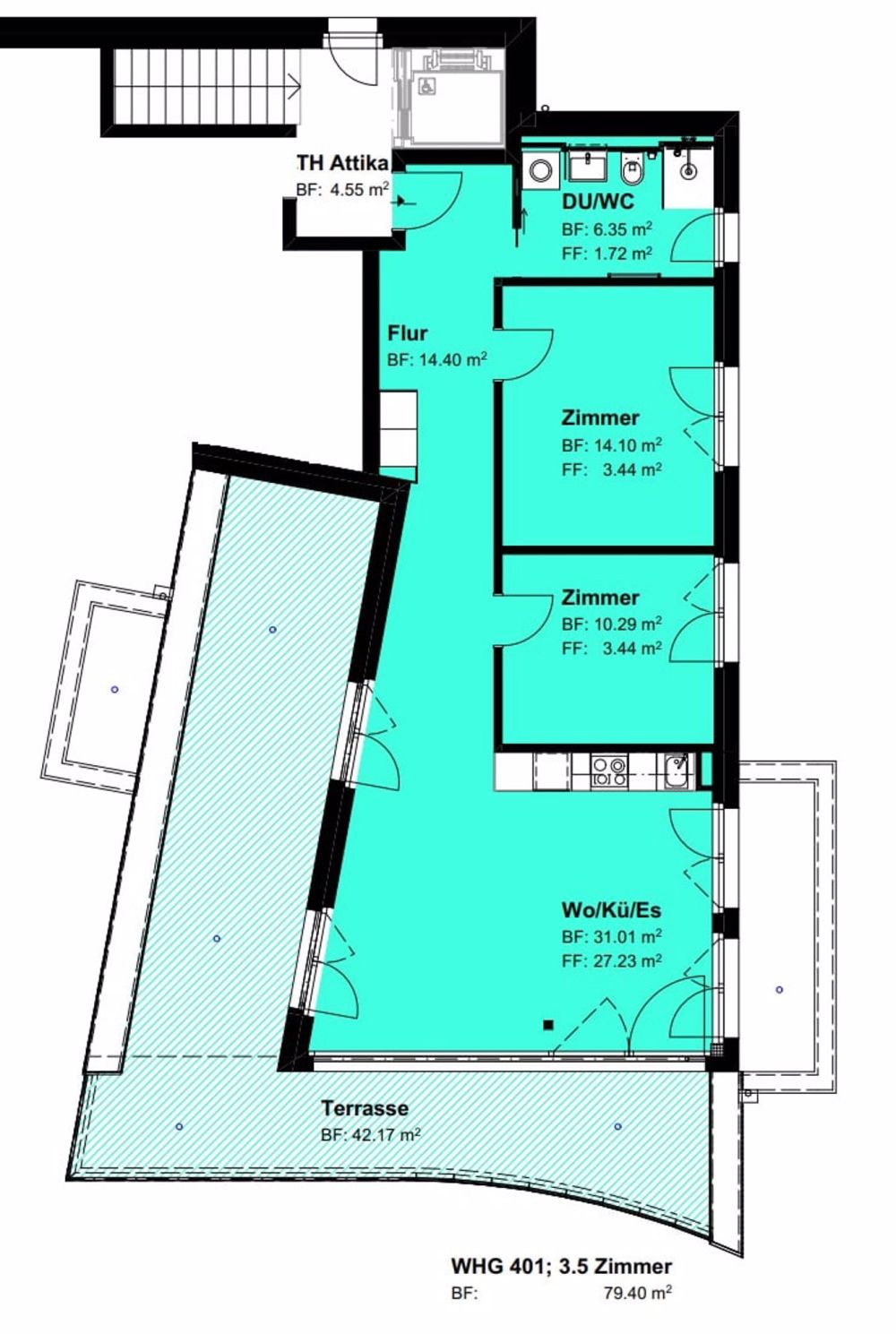
3.5 Zimmer

Ort & Lage

Bahnhofstrasse 29, 8552 Felben-Wellhausen

helle und moderne Attikawohnung - Karte

Verfügbarkeit

Verfügbar ab:
1. Dezember 2025

Kosten

Nettomiete:
CHF 1'855
Nebenkosten:
270
Mietpreis:
CHF 2'125

Angaben

Objektkategorie
Miete
Objektreferenz
fef3c41d-3dff-4a04-9221-8fa8aaf3c7ab
Adresse
Bahnhofstrasse 29
PLZ/Ort
8552 Felben-Wellhausen
Region
Frauenfeld
Wohnfläche
80 m²
Anzahl Zimmer
3.5
Baujahr
2024

Merkmale und Ausstattung

Balkon
Kabelfernsehen
Lift
Garage
Rollstuhlgängig

Beschreibung

In Felben-Wellhausen, einer kleinen Gemeinde direkt neben Frauenfeld, befindet sich der Neubau Bahnhofstrasse 29. Der Neubau ist verkehrstechnisch gut erschlossen und bietet Ihnen eine gute Infrastruktur. Der Bahnhof, die Bushaltestelle und Einkaufsmöglichkeiten sind sehr nah gelegen. Auch die Autobahneinfahrt Frauenfeld ist in unmittelbarer Nähe. Die Wohnung überzeugt durch ihren modernen Ausbau, die grosszügige und sonnige Terrasse sowie durch ihre zentrale Lage. Die Küche verfügt über einen Glaskeramikherd, einen Backofen, einen Dampfabzug mit Umluft, einen Geschirrspüler sowie einer Kühl- und Gefrierkombination. Küche mit Keramikplatten offener Wohn- und Essbereich mit Plattenboden und Terrassenzugang grosszügiges Schlafzimmer mit Parkettboden Zimmer mit Parkettboden Badezimmer mit Dusche grosse Terrasse mit Plattenboden Waschturm mit Tumbler/Waschmaschine Garderobe Zur Wohnung können Tiefgaragenplätze für CHF 130.00 pro Monat dazu gemietet werden. Haustiere nur auf Anfrage. Die Bilder zeigen eine ähnliche Wohnung im Gebäude. Leichte Abweichungen sind möglich. Wir freuen uns über Ihre Kontaktanfrage.

Kontakt

  • WICK Liegenschaftentreuhand AG
  • Weinfelderstrasse 6, 9542, Münchwilen TG
  • Nummer Anzeigen

Auch inseriert auf:

homegate.ch