Wohnobjekt

Triplex de 280m2 - Ferme transformée

CHF 4'700

 | 

280 m²

 | 

6.5 Zimmer

Ort & Lage

Vers-la-Chapelle 52, 1643 Gumefens

Triplex de 280m2 - Ferme transformée - Karte

Verfügbarkeit

Bezugstermin:
1. Mai 2026

Kosten

Mietpreis:
CHF 4'700

Angaben

Objektkategorie
Miete
Objektreferenz
3bda3a83-b647-4402-9774-b9651e5a865b
Adresse
Vers-la-Chapelle 52
PLZ/Ort
1643 Gumefens
Region
Greyerz
Wohnfläche
280 m²
Anzahl Zimmer
6.5
Etage
1
Baujahr
2026

Merkmale und Ausstattung

Balkon
Garage
Schöne Aussicht
Parkplatz
Kinderfreundlich

Beschreibung

Emerveillez-vous pour cet objet rare et d'exception !
Gumefens, charmant village prisé de la commune de Pont-en-Ogoz, offrant un cadre de vie calme à proximité immédiate du lac de la Gruyère et des Préalpes Fribourgeoises avec accès rapide à l'autoroute A12, à 10 minutes de Bulle et 20 minutes de Fribourg.
Vous y trouverez une remarquable ferme transformée en triplex disposant au 1er étage d'une entrée comprenant une armoire dressing assise, d'une cuisine full black avec îlot central et armoires vitrées avec LED, d'une salle à manger et chillroom de plus de 80m2 donnant accès une terrasse en ardoise de 32m2, d'un superbe salon en parquet chêne de 39m2 dynamique et original avec des fenêtres triangles pour une lumière naturelle ciblée, un espace buanderie avec armoire comprenant un lave-linge et sèche linge, un cagibi de 4m2 ainsi qu'un wc visiteur avec vasque en pierre et miroir demi lune.
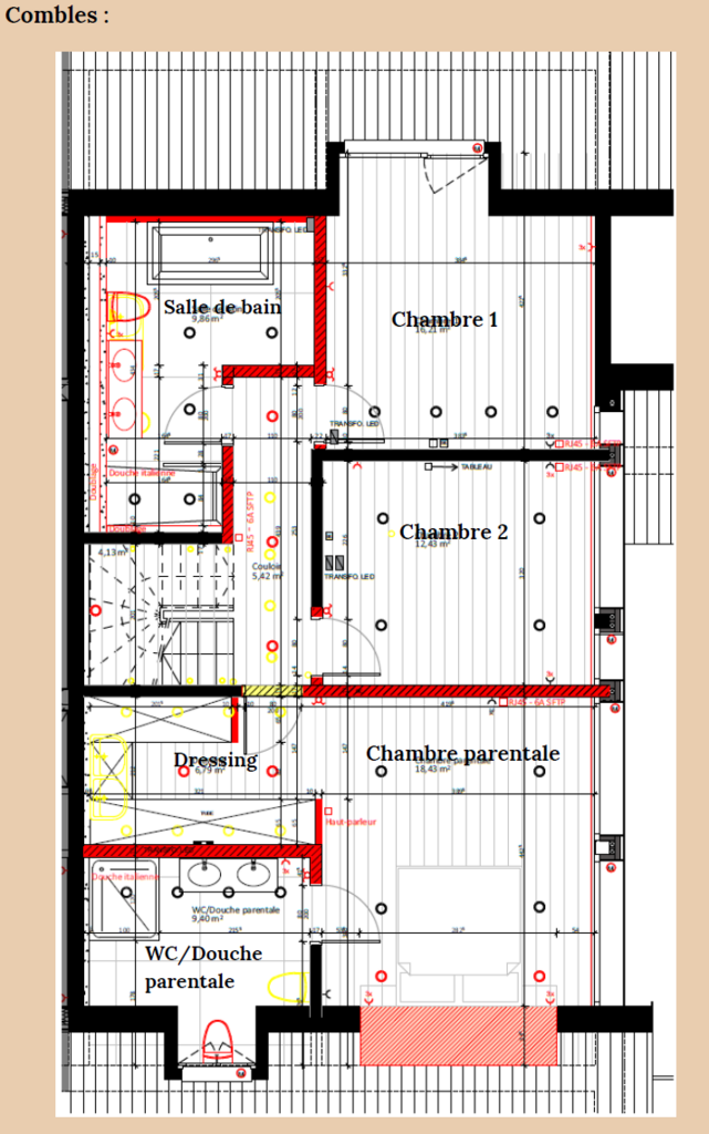
La visite se poursuit aux combles avec une chambre parentale en parquet chêne de 18m2 comprenant un dressing de 7m2, d'une salle de bain parentale de 9,50m2 avec meuble de rangement double vasque, une douche italienne et un wc, une chambre de 13m2 et une dernière de 16m2, l'étage se termine avec une salle de bain avec baignoire semi apparente, meuble de rangement double vasque, douche italienne et wc.
Au surcombles un espace de plus de 40m2 vous offrira l'opportunité de créer un bureau et une chambre supplémentaire.
Pour compléter ce bien vous trouverez en supplément un carnotzet de 37m2 disposant d'une cuisine blanche avec îlot central, d'une salle de douche, d'une terrasse de 11m2 ainsi que d'un garage box et une place de parc.
Disponible à partir du 1er mai 2026. Loyer Fr. 4700.- + charges
N'hésitez pas à nous contacter pour plus d'informations et une visite !

Kontakt

Coralie Rousseau
  • Coralie Rousseau
  • Vimova Gérance SA
  • gibt Ihnen gerne Auskunft.
  • Nummer Anzeigen

Auch inseriert auf:

homegate.ch