Wohnobjekt

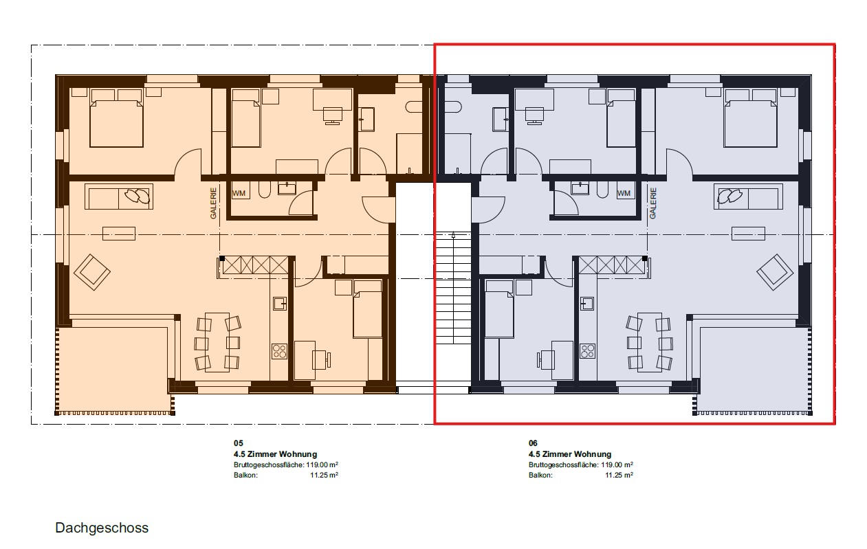
Gesundes Wohnen in dieser 4.5-Zimmer-Neubauwohnung mit Galerie

CHF 2'300

 | 

4.5 Zimmer

Ort & Lage

Bahnhofstrasse 102c, 3232 Ins

Gesundes Wohnen in dieser 4.5-Zimmer-Neubauwohnung mit Galerie - Karte

Kosten

Nettomiete:
CHF 2'050
Nebenkosten:
250
Mietpreis:
CHF 2'300

Angaben

Objektkategorie
Miete
Objektreferenz
31f13888-0046-43e0-9bd6-f216b56d89f5
Adresse
Bahnhofstrasse 102c
PLZ/Ort
3232 Ins
Region
Seeland
Anzahl Zimmer
4.5
Etage
2
Baujahr
2024

Merkmale und Ausstattung

Balkon
Parkplatz
Kinderfreundlich

Beschreibung

Nach Vereinbarung vermieten wir an der Bahnhofstrasse 102c in Ins eine exklusive 4.5-Zimmer-Neubauwohnung mit Galerie im Eigentumsstandard. Die Wohnungen befinden sich in einem gepflegten Wohnquartier Nähe Bahnhof der attraktiven und gefragten Gemeinde Ins.
Die Wohnung inkl. Galerie befindet sich im 2. Stock.
Die Wohnung verfügt über ein helles und geräumiges Wohnzimmer mit Galerie, eine hochwertige Küche mit Essbereich, 3 Schlafzimmer und ein Badezimmer (WC, Dusche) sowie ein zweites separates WC. Die Wohnung sind mit Parkettboden ausgestattet. Der grosszügige Balkon lädt zum Verweilen ein.
Ein Fahrradkeller sowie ein separates Kellerabteil sind ebenfalls vorhanden. Die Waschküche mit zwei Waschtürmen und einem Secomat steht zur gemeinsamen Nutzung zur Verfügung. Ein allgemeiner Gartensitzplatz steht zusätzlich zur Verfügung. Die Liegenschaft verfügt zusätzlich über einen allgemeinen Gartensitzplatz sowie schönen Villengarten. Ebenfalls besteht die Möglichkeit für einen Anteil am Gemüsegarten.
Ein Parkplatz kann für CHF 80.00 pro Monat dazu gemietet werden.
Besondere Merkmale: Ökologische Bauweise mit Truberholz, gute Isolationswerte, Erdsondenheizung, Photovoltaikanlage.

Kontakt

Saluz Treuhand GmbH
  • Saluz Treuhand GmbH
  • Saluz Treuhand GmbH
  • gibt Ihnen gerne Auskunft.
  • Nummer Anzeigen

Auch inseriert auf:

homegate.ch