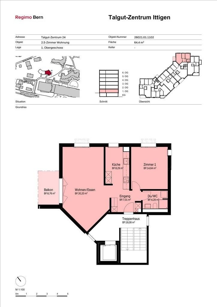
Wohnobjekt

ERSTBEZUG - Moderne, renovierte Wohnungen für Paare und Einzelpersonen

CHF 1'770

 | 

65 m²

 | 

2.5 Zimmer

Ort & Lage

Talgutzentrum 24, 3063 Ittigen

ERSTBEZUG - Moderne, renovierte Wohnungen für Paare und Einzelpersonen - Karte

Verfügbarkeit

Bezugstermin:
1. Februar 2026

Kosten

Nettomiete:
CHF 1'550
Nebenkosten:
220
Mietpreis:
CHF 1'770

Angaben

Objektkategorie
Miete
Objektreferenz
baf0168b-626a-4290-9dde-5693d4dead10
Adresse
Talgutzentrum 24
PLZ/Ort
3063 Ittigen
Region
Bern-Mittelland
Wohnfläche
65 m²
Anzahl Zimmer
2.5
Etage
1

Merkmale und Ausstattung

Garage

Beschreibung

Ab Februar 2026 vermieten wir eine frisch sanierte 2.5-Zimmerwohnung im Talgutzentrum 24/26 in Ittigen.Diese zentral gelegene Wohnsiedlung bietet modernen Wohnkomfort in einem lebendigen Umfeld. Ob Single oder Paar, hier finden Sie ein zeitgemäss ausgestattetes Zuhause. Einkaufsmöglichkeiten und der öffentliche Verkehr sind direkt vor der Haustür, kurze Wege in die Stadt Bern inklusive. Die hellen Wohnungen mit durchdachten Grundrissen und modernen Küchen bieten hohen Komfort und passen sich unterschiedlichen Lebenssituationen an.Für Ihre Wohnqualität:- Heller Wohn- und Schlafbereich - Renovierte, moderne Küche- Nasszelle mit Dusche/WC und Waschturm- Parkett in Wohn- und Schlafzimmer- Grosszügige Terrasse- Lift- KellerabteilZusätzlich auf Wunsch: Einstellplatz Tiefgarage, ab CHF 110.00/Monat.Ein weiteres Plus ist das Angebot "Mieten ohne Kaution". Bei diesen Mietobjekten müssen Sie nicht wie üblich drei Monatsmieten auf ein Sperrkonto einzahlen. Dadurch bleiben Sie finanziell flexibel, und das Angebot ist für Sie kostenlos. Mehr Informationen finden Sie unter https://regimo.ch/kaution oder im Flyer in der Fotoserie des Inserates.Interessiert? Dann lohnt sich eine Besichtigung.

Kontakt

  • flatfox.ch, im Auftrag von: Susi Rutz

Auch inseriert auf:

homegate.ch