Wohnobjekt

Neu renoviert: 5.5-Zimmer Reihenhaus im Lenggis

CHF 3'350

 | 

130 m²

 | 

5 Zimmer

Ort & Lage

Hombrechtikerstrasse 28, 8645 Jona

Neu renoviert: 5.5-Zimmer Reihenhaus im Lenggis - Karte

Kosten

Mietpreis:
CHF 3'350

Angaben

Objektkategorie
Miete
Objektreferenz
81f25b81-10b7-49ce-8a63-424fce5c8560
Adresse
Hombrechtikerstrasse 28
PLZ/Ort
8645 Jona
Region
See-Gaster
Wohnfläche
130 m²
Anzahl Zimmer
5

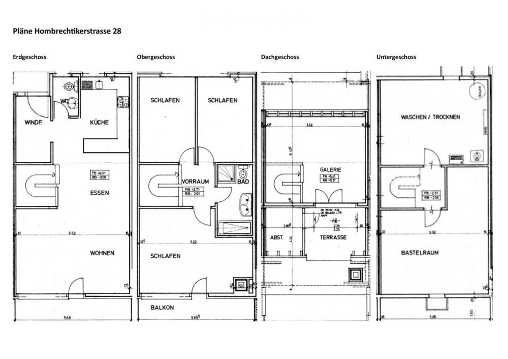
Beschreibung

Erstvermietung per 1. Juni 2026Das Reihenmittelhaus befindet sich in einer kinderfreundlichen Siedlung mit zwölf Wohneinheiten. Ein kleiner Spielplatz kann mitbenützt werden. Die Liegenschaft liegt in direkter Nachbarschaft zur Bushaltestelle, zum öffentlichen Schulhaus und einem Volg-Quartierladen. Das Haus wird aktuell umfassend saniert: Böden/Wände, Küche, Nasszellen, Fenster/Haustüre, Heizung und Kaminofen werden komplett erneuert. Eine Einzelgarage kann für Fr. 120.- dazu gemietet werden. Der Mietpreis versteht sich exkl. Nebenkosten.BITTE KEINE MAKLER-ANFRAGEN!

Kontakt

  • torri6706

Auch inseriert auf:

homegate.ch