Wohnobjekt

4,5 Zimmer neu zu mieten! Lausanne

CHF 4'000

 | 

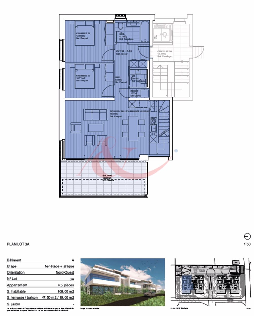
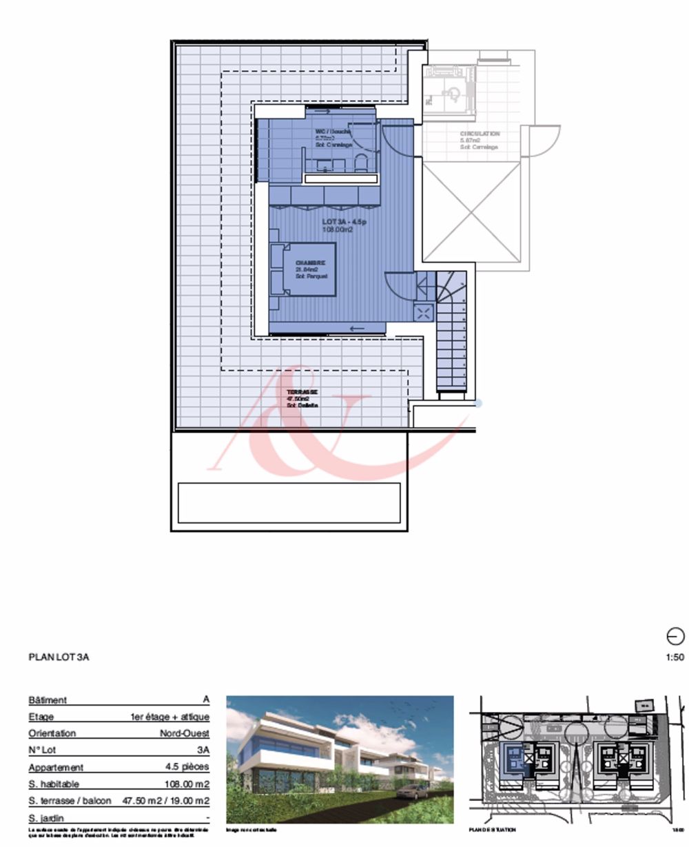
108 m²

 | 

4.5 Zimmer

Ort & Lage

Chemin de la Grangette 29, 1010 Lausanne

4,5 Zimmer neu zu mieten! Lausanne - Karte

Verfügbarkeit

Ab Sofort

Kosten

Nettomiete:
CHF 3'600
Nebenkosten:
400
Mietpreis:
CHF 4'000

Angaben

Objektkategorie
Miete
Objektreferenz
2ed63726-448d-4f86-a0fc-4cb9a7617112
Adresse
Chemin de la Grangette 29
PLZ/Ort
1010 Lausanne
Region
Lausanne
Wohnfläche
108 m²
Anzahl Zimmer
4.5
Baujahr
2025

Merkmale und Ausstattung

Schöne Aussicht

Beschreibung

Wir haben das Vergnügen, Ihnen diese neue Promotion von zwei Wohngebäuden von hohem Standard vorzustellen. In einem ruhigen und Wohngebiet von Lausanne, nur wenige Minuten vom Stadtzentrum entfernt, bezaubert der Chemin de la Grangette mit seiner ruhigen Atmosphäre und seiner Lebensqualität. Dieses Viertel bietet eine grüne Umgebung, einfache Verbindungen zu den öffentlichen Verkehrsmitteln und einen schnellen Zugang zu Geschäften, Schulen und Autobahnen, bietet somit eine perfekte Balance zwischen Ruhe und städtischer Nähe. In diesem privilegierten Umfeld werden diese zwei neuen Wohngebäude von hohem Standard mit acht neuen Wohnungen, 3,5 und 4,5 Zimmer, Sie bezaubern. Jede Wohnung wurde entworfen, um Komfort und Helligkeit zu bieten, mit schönen Räumen, großen Fenstern und sorgfältigen Fertigstellungen. Die Lieferung ist ab dem 15. Oktober 2025 geplant, sodass zukünftige Mieter schnell in eine moderne und perfekt in ihre Umgebung integrierte Umgebung einziehen können. Diese Wohnungen bieten eine seltene Gelegenheit, in einem neuen Bau zu leben, der modernen Komfort und eine begehrte Lage im Herzen von Lausanne verbindet. Die 4,5-Zimmer-Duplex-Wohnungen sind wie folgt aufgeteilt: 1. Etage: - Eingangshalle - Wohn-/Esszimmer - offene, ausgestattete Küche - 2 Schlafzimmer - 1 Badezimmer/WC - 1 Gästetoilette - private Waschküche - Terrasse 2. Etage: - Elternschlafzimmer mit Dusche/WC - Terrasse Anlagen: - Keller - Außenparkplatz zum Preis von 180 CHF/Monat Miete inkl. MwSt.: 4'180 CHF *Nicht verbindliche Synthesebilder

Kontakt

  • Schmidhauser-Bordier et Associés SA
  • Chemin du Levant 100, 1005, Lausanne
  • Nummer Anzeigen

Auch inseriert auf:

homegate.ch