Wohnobjekt

4,5 Zimmer neu zu vermieten! Lausanne

CHF 4'000

 | 

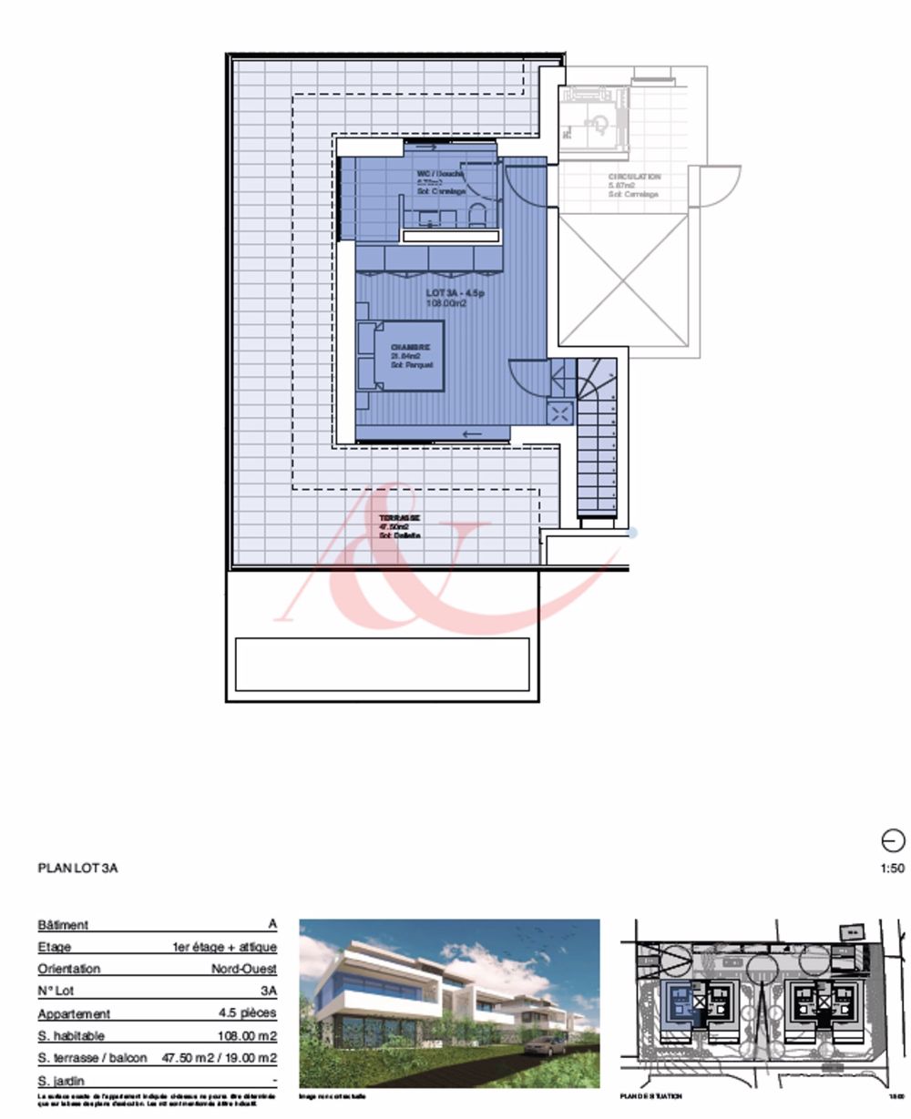
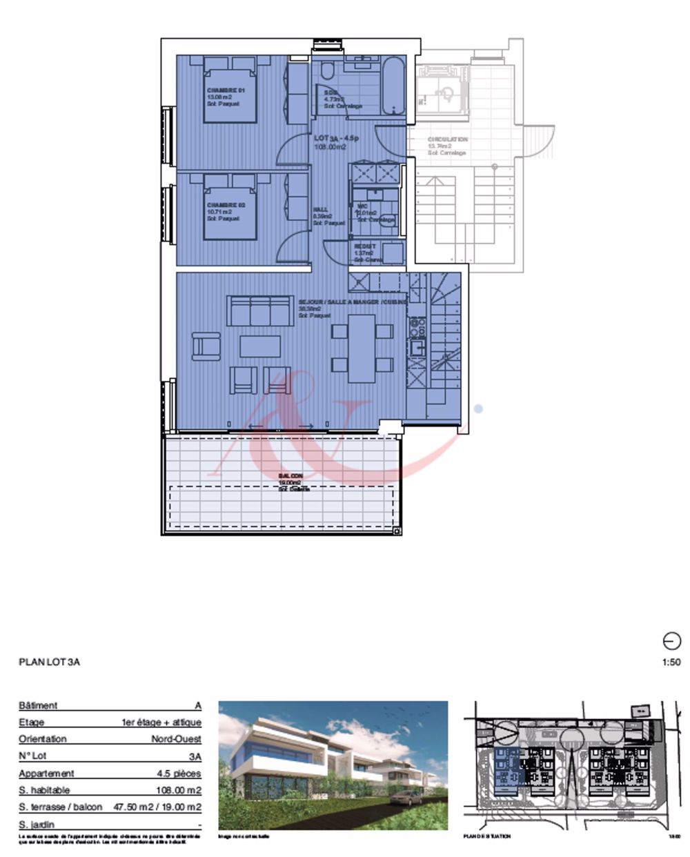
108 m²

 | 

4.5 Zimmer

Ort & Lage

Chemin de la Grangette 27, 1010 Lausanne

4,5 Zimmer neu zu vermieten! Lausanne - Karte

Kosten

Nettomiete:
CHF 3'600
Nebenkosten:
400
Mietpreis:
CHF 4'000

Angaben

Objektkategorie
Miete
Objektreferenz
f266291c-d351-43b9-8609-5aa7a2f6b053
Adresse
Chemin de la Grangette 27
PLZ/Ort
1010 Lausanne
Region
Lausanne
Wohnfläche
108 m²
Anzahl Zimmer
4.5
Baujahr
2025

Merkmale und Ausstattung

Schöne Aussicht

Beschreibung

Wir haben das Vergnügen, Ihnen diese neue Promotion von zwei Wohngebäuden von hohem Standard vorzustellen.In einem ruhigen und Wohngebiet von Lausanne, nur wenige Minuten vom Stadtzentrum entfernt, bezaubert der Chemin de la Grangette mit seiner ruhigen Atmosphäre und seiner Lebensqualität.Dieses Viertel profitiert von einer grünen Umgebung, einfachen Verbindungen zu den öffentlichen Verkehrsmitteln und einem schnellen Zugang zu Geschäften, Schulen und Autobahnachsen, bietet somit eine perfekte Balance zwischen Ruhe und städtischer Nähe.In dieser bevorzugten Umgebung werden diese zwei neuen Wohngebäude von hohem Standard mit acht neuen Wohnungen, 3,5 und 4,5 Zimmer, Sie bezaubern.Jede Wohnung wurde entworfen, um Komfort und Helligkeit zu bieten, mit schönen Volumina, großen Fenstern und sorgfältigen Fertigstellungen.Die Lieferung ist ab dem 15. Oktober 2025 geplant, sodass zukünftige Mieter schnell in eine moderne und perfekt in ihre Umgebung integrierte Umgebung einziehen können.Diese Wohnungen bieten eine seltene Gelegenheit, in einer neuen Konstruktion zu leben, die modernen Komfort und begehrte Lage im Herzen von Lausanne verbindet.Die 4,5-Zimmer-Duplexwohnungen sind wie folgt aufgeteilt:1. Etage:- Eingangshalle- Wohn-/Esszimmer- offene, ausgestattete Küche- 2 Schlafzimmer- 1 Badezimmer/WC- 1 Gäste-WC- private Waschküche- Terrasse2. Etage:- Elternschlafzimmer mit Dusche/WC- TerrasseAnhängige:- Keller- Außenparkplatz zum Preis von 180 CHF/MonatMiete inkl. MwSt.: 4'180 CHF*Bilder sind nicht verbindlich

Kontakt

  • Schmidhauser-Bordier et Associés SA
  • Chemin du Levant 100, 1005, Lausanne
  • Nummer Anzeigen

Auch inseriert auf:

immoscout24.ch