Suchen
Exklusiv
Publizieren
Anbieter
Marketing
Newsletter anmelden
Jetzt Anmelden!
Kontakt
Über uns
AGB
Suchen
Exklusiv
Publizieren
Mehr..
Anbieter
Marketing
Newsletter anmelden
Favoriten
Anmelden
Anmelden
Passwort vergessen?
Benutzername oder E-Mail-Adresse
Passwort
Angemeldet bleiben
Anmelden
Noch nicht registriert?
Kostenlos registrieren und Suchprofil erstellen
Als Immobilien-Anbieter registrieren
Mein Konto
Meine Suchprofile
Einstellungen
Exklusiv
Hilfebereich
Logout
Exklusiv Recherchiert
Publiziert am 7.11.2025.
1/1
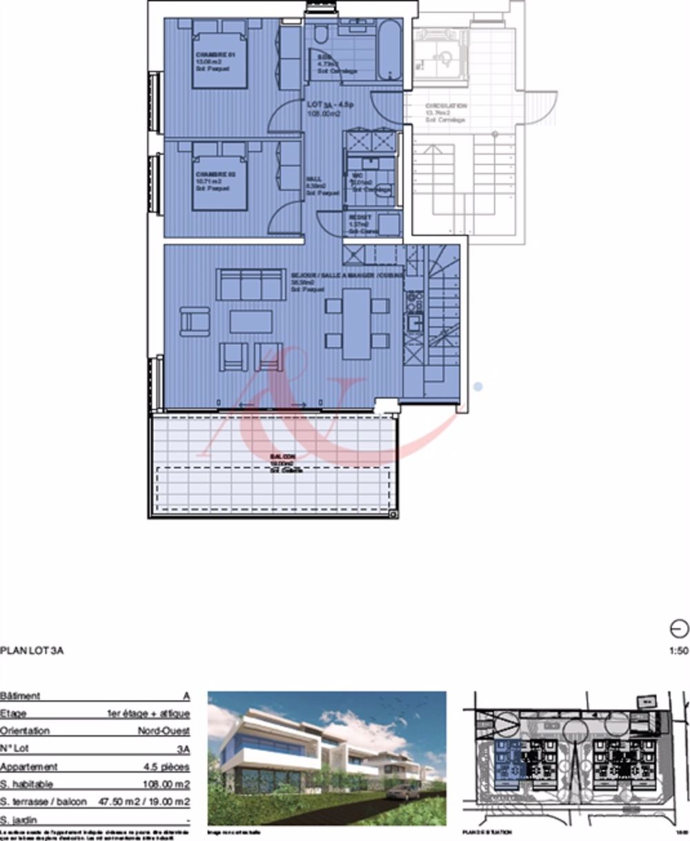
Wohnobjekt
Neue 4.5 Zimmer zu vermieten Lausanne
CHF
4'000
|
4.5
Zimmer
Ort & Lage
Chemin de la Grangette 27, 1010 Lausanne
Kosten
Mietpreis:
CHF 4'000
Angaben
Objektkategorie
Miete
Objektreferenz
2ed63726-448d-4f86-a0fc-4cb9a7617112
Adresse
Chemin de la Grangette 27
PLZ/Ort
1010
Lausanne
Region
Lausanne
Anzahl Zimmer
4.5
Etage
3
Baujahr
2025
Beschreibung
Mehr Text sehen
Kontakt
Auch inseriert auf:
urbanhome.ch
Ihre letzten Ansichten