Wohnobjekt

Frisch sanierte 1Zimmerwohnungen mit Balkon (Erstwohnung)

CHF 1'300

 | 

1 Zimmer

Ort & Lage

Voa Principala 52, 7078 Lenzerheide/Lai

Frisch sanierte 1Zimmerwohnungen mit Balkon (Erstwohnung) - Karte

Verfügbarkeit

Bezugstermin:
1. Juli 2026

Kosten

Nettomiete:
CHF 1'200
Nebenkosten:
100
Mietpreis:
CHF 1'300

Angaben

Objektkategorie
Miete
Objektreferenz
5412c230-523e-44a8-a2aa-533a0df3c759
Adresse
Voa Principala 52
PLZ/Ort
7078 Lenzerheide/Lai
Region
Albula
Anzahl Zimmer
1
Etage
1

Merkmale und Ausstattung

Balkon
Lift
Garage

Beschreibung

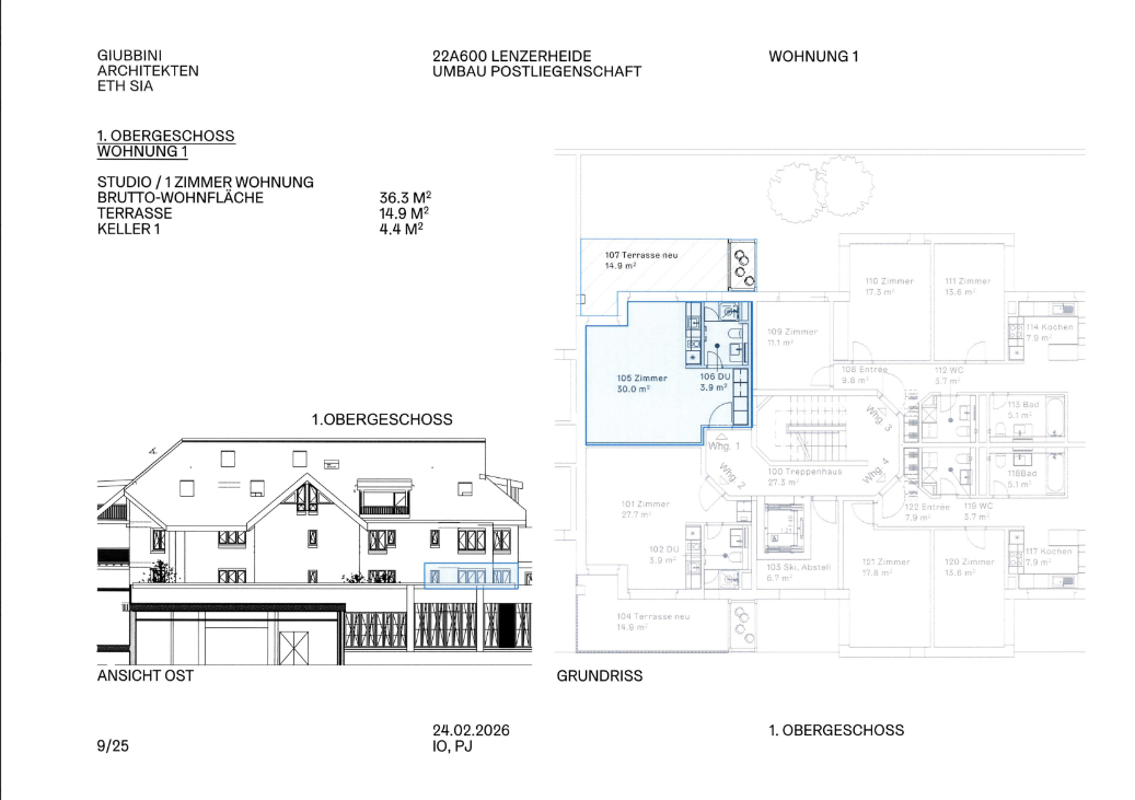
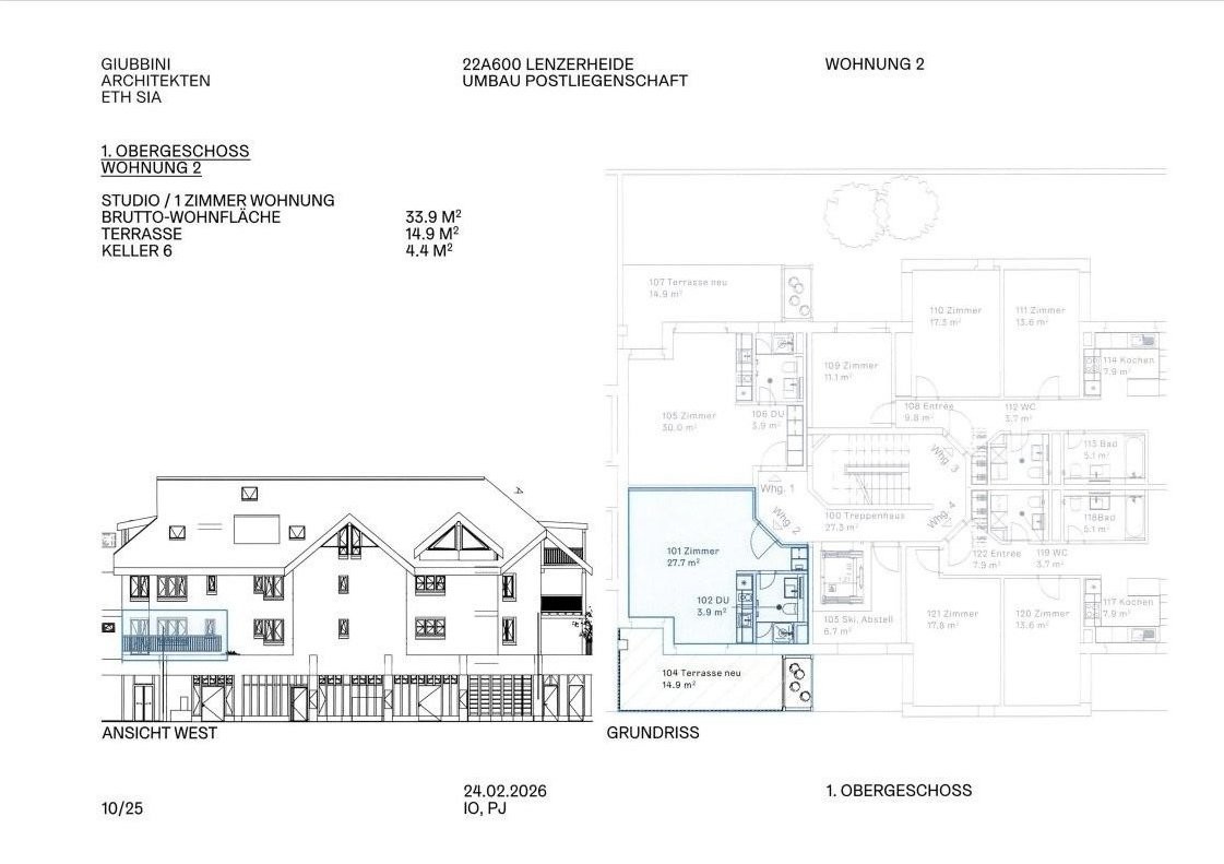
Wir vermieten zwei helle 1Zimmerwohnungen im 1. Obergeschoss. Nur an Einzelpersonen. Bitte keine Anfragen als Zweitwohnung. Die Wohnungen Nr.1 (hinten) und Nr.2 (vorne) verfügen jeweils über einen eigenen Balkon. Der Innenausbau umfasst:- Parkett- Küche und Bad mit Plattenboden- Küche mit Backofen und Kochfeld- Badezimmer mit Dusche- Gemeinschaftswaschküche (für die vier 1-Zimmerwohnungen) Die Nettomiete beträgt CHF 1'200. pro Monat zuzüglich AkontoNebenkosten von CHF 100., was eine Bruttomiete von CHF 1'300. ergibt. Ein Personenlift führt von der Einstellhalle bis ins Dachgeschoss. Ein Einstellplatz kann für CHF 125. pro Monat dazu gemietet werden. Erstbezug nach Komplettsanierung ab 01. Juli 2026, Mindestmietdauer ein Jahr. Besichtigungen sind ab Mitte April 2026 möglich. Die Grundrisse der Wohnungen sind in den Fotos, sowie als separate Dokumente im Inserat abrufbar.

Kontakt

Carmen Monn-Caduff
  • Carmen Monn-Caduff
  • Poste Immobilier M&S SA
  • gibt Ihnen gerne Auskunft.

Auch inseriert auf:

homegate.ch