Wohnobjekt

Votre nouveau chez-vous vous attend ! Appartement neuf de 4.5 pièces

CHF 2'480

 | 

4.5 Zimmer

Ort & Lage

Rue des Hautes-Bornes 8, 2523 Lignières

Votre nouveau chez-vous vous attend ! Appartement neuf de 4.5 pièces - Karte

Verfügbarkeit

Bezugstermin:
13. Februar 2026

Kosten

Nettomiete:
CHF 2'250
Nebenkosten:
230
Mietpreis:
CHF 2'480

Angaben

Objektkategorie
Miete
Objektreferenz
123de373-2f80-442f-943c-8dd2a431a64d
Adresse
Rue des Hautes-Bornes 8
PLZ/Ort
2523 Lignières
Region
District de Neuchâtel
Anzahl Zimmer
4.5
Etage
1
Baujahr
2025

Merkmale und Ausstattung

Parkplatz
Kinderfreundlich

Beschreibung

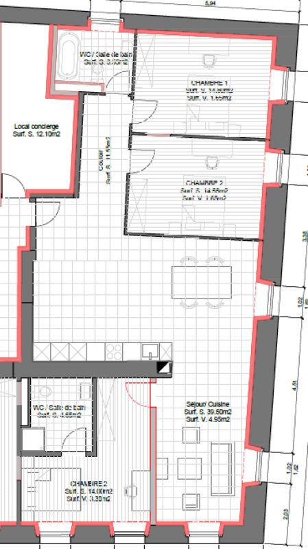
Votre nouveau chez-vous vous attend ! Appartement neuf de 4.5 pièces Situé au centre du village, cet appartement neuf séduit par ses volumes généreux, sa luminosité et son atmosphère chaleureuse.
Vous allez aimer :Un hall d'entrée spacieux pour vous accueillirUne cuisine entièrement agencée, ouverte sur une salle à manger convivialeUn séjour baigné de lumièreUne suite parentale avec salle de douche privativeDeux chambres confortablesUne salle de bain avec baignoire pour vos moments de détenteUne cave pratiqueUne place de parc extérieure (CHF 100.- en supplément)
Cet appartement allie confort, modernité et tranquillité, idéal pour un couple, une famille ou toute personne recherchant un cadre de vie agréable à proximité de la nature.
Envie de le découvrir en personne?? Prenez contact avec nous pour fixer une visite.

Kontakt

Sandrine Gaschen
  • Sandrine Gaschen
  • Patrimoine Gérance SA
  • gibt Ihnen gerne Auskunft.
  • Nummer Anzeigen

Auch inseriert auf:

homegate.ch