Wohnobjekt

Erstbezug Attikawohnung Rosengarten

CHF 3'330

 | 

135 m²

 | 

4.5 Zimmer

Ort & Lage

Rosengartenstrasse, 8555 Müllheim Dorf

Erstbezug Attikawohnung Rosengarten - Karte

Verfügbarkeit

Bezugstermin:
1. September 2026

Kosten

Nettomiete:
CHF 3'050
Nebenkosten:
280
Mietpreis:
CHF 3'330

Angaben

Objektkategorie
Miete
Objektreferenz
45047bd8-65db-490a-86c2-70698d3f3f39
Adresse
Rosengartenstrasse
PLZ/Ort
8555 Müllheim Dorf
Region
Frauenfeld
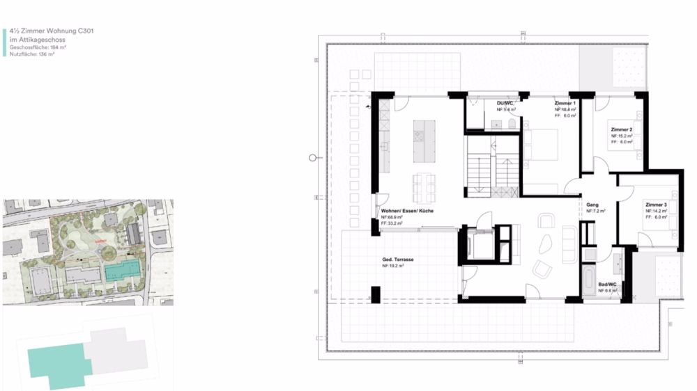
Wohnfläche
135 m²
Anzahl Zimmer
4.5
Etage
3
Baujahr
2025

Merkmale und Ausstattung

Haustiere erlaubt
Balkon
Lift
Kinderfreundlich
Rollstuhlgängig

Beschreibung

Hier möchte ich Wurzeln schlagen 14 Mietwohnungen & 4 Reiheneinfamilienhäuser im Rosengarten Müllheim
Der Bau schreitet voran - ab Oktober 2026 heissen wir Sie willkommen im Haus C mit modernen Mietwohnungen für alle Generationen sowie vier grosszügigen Reiheneinfamilienhäusern D01-D04. Ruhig gelegen, naturnah und dennoch mitten im Dorf.
Die Mietobjekte überzeugen mit einer zeitgemässen Ausstattung: grossformatige Platten im Wohnbereich, Eichenparkett in den Schlafzimmern, helle Nasszellen, Küchen mit olivfarbenen Fronten. Jede Wohnung verfügt über einen eigenen Waschturm.
Die Überbauung ist eingebettet in einen Park mit Brunnen, Sitzplätzen, Spielbereich sowie Entspannungs- und Begegnungszonen. Der alte Baumbestand bleibt erhalten, zusätzliche Bäume und Sträucher ergänzen die Grünflächen. Schulen, Einkaufsmöglichkeiten, Post und Bank sind schnell erreichbar - ebenso Frauenfeld, Weinfelden oder Winterthur.
Die Parkierung erfolgt in einer gemeinsamen Tiefgarage.
weitere Informationen auf rosengarten-miete.haeberlinag.ch
Die Visualisierungen dienen als Beispiel für die Materialisierung des Innenausbaus, welcher bei allen Einheiten gleich ist.

Kontakt

Andrea Wolff
  • Andrea Wolff
  • Häberlin Architekten HTL/STV AG
  • gibt Ihnen gerne Auskunft.
  • Nummer Anzeigen

Auch inseriert auf:

homegate.ch