Wohnobjekt

1 ½ Zimmer-Loft in Neuhausen am Rheinfall mieten

CHF 1'660

 | 

52 m²

 | 

1.5 Zimmer

Ort & Lage

Im RhyTech 1, 8212 Neuhausen am Rheinfall

1 ½ Zimmer-Loft in Neuhausen am Rheinfall mieten - Karte

Verfügbarkeit

Verfügbar ab:
1. Mai 2025

Kosten

Nettomiete:
CHF 1'500
Nebenkosten:
160
Mietpreis:
CHF 1'660

Angaben

Objektkategorie
Miete
Objektreferenz
70b7c0f4-f68d-42fd-95c6-46f5db0c642b
Adresse
Im RhyTech 1
PLZ/Ort
8212 Neuhausen am Rheinfall
Region
Schaffhausen
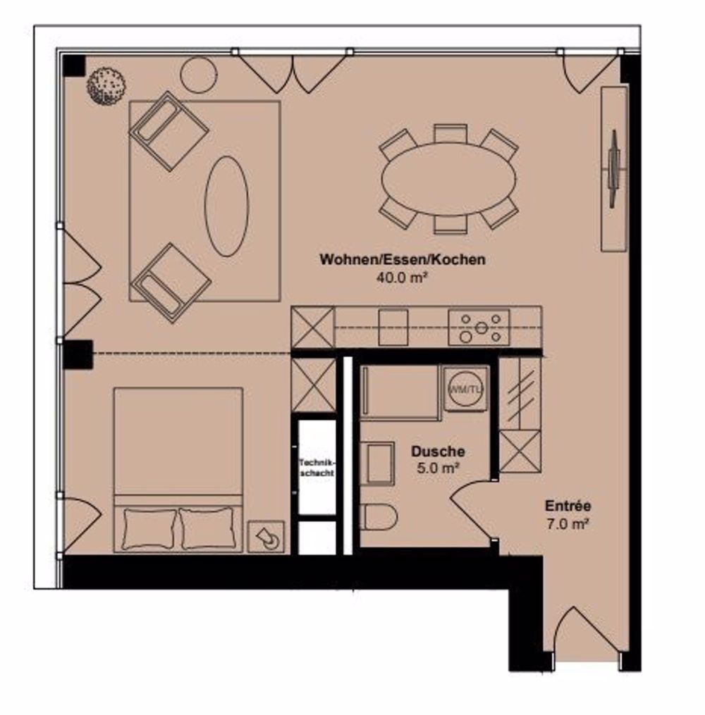
Wohnfläche
52 m²
Anzahl Zimmer
1.5
Etage
17
Baujahr
2024

Merkmale und Ausstattung

Lift

Beschreibung

Eine unvergleichbare Kulisse, hoher Wohnkomfort und eine hervorragende Lage erwartet Sie in diesem einzigartigen Zuhause. Geniessen Sie die Aussicht von den Panoramafenstern. Abhängig von Geschoss und Ausrichtung auf den Rhein, den Rheinfall, die Glarner Alpen oder über die Dächer von Schaffhausen. Im RhyfallTower finden Sie ein Wohnkonzept, welches unvergleichbar ist.

Lage

Der RhyfallTower ist Teil des lebendigen RhyTech Quartiers und befindet sich in bester Lage. Ein Spaziergang entlang dem Rhein mit anschliessender Einkehr im eigenen SkyBistro? Drinnen wie draussen erwarten Sie Orte der Begegnung und Erholung sowie ein breit gefächertes Einkaufs- und Dienstleistungsangebot in unmittelbarer Nähe. Eine grosse Migros, verschiedene kulinarische Gastroangebote und ein attraktiver Mix an Läden decken mehr als nur den täglichen Bedarf ab. Bequem, anziehend und vielfältig. Das RhyTechquartier garantiert einen einzigartig hohen Wohnkomfort mit allem, was das Herz begehrt.

Wohnungsausbau:

- Boden mit Eichenparkett

- Eine Komfortlüftung sorgt auch bei geschlossenen Fenstern für ein angenehmes Wohnklima und saubere Luft.

- Eingebaute Garderobe

- Moderne Küche

- Eigener Waschturm

- Durchdachter Grundriss

- 2 Personenlifte vorhanden

**Besichtigen. Bewerben. Mieten**

Haben wir Ihr Interesse geweckt?

Möchten Sie Ihre zukünftige Aussicht besichtigen? Klicken sie einfach auf folgendem Link:

[ https://flatfox.ch/de/viewing/58277/?code=LqSPb-j8frNba2-yZb7nzezV2irbvtntzlZkecSpq-Q ](https://flatfox.ch/de/viewing/58277/?code=LqSPb-j8frNba2-yZb7nzezV2irbvtntzlZkecSpq-Q)





Falls der Besichtigungstermin in der Vergangenheit liegt oder ausgebucht ist, kann man sich nicht mehr auf dieses Inserat bewerben.

Vielen Dank für Ihr Verständnis.

Als Mieter von Helvetia profitieren Sie von 40% Rabatt auf Ihre erste Jahresprämie für ausgewählte Helvetia Versicherungsprodukte!

****

****

**Bei den publizierten Bildern handelt es sich um typenähnliche Wohnungen. Abweichungen zum effektiven Angebot sind deshalb möglich.**

Weitere interessante Mietobjekte finden Sie unter: [ www.helvetia.ch/miete ](http://www.helvetia.ch/miete)

Kontakt

  • Helvetia Schweizerische Lebensversicherungsges. AG
  • Länggassstrasse 7, 3012, Bern

Auch inseriert auf:

flatfox.ch