Wohnobjekt

Neubauwohnung mit Blick ins Grüne

CHF 2'160

 | 

81 m²

 | 

3.5 Zimmer

Ort & Lage

Krankenhausstrasse 9, 3672 Oberdiessbach

Neubauwohnung mit Blick ins Grüne - Karte

Verfügbarkeit

Bezugstermin:
1. Februar 2026

Kosten

Nettomiete:
CHF 1'960
Nebenkosten:
200
Mietpreis:
CHF 2'160

Angaben

Objektkategorie
Miete
Objektreferenz
e69498ab-d678-451a-8b2c-f503b98b67fa
Adresse
Krankenhausstrasse 9
PLZ/Ort
3672 Oberdiessbach
Region
Bern-Mittelland
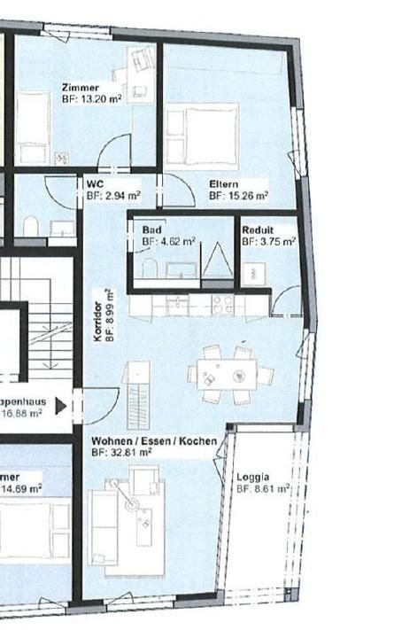
Wohnfläche
81 m²
Anzahl Zimmer
3.5
Etage
1

Merkmale und Ausstattung

Balkon
Kabelfernsehen
Lift
Garage
Schöne Aussicht
Kinderfreundlich

Beschreibung

Wir vermieten per sofort oder nach Vereinbarung eine ruhig gelegene 3.5-Zimmerwohnung an der Krankenhausstrasse 9 in Oberdiessbach.
Die Wohnung bietet Ihnen folgende Vorzüge: Parkettboden in Wohn- und SchlafzimmerPlattenboden in Küche und BadezimmerOffene Küche mit modernen KüchengerätenOffener Wohn- und EssbereichBadezimmer mit WC und DuscheBadezimmer mit WCEinbauschränkegedeckter Balkon mit Blick ins GrüneReduit mit eigenem Waschturm in der WohnungEigenes Kellerabteil Gemeinschaftlicher VeloraumLiftEin Einstellhallenplatz kann für CHF 125.00 pro Monat dazu gemietet werden. Die Wohnung liegt in einem ruhigen Quartier mit schönem Weitblick ins Grüne direkt an der Baulandgrenze. Sie erreichen den Bahnhof sowie verschieden Einkaufsmöglichkeiten in wenigen Gehminuten. Haben wir Ihr Interesse geweckt, dann freuen wir uns über Ihre Kontaktaufnahme via Kontaktformular.

Kontakt

Office 1
  • Office 1
  • v.FISCHER INVESTAS Immobilien AG
  • gibt Ihnen gerne Auskunft.
  • Nummer Anzeigen

Auch inseriert auf:

homegate.ch