Wohnobjekt

2.5-Zimmer-Wohnung im DG Nr. 401

CHF 1'850

 | 

2.5 Zimmer

Ort & Lage

Schaffhauserstrasse 9, 8461 Oerlingen

2.5-Zimmer-Wohnung im DG Nr. 401 - Karte

Verfügbarkeit

Bezugstermin:
1. Juli 2026

Kosten

Mietpreis:
CHF 1'850

Angaben

Objektkategorie
Miete
Objektreferenz
1647cd35-c5b2-426f-8e9e-3ff2015b15d4
Adresse
Schaffhauserstrasse 9
PLZ/Ort
8461 Oerlingen
Region
Andelfingen
Anzahl Zimmer
2.5
Etage
2
Baujahr
2026

Merkmale und Ausstattung

Balkon
Lift
Garage

Beschreibung

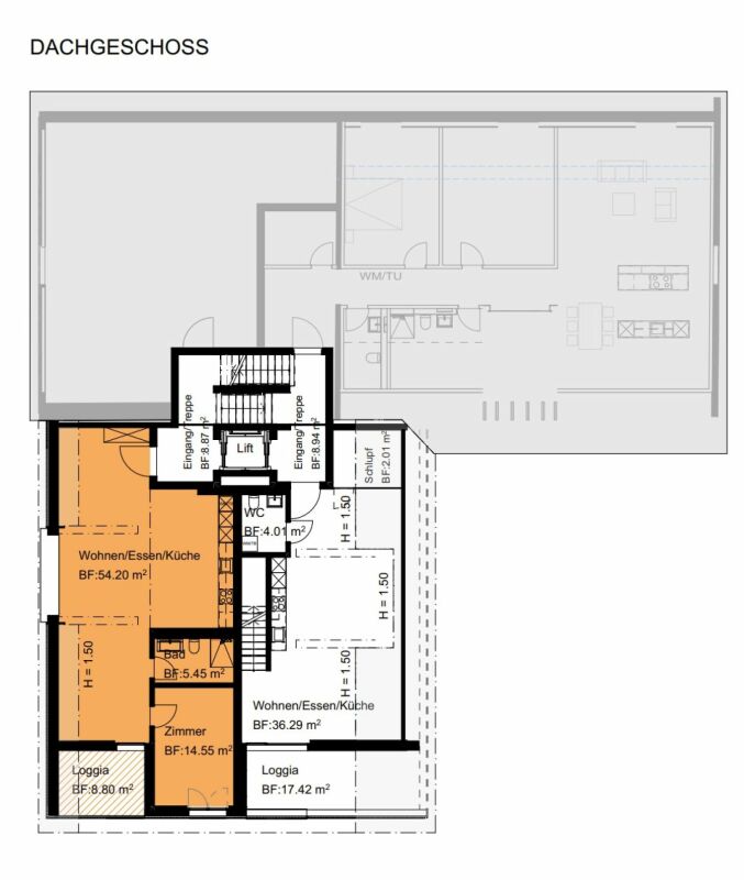
Grosszügige 2.5-Zimmer-Dachgeschosswohnung mit Loggia und Charakter Hier wohnen Sie dort, wo früher Gäste einkehrten: In einem stilvollen Anbau an ein ehemaliges Dorfrestaurant entsteht diese moderne 2.5-Zimmer-Dachgeschosswohnung. Die Wohnung verbindet ländlichen Charme mit zeitgemässem Wohnkomfort und einem besonders grosszügigen Raumgefühl.
Highlights:
Neubau im Anbau eines ehemaligen DorfrestaurantsGrosszügiger Wohn-/Essbereich mit offener Küche (über 54 m²)Hochwertiger InnenausbauDas Herzstück der Wohnung bildet der offene Wohn-, Ess- und Küchenbereich, der mit seiner grosszügigen Fläche viel Platz für Wohnen, Kochen und Zusammensein bietet. Die offene Küche fügt sich harmonisch in den Raum ein und schafft eine kommunikative Atmosphäre.
Vom Wohnbereich aus gelangen Sie direkt auf die Loggia, die zusätzlichen geschützten Aussenraum bietet und zum Entspannen im Freien einlädt.
Diese Wohnung eignet sich ideal für Singles oder Paare, die naturnah wohnen möchten - mit Stil, Grosszügigkeit und einem Hauch Geschichte.

Kontakt

Jelit Aliu
  • Jelit Aliu
  • Landolt + Co. AG Bauunternehmung
  • gibt Ihnen gerne Auskunft.
  • Nummer Anzeigen

Auch inseriert auf:

homegate.ch