Wohnobjekt

NEUBAU - Letztes Tiny House zu vermieten

CHF 1'780

 | 

40 m²

Ort & Lage

Münchackerstr. 28c, 4133 Pratteln

NEUBAU - Letztes Tiny House zu vermieten - Karte

Verfügbarkeit

Bezugstermin:
1. Juni 2026

Kosten

Nettomiete:
CHF 1'680
Nebenkosten:
100
Mietpreis:
CHF 1'780

Angaben

Objektkategorie
Miete
Objektreferenz
b2bc3f1e-cf93-4165-8857-1217416f74de
Adresse
Münchackerstr. 28c
PLZ/Ort
4133 Pratteln
Region
Liestal
Wohnfläche
40 m²
Baujahr
2024

Merkmale und Ausstattung

Haustiere erlaubt
Balkon
Parkplatz
Minergie

Beschreibung

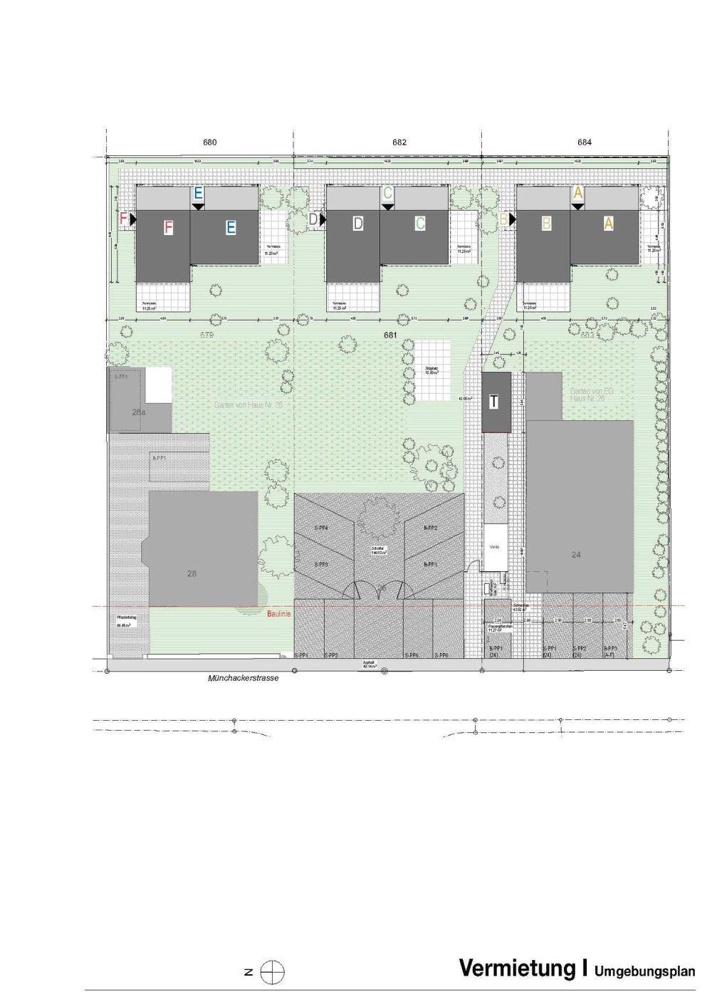
An zentraler Lage im sehr ruhigen hinteren Bereich des Grundstücks an der Münchackerstrasse 24 in Pratteln stehen drei identische Tiny-Doppelhäuser mit südlicher resp. westlicher Ausrichtung.Die Distanz zur nächsten Busstation beträgt 250 m und zum Bahnhof SBB und der Tramlinie 650 m. Mit dem Auto sind die beiden Autobahnanschlüsse Pratteln und Liestal in weniger als 5 Minuten erreichbar.Das "tiny house" 40m2 verfügt über einen kleinen Garten, einen Sitzplatz, einen separaten Geräteraum und Stauraum unter der Treppe im Erdgeschoss. Im Erdgeschoss befinden sich das Entrée, die Küche und das Wohnzimmer sowie die Treppe zum Obergeschoss. Dort befindet sich ein Zimmer mit Einbauschrank und ein Badezimmer mit Dusche, WC und Waschturm.Die Heizung erfolgt über den Fernwärmeverbund und die Wärmeverteilung durch eine Bodenheizung. Die Zentrale der Fernheizung und die übrigen Infrastrukturanlagen befinden sich in einem separaten Technikgebäude. Das Warmwasser wird mit dezentralen Elektrowärmepumpenboilern aufbereitet.Alle Dächer sind mit einer Photovoltaikanlage ausgerüstet und im Technikraum ist ein Batteriespeicher installiert. Die Stromversorgung erfolgt via ZEV (Zusammenschluss zum Eigenverbrauch von Solarstrom). Damit sind die Stromkosten ca. 20 % tiefer als der Tarif der Elektra Baselland (EBL).Ein Autoabstellplatz à CHF 50.00 kann dazugemietet werden.Wir akzeptieren auch SwissCaution und andere Mietkautionsversicherungen.Bei Interesse an diesem Mietobjekt kontaktieren Sie uns idealerweise via Kontaktformular «Anbieter kontaktieren», gerne beliefern wir Sie sodann rasch möglichst mit den Besichtigungsinformationen.Sollten Sie sich nach der Besichtigung für das Mietobjekt anmelden wollen, finden Sie das Anmeldeformular auf unserer Website. Benötigte Beilagen: Betreibungsregisterauszug, Kopie Arbeitsbestätigung oder -Vertrag, Kopie ID oder Ausländerausweis.Wir stehen für weitere Fragen gerne zur Verfügung und freuen uns auf Ihre Kontaktaufnahme!Achtung, aufgrund der Wohnfläche 40m2 eignet sich das Tiny-House nur für 1-Personen-Haushalte.

Kontakt

Jasmin Erbsmehl
  • Jasmin Erbsmehl
  • Senn Immobilien-Treuhand AG
  • gibt Ihnen gerne Auskunft.
  • Nummer Anzeigen

Auch inseriert auf:

homegate.ch