Wohnobjekt

Erstvermietung - Wohn-Ateliers für kreative Wohn- & Arbeitskonzepte

CHF 1'620

 | 

78 m²

 | 

1.5 Zimmer

Ort & Lage

Hauptstrasse 69A, 6260 Reiden

Erstvermietung - Wohn-Ateliers für kreative Wohn- & Arbeitskonzepte - Karte

Kosten

Nettomiete:
CHF 1'400
Nebenkosten:
220
Mietpreis:
CHF 1'620

Angaben

Objektkategorie
Miete
Objektreferenz
0393d9c3-aeb6-46c9-9d67-d264f90114f6
Adresse
Hauptstrasse 69A
PLZ/Ort
6260 Reiden
Region
Willisau
Wohnfläche
78 m²
Anzahl Zimmer
1.5

Merkmale und Ausstattung

Haustiere erlaubt
Balkon
Kabelfernsehen
Lift
Garage
Schöne Aussicht

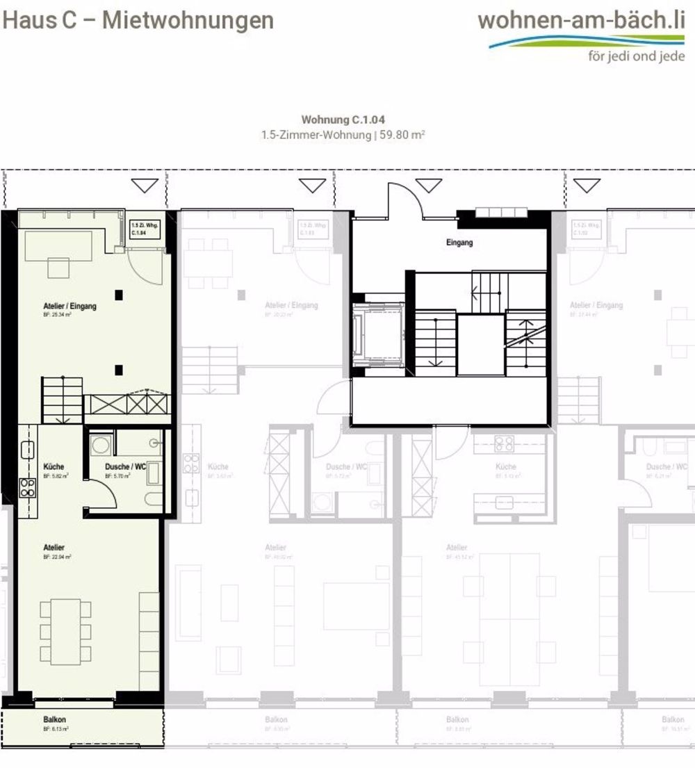
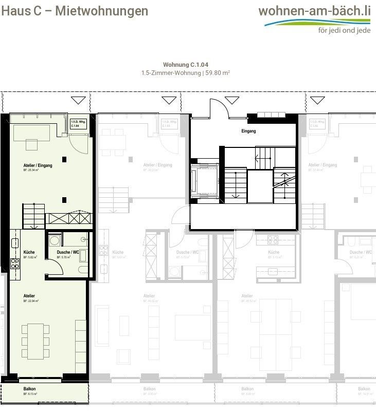
Beschreibung

Ab Herbst 2026 stehen Ihnen flexible Wohn-Ateliers zur Erstvermietung zur Verfügung – ideal für Kreative, Selbständige oder Menschen, die Wohnen und Arbeiten unter einem Dach verbinden möchten. Die grosszügigen Einheiten überzeugen durch loftartigen Charakter, moderne Architektur und vielseitige Nutzungsmöglichkeiten. Tag der offenen Türen! - Dienstag, 23.09.2025 zwischen 16:30 und 18:30 Uhr - Samstag, 27.09.2025 zwischen 10:00 und 12:00 Uhr Gerne bitten wir Sie, uns via E-Mail ([email protected]) Ihre Teilnahme (inkl. Datum) mit Ihrem Namen und Telefonnummer zu bestätigen. Wir freuen uns auf Sie! Folgende Ausstattungen erwarten Sie: - helle und hohe Räumlichkeit, auf zwei Ebenen aufgeteilt - offene, grosszügige Küche mit den neusten Geräten - geölter Eichenparkett im Wohn-, und Atelierbereich - Feinsteinzeugplatten in Küche und Nasszelle - Eine Nasszelle mit bodengleicher Dusche mit Glastrennwand - Einbauschrank im Eingangsbereich - inkl. Kellerabteil - besonnter Balkon Diese Angaben sowie der in diesem Inserat angegebene Mietzins beziehen sich auf das Wohn-Ateliers C.1.03 im Haus C dieser Überbauung. Alle Weiteren, für Sie wichtigen Informationen zu Mietzinsen, Grundrisse, der Lage, etc. aller verfügbaren Wohn-Ateliers haben wir für Sie auf einer Homepage zusammengefasst. Neben dem attraktiven Wohnraum profitieren Sie von: - Einer zentralen Postpaketstelle direkt auf dem Areal - Einstellhallenplätze - für Motorräder, E-Autos mit Ladestation und grosszügigen XL-Parkplätze - Vorzugskonditionen für die Nutzung des Carsharing-Angebots von Mobility - Privaten Disporäumen für zusätzlichen Stauraum Die zentrale Lage der Überbauung bietet nicht nur eine bequeme Erreichbarkeit, sondern ermöglicht es auch, die umliegenden Annehmlichkeiten, Geschäfte und Dienstleistungen in kürzester Zeit zu erreichen. Reiden verfügt über eine hervorragende Verkehrslage mit Direktanschlüssen an den Öffentlichen Verkehr und an die Autobahn A2. Mit der Photovoltaik Anlage auf dem Dach wird ein beträchtlicher Teil an elektrischer Energie selber produziert. Haben wir Ihr Interesse geweckt? Wir freuen uns auf Ihre Kontaktaufnahme! Freundliche Grüsse Das AVIDA-Team AVIDA - kompetent in Immobilien

Kontakt

  • AVIDA Immobilien-Treuhand AG
  • Solothurnerstrasse 233, 4600, Olten
  • Nummer Anzeigen

Auch inseriert auf:

homegate.ch