Suchen
Exklusiv
Publizieren
Anbieter
Marketing
Newsletter anmelden
Jetzt Anmelden!
Kontakt
Über uns
AGB
Suchen
Exklusiv
Publizieren
Mehr..
Anbieter
Marketing
Newsletter anmelden
Favoriten
Anmelden
Anmelden
Passwort vergessen?
Benutzername oder E-Mail-Adresse
Passwort
Angemeldet bleiben
Anmelden
Noch nicht registriert?
Kostenlos registrieren und Suchprofil erstellen
Als Immobilien-Anbieter registrieren
Mein Konto
Meine Suchprofile
Einstellungen
Exklusiv
Hilfebereich
Logout
Exklusiv Recherchiert
Publiziert am 20.10.2025.
1/1
Wohnobjekt
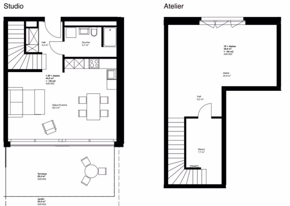
1,5 neuer Raum mit Werkstatt im Untergeschoss - A20-002
CHF
2'180
|
2.5
Zimmer
Ort & Lage
Rue du Chêne 20, 1020 Renens VD
Kosten
Mietpreis:
CHF 2'180
Angaben
Objektkategorie
Miete
Objektreferenz
9dff2ccd-2f43-49d4-a2d0-1b424be44ddb
Adresse
Rue du Chêne 20
PLZ/Ort
1020
Renens VD
Region
Lausanne
Anzahl Zimmer
2.5
Baujahr
2025
Merkmale und Ausstattung
Balkon
Lift
Beschreibung
Mehr Text sehen
Kontakt
Auch inseriert auf:
urbanhome.ch
Ihre letzten Ansichten