Wohnobjekt

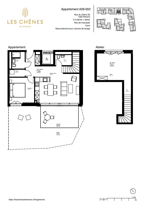
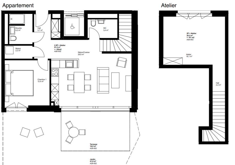
2.5 pièce neuf avec atelier au sous-sol - A26-002

CHF 2'470

 | 

81 m²

 | 

3.5 Zimmer

Ort & Lage

Rue du Chêne 26, 1020 Renens VD

2.5 pièce neuf avec atelier au sous-sol - A26-002 - Karte

Kosten

Nettomiete:
CHF 2'200
Nebenkosten:
270
Mietpreis:
CHF 2'470

Angaben

Objektkategorie
Miete
Objektreferenz
71748a73-0128-495e-ad93-6a352fc2823b
Adresse
Rue du Chêne 26
PLZ/Ort
1020 Renens VD
Region
Lausanne
Wohnfläche
81 m²
Anzahl Zimmer
3.5
Etage
EG
Baujahr
2025

Merkmale und Ausstattung

Haustiere erlaubt
Balkon
Lift
Garage
Parkplatz
Rollstuhlgängig
Minergie

Beschreibung

2.5 pièce neuf+ Atelier au sous-sol de 20m2+ Terrasse de 16m2 et jardin de 42m2 Livraison prévue dès le printemps 2026 Découvrez LES CHÊNES DE RENENS, un nouveau quartier résidentiel, offrant 175 appartements neufs à louer, du studio cosy au spacieux 5.5 pièces familial, en passant par des duplex avec ateliers privatifs et des logements à loyer abordable. Ici, chaque style de vie trouve sa place ! Tous les appartements se distinguent par leur généreuse superficie, leur agencement optimal et des finitions de standing, offrant un cadre de vie confortable et raffiné. Imaginez un îlot de tranquillité, baigné de lumière et conçu pour votre confort. LES CHÊNES DE RENENS, c'est 175 appartements contemporains nichés dans un ancien site industriel, transformé en un quartier résidentiel moderne et convivial. Chaque immeuble s'organise autour d'un vaste parc arboré, véritable bulle de verdure. La plupart des appartements profitent d'un espace extérieur privé, idéal pour se ressourcer ou partager des moments entre voisins. Les buanderies-lounges communautaires, à chaque entrée, deviennent de vrais lieux de rencontre et d'échanges.

Kontakt

Elena Iliadis
  • Elena Iliadis
  • de Rham SA
  • gibt Ihnen gerne Auskunft.
  • Nummer Anzeigen

Auch inseriert auf:

homegate.ch