Wohnobjekt

Erstvermietung einer modernen 4.5 - Zimmerwohnung im Dachgeschoss

CHF 1'800

 | 

105 m²

 | 

4.5 Zimmer

Ort & Lage

Windegg 2517, 8718 Schänis

Erstvermietung einer modernen 4.5 - Zimmerwohnung im Dachgeschoss - Karte

Kosten

Nettomiete:
CHF 1'520
Nebenkosten:
280
Mietpreis:
CHF 1'800

Angaben

Objektkategorie
Miete
Objektreferenz
d644d8f6-c5b3-4540-b1ea-911172a76d9b
Adresse
Windegg 2517
PLZ/Ort
8718 Schänis
Region
See-Gaster
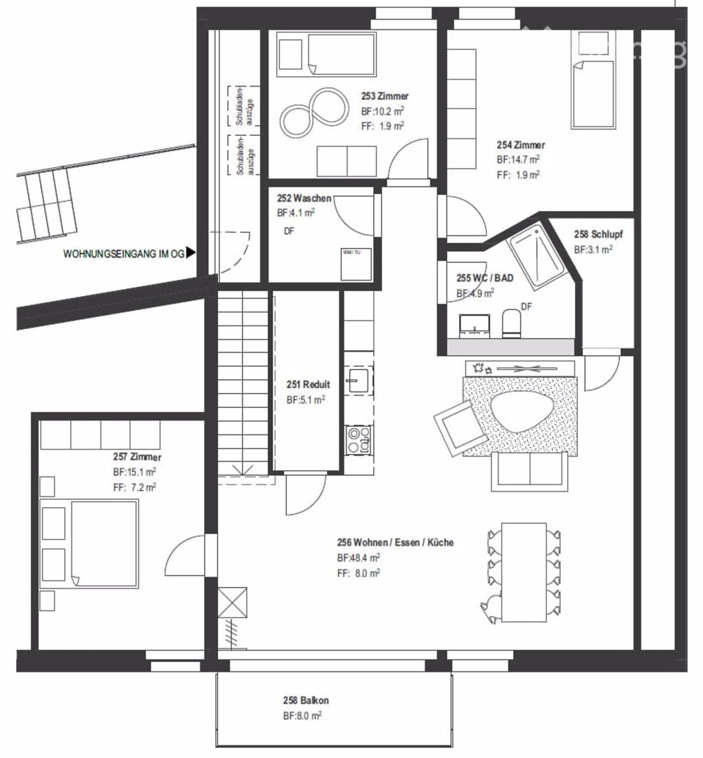
Wohnfläche
105 m²
Anzahl Zimmer
4.5
Etage
2
Baujahr
2025

Merkmale und Ausstattung

Balkon
Garage

Beschreibung

Entdecken Sie diesen wunderschönen und grosszügigen Neubau mit insgesamt 5 Wohnungen in einem familiären Mehrfamilienhaus an der Windegg 2517 in Schänis. Zur Vermietung steht eine 4.5 - Zimmerwohnung im Dachgeschoss. Die Highlights der 4.5 - Zimmerwohnung im Dachgeschoss auf einen Blick: Neubau / Erstbezug Mehrfamilienhaus mit familiärem Charakter Einmaliges Wohngefühl durch die Dachschrägen Helle Räume mit zeitgemässem Ausbau 1 Nasszellen (DU/WC mit Regendusche und praktischem Handtuchradiator) Reduit mit eigener Waschmaschine und Tumbler in der Wohnung Bushaltestelle direkt vor dem Haus Kellerabteil im Untergeschoss Die Wohnung bietet eine moderne Küche (Backofen, Kühlschrank mit separatem Gefrierfach, Geschirrspüler und Glaskeramikkochfeld), pflegeleichte Platten- und Vinylböden, Nasszelle mit DU/WC , lichtdurchflutetes Wohnzimmer mit Zugang zum Balkon, Kellerraum im Untergeschoss. Zur Wohnung kann ein Garagenplatz für CHF 100.00 oder ein Parkplatz im Freien für CHF 50.00 pro Monat gemietet werden. Bitte berücksichtigen Sie, dass Haustiere nicht erlaubt sind und das Haus über keinen Lift verfügt. Wir freuen uns auf Ihre Anfrage und stehen für eine Besichtigung gerne zur Verfügung. Ihre KS Immo GmbH

Kontakt

  • KS Immo GmbH
  • Nummer Anzeigen

Auch inseriert auf:

homegate.ch