Wohnobjekt

Stilvolle 3,5-Zimmer-Gartenwohnung mit Wintergarten – Neubau 2026 & nur 150 m zum Bahnhof Siebnen

CHF 3'100

 | 

110 m²

 | 

3.5 Zimmer

Ort & Lage

Unterer Althof 1, 8854 Siebnen

Stilvolle 3,5-Zimmer-Gartenwohnung mit Wintergarten – Neubau 2026 & nur 150 m zum Bahnhof Siebnen - Karte

Verfügbarkeit

Bezugstermin:
1. Juni 2026

Kosten

Nettomiete:
CHF 2'800
Nebenkosten:
300
Mietpreis:
CHF 3'100

Angaben

Objektkategorie
Miete
Objektreferenz
47afb8e0-04fb-46d8-9e57-85eabbf9d727
Adresse
Unterer Althof 1
PLZ/Ort
8854 Siebnen
Region
March
Wohnfläche
110 m²
Anzahl Zimmer
3.5
Etage
EG
Baujahr
2026

Merkmale und Ausstattung

Lift
Garage
Parkplatz
Kinderfreundlich

Beschreibung

WHITE GEM- moderne Architektur und höchste Komfort in Siebnen
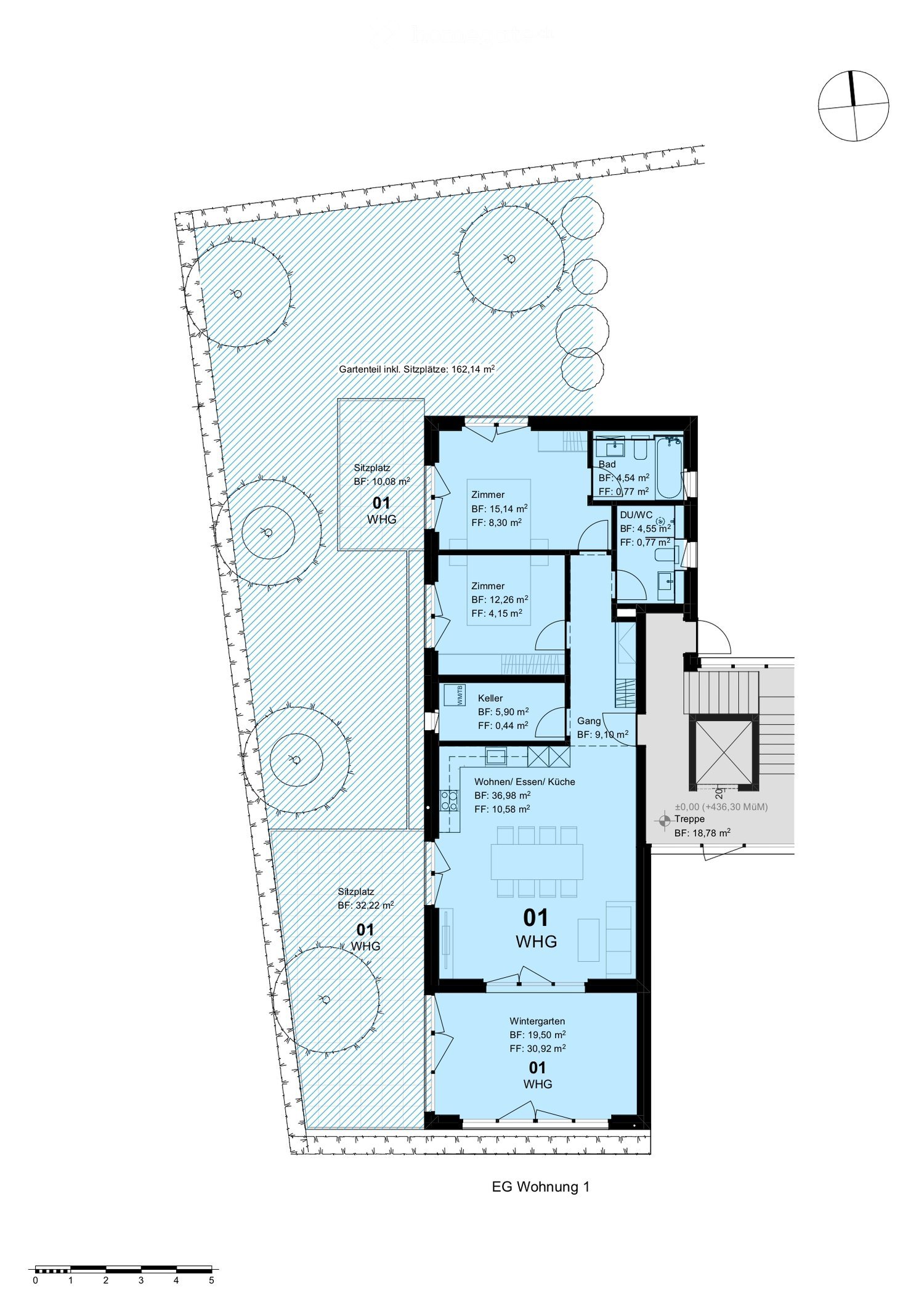
Diese wunderschöne Gartenwohnung mit rund 110 m² Wohnfläche befindet sich in einem stilvollen Neubau mit nur vier Wohneinheiten und überzeugt durch eine durchdachte Raumaufteilung sowie helle, grosszügige Wohnbereiche. Die kleine Anzahl an Wohneinheiten sorgt für ein angenehmes und persönliches Wohnumfeld.
Als einzige Wohnung im Erdgeschoss geniessen Sie ein besonderes Mass an Privatsphäre – ohne direkte Nachbarn auf derselben Etage.
Der offene Wohn- und Essbereich bildet das Herzstück der Wohnung und geht fliessend in den Wintergarten (ca. 20 m²)über, der zusätzlichen Wohnraum schafft. Zwei Sitzplätze sowie ein Gartenbereich zur alleinigen Nutzung ergänzen den Aussenbereich.
Dank der zentralen Lage in Siebnen liegt der Bahnhof Siebnen nur rund 150 Meter entfernt und bietet attraktive Zugverbindungen nach Zürich. Einkaufsmöglichkeiten sowie das Zentrum sind ebenfalls bequem zu Fuss erreichbar. Die Liegenschaft befindet sich in einem beliebten Wohnquartier, das überwiegend von Einfamilienhäusern geprägt ist.
Wohnkomfort auf einen Blick:
Neubau 2026
Kleines Mehrfamilienhaus mit nur 4 Parteien
Einzige Erdgeschosswohnung – keine direkten Nachbarn
ca. 110 m² Wohnfläche
Wintergarten mit ca. 20 m²
Zwei Sitzplätze & Gartenbereich zur alleinigen Nutzung
Grosszügiger Wohn- und Essbereich mit Übergang zum Wintergarten
Moderne Küche mit Elektrolux Einbaugeräten
Lichtdurchflutete Schlafzimmer mit raumhohen Fenstern
Einbauschrank im Entrée
Edle Materialisierung mit Echtholzparkett und Natursteinplatten
Praktisches Reduit mit Waschmaschine und Tumbler
Elektrische Storen und Markisen
Lift im Haus
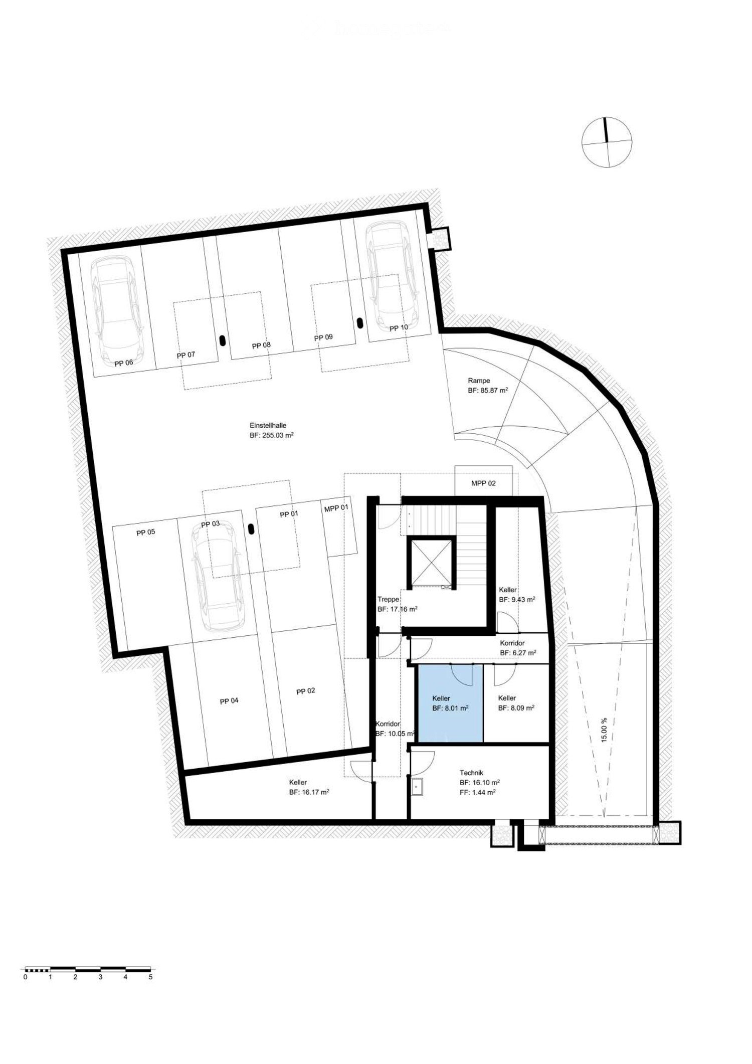
Tiefgaragenplatz für CHF 150.– / Monat

Kontakt

Ayshe Gemedzhy
  • Ayshe Gemedzhy
  • gibt Ihnen gerne Auskunft.
  • Nummer Anzeigen

Auch inseriert auf:

homegate.ch