Suchen
Exklusiv
Publizieren
Anbieter
Marketing
Newsletter anmelden
Jetzt Anmelden!
Kontakt
Über uns
AGB
Suchen
Exklusiv
Publizieren
Mehr..
Anbieter
Marketing
Newsletter anmelden
Favoriten
Anmelden
Anmelden
Passwort vergessen?
Benutzername oder E-Mail-Adresse
Passwort
Angemeldet bleiben
Anmelden
Noch nicht registriert?
Kostenlos registrieren und Suchprofil erstellen
Als Immobilien-Anbieter registrieren
Mein Konto
Meine Suchprofile
Einstellungen
Exklusiv
Hilfebereich
Logout
Exklusiv Recherchiert
Publiziert am 7.11.2025.
1/1
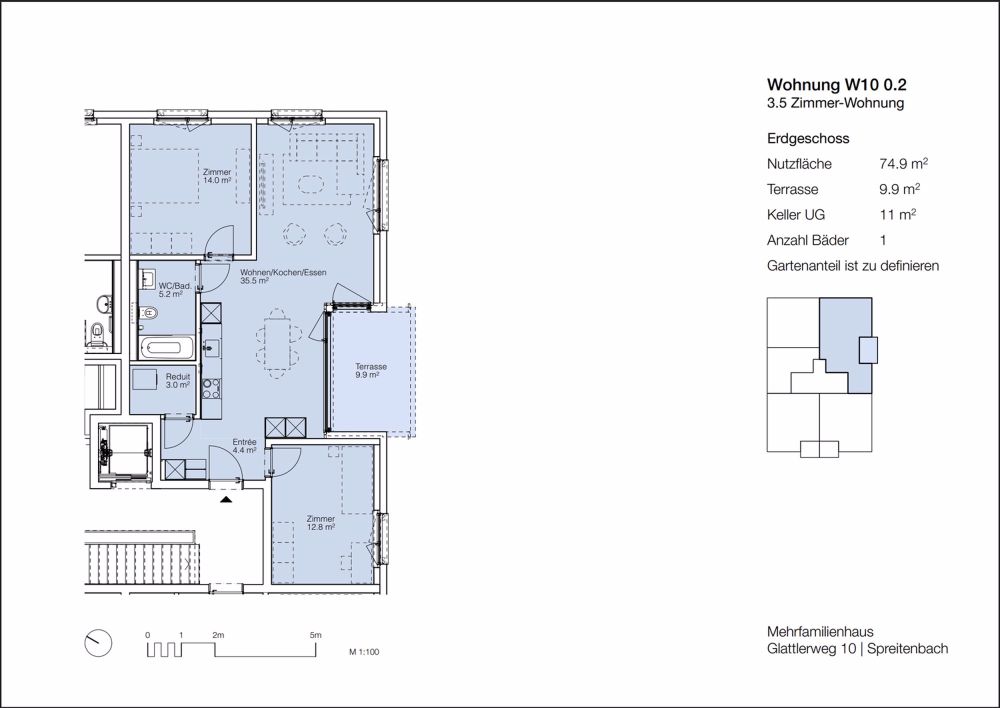
Wohnobjekt
Glattlerweg 10 8957 Spreitenbach sucht Nachmieter ab dem 01.10
CHF
2'250
|
72
m
²
|
3.5
Zimmer
Ort & Lage
Glattlerweg 10, 8957 Spreitenbach
Kosten
Nettomiete:
CHF 2'140
Nebenkosten:
110
Mietpreis:
CHF 2'250
Angaben
Objektkategorie
Miete
Objektreferenz
79a8fa29-f5c1-45e0-932a-917d4026522b
Adresse
Glattlerweg 10
PLZ/Ort
8957
Spreitenbach
Region
Baden
Wohnfläche
72 m²
Anzahl Zimmer
3.5
Etage
6
Baujahr
2024
Merkmale und Ausstattung
Schöne Aussicht
Minergie
Beschreibung
Wunderschöne Wohnung in Spreitenbach sucht Nachmieter.Bitte bei Vivura anrufen für einen Besichtigungstermin.
Mehr Text sehen
Kontakt
Auch inseriert auf:
immoscout24.ch
Ihre letzten Ansichten