Wohnobjekt

LETZTE EINHEIT: Hochwertige 3.5-Zimmer Wohnung im Neubauprojekt Verde in Centro

CHF 2'370

 | 

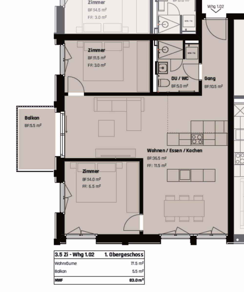
3.5 Zimmer

Ort & Lage

Langgasse 74, 9008 St. Gallen

LETZTE EINHEIT: Hochwertige 3.5-Zimmer Wohnung im Neubauprojekt Verde in Centro - Karte

Verfügbarkeit

Ab Sofort

Kosten

Nettomiete:
CHF 2'240
Nebenkosten:
130
Mietpreis:
CHF 2'370

Angaben

Objektkategorie
Miete
Objektreferenz
138b7c3a-cf21-4efc-8657-2190a0396d79
Adresse
Langgasse 74
PLZ/Ort
9008 St. Gallen
Region
St. Gallen
Anzahl Zimmer
3.5
Etage
1
Baujahr
2025

Merkmale und Ausstattung

Balkon
Lift

Beschreibung

VERDE IN CENTRO - Modernes Wohnen im Herzen von St. Gallen AFORIA Immobilien präsentiert: Zwischen Kantonsspital und Universität St. Gallen entsteht mit VERDE IN CENTRO ein architektonisches Highlight urbaner Lebensqualität. Die Highlights auf einen Blick: Zentrale Lage mit optimaler ÖV-Anbindung (Bus vor der Tür, Bahnhof St. Fiden in 550?m)Helle, einladende Räume mit bodentiefen Fenstern und durchdachtem LichtkonzeptHochwertige Küchen mit Geräten von Bora, Electrolux & Suter InoxEdle Bäder mit Armaturen von Gessi und Design von Duravit by StarckEichen-Fischgrätparkett, raumhohe Türen, eigene Waschtürmegrosszügiger Balkon Gemeinschaftliche Dachterrasse mit Begrünung und WeitsichtNachhaltige Energieversorgung (Erdsonden, GeoCooling, Photovoltaik)Veloabstellräume & Kellerabteile pro WohnungErleben Sie Wohnkomfort mit Stil, Qualität und nachhaltiger Bauweise. Interessiert? Dann freuen wir uns auf Ihren Anruf unter der Nummer 071 411 22 00 Wir freuen uns auf Sie! Ihr AFORIA Immobilien AG Team

Kontakt

  • AFORIA Immobilien AG
  • Seestrasse 27, 9326, Horn
  • Nummer Anzeigen

Auch inseriert auf:

homegate.ch