Wohnobjekt

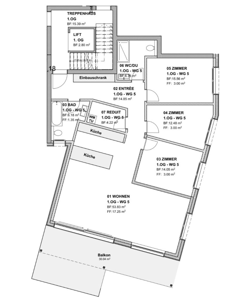
4.5 Zimmer-Wohnung im 1.OG ab sofort verfügbar

CHF 2'780

 | 

128 m²

 | 

4.5 Zimmer

Exklusiv Recherchiert
Ihr exklusiver Vorteil als Premium-Abonnent*in
Dieses Inserat ist in der Vorvermarktung
Nirgendwo sonst ausgeschrieben
Melden Sie bereits jetzt Ihr Interesse

Ort & Lage

6416, Steinerberg

4.5 Zimmer-Wohnung im 1.OG ab sofort verfügbar - Karte

Verfügbarkeit

Ab Sofort

Kosten

Mietpreis:
CHF 2'780

Angaben

Objektkategorie
Miete
Status
Verfügbar
Objektreferenz
Adresse
PLZ/Ort
6416 Steinerberg
Region
Schwyz
Wohnfläche
128 m²
Anzahl Zimmer
4.5 Zi
Etage
2
Kategorie
Wohnung

Beschreibung

Neubau in Steinerberg: Bald verfügbare Mietwohnungen im Erstbezug - inklusive und Wohnung. Jetzt vormerken und Traumwohnung sichern!
ERFAHREN SIE ALS EINER DER ERSTEN MEHR ÜBER DIESES PROJEKT!

Mit dem einzigartigen Premium Abonnement erfahren Sie als einer der Ersten was, wann und wo gebaut wird. Erhalten Sie frühzeitigen Zugang zu Neubauprojekten in der Schweiz sowie Vorabinformationen zu geplanten Bauprojekten. Sie können die Projekte komfortabel durchsuchen, filtern, Suchabos einrichten und vieles mehr.

Kontakt

  • Lorem ipsum dolor sit amet, c
  • Lore, Lorem ipsum
Jetzt Anbieter kontaktieren!

Mit unserem Premium Abonnement sofort alle Anbieter kontaktieren. Erhalten Sie zusätzlich:

  • Zugang zu 2000 Projekt-Vorankündigungen und 500 Baugesuchen.
  • Exklusiv recherchierte Inserate aus unserem Partner Netzwerk.
  • Vorsprung gegenüber anderen Interessenten

Keine automatische Verlängerung

Anbieter kontaktieren