Wohnobjekt

Erstvermietung – Wohnen am Sonnenberg: Moderne 4.5-Zimmer-Wohnung mit grosser Aussenfläche

CHF 2'850

 | 

99 m²

 | 

4.5 Zimmer

Ort & Lage

Trottenackerstrasse 10b, 9507 Stettfurt

Erstvermietung – Wohnen am Sonnenberg: Moderne 4.5-Zimmer-Wohnung mit grosser Aussenfläche - Karte

Verfügbarkeit

Bezugstermin:
12. Januar 2026

Kosten

Nettomiete:
CHF 2'600
Nebenkosten:
250
Mietpreis:
CHF 2'850

Angaben

Objektkategorie
Miete
Objektreferenz
a327d35b-2140-4b25-9d05-79ba60bef684
Adresse
Trottenackerstrasse 10b
PLZ/Ort
9507 Stettfurt
Region
Frauenfeld
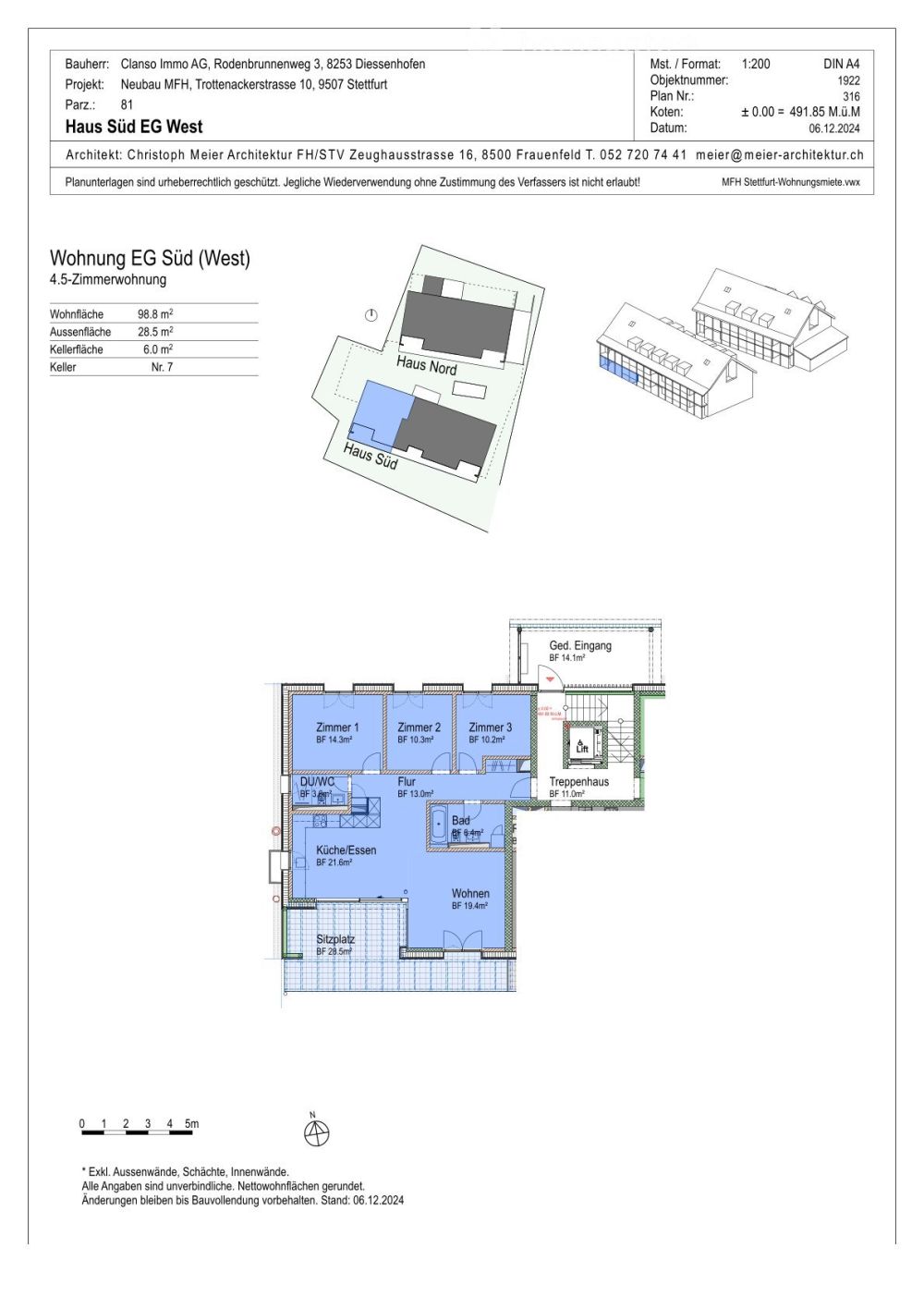
Wohnfläche
99 m²
Anzahl Zimmer
4.5
Etage
EG
Baujahr
2025

Merkmale und Ausstattung

Haustiere erlaubt
Balkon
Lift
Garage
Schöne Aussicht
Parkplatz
Kinderfreundlich
Rollstuhlgängig
Minergie

Beschreibung

Entdecken Sie diese hochwertige 4.5-Zimmer-Neubauwohnung in der attraktiven Überbauung „Wohnen am Sonnenberg“ in Stettfurt. Die Wohnung befindet sich im Erdgeschoss oder im Obergeschoss eines modernen Neubaus (Baujahr 2025) und bietet mit 98.8 m² Wohnfläche sowie einem grosszügigen privaten Aussenbereich von 28.5 m² modernen Wohnkomfort in ruhiger, sonniger Lage.
Diese Wohnung überzeugt mit:
Helle Wohnräume: Grosszügige Zimmer mit Holzböden Optik, weissen Wänden und grossen Holz Fenstern für optimalen Lichteinfall
Privater Aussenbereich (28.5 m²): Direkter Zugang vom Wohnbereich zu Ihrem eigenen Sitzplatz oder Balkon – ideal für entspannte Stunden im Freien.
Offener Wohn- und Essbereich mit moderner Küche: Hochwertig ausgestattete Küche mit Induktionskochfeld, grossem Kühlschrank mit Tiefkühler, Geschirrspüler mit ComfortLift, sowie Combi-Steamer mit Wärmeschublade – perfekt für anspruchsvolles Wohnen.
Hoher Wohnkomfort & gesundes Raumklima: Sehr guter Schall- und Wärmeschutz, gezielte Abschirmung gegen Elektrosmog sowie ein modernes Freecooling-System, das an warmen Tagen für eine natürliche, geräuschlose Kühlung sorgt – energieeffizient und ohne hohen Stromverbrauch.
Modernes Badezimmer: Zeitgemäss ausgestattet mit Dusche und Badewanne, hochwertigen Armaturen sowie Bodenheizung.
Eigener Waschturm in der Wohnung: Waschmaschine und Tumbler bieten maximale Flexibilität im Alltag.
Lage & Umgebung
Die Wohnung liegt in einer ruhigen und sonnigen Wohnlage in Stettfurt.
Bushaltestelle Lettenstrasse: ca. 5 Gehminuten
Volg für den täglichen Bedarf: ca. 5 Gehminuten
Schulhaus & Spielplatz: ca. 4 Gehminuten
Die naturnahe Umgebung sowie die gute Anbindung machen diese Wohnung ideal für Paare oder Familien, die Wert auf Qualität, Ruhe und modernes Wohnen legen.
Weitere Informationen
Erstvermietung
Ab sofort bezugsbereit
Einstellhallenplätze: CHF 135.– / Monat
E-Mobility-Parkplätze vorhanden
Besichtigung
Haben wir Ihr Interesse geweckt? Gerne laden wir Sie zu einer persönlichen Besichtigung ein, damit Sie sich vor Ort von der Qualität und dem Wohngefühl überzeugen können. Wir freuen uns auf Ihre Kontaktaufnahme und stehen Ihnen für Fragen jederzeit gerne zur Verfügung.
Weitere Wohnungsangebote auch unter: http://www.clanso.ch

Kontakt

Clanso Immo AG
  • Clanso Immo AG
  • gibt Ihnen gerne Auskunft.
  • Nummer Anzeigen

Auch inseriert auf:

homegate.ch