Wohnobjekt

Moderne 3.5-Zimmer-Neubau-Wohnung mit grossem Sitzplatz in Tegerfelden

CHF 2'100

 | 

174 m²

 | 

3.5 Zimmer

Ort & Lage

Oberfeld 28, 5306 Tegerfelden

Moderne 3.5-Zimmer-Neubau-Wohnung mit grossem Sitzplatz in Tegerfelden - Karte

Verfügbarkeit

Bezugstermin:
1. April 2026

Kosten

Mietpreis:
CHF 2'100

Angaben

Objektkategorie
Miete
Objektreferenz
2cafb9f4-e206-4bd5-9c2c-49b71e17af82
Adresse
Oberfeld 28
PLZ/Ort
5306 Tegerfelden
Region
Zurzach
Wohnfläche
174 m²
Anzahl Zimmer
3.5
Etage
UG
Baujahr
2026

Merkmale und Ausstattung

Balkon
Schöne Aussicht
Parkplatz

Beschreibung

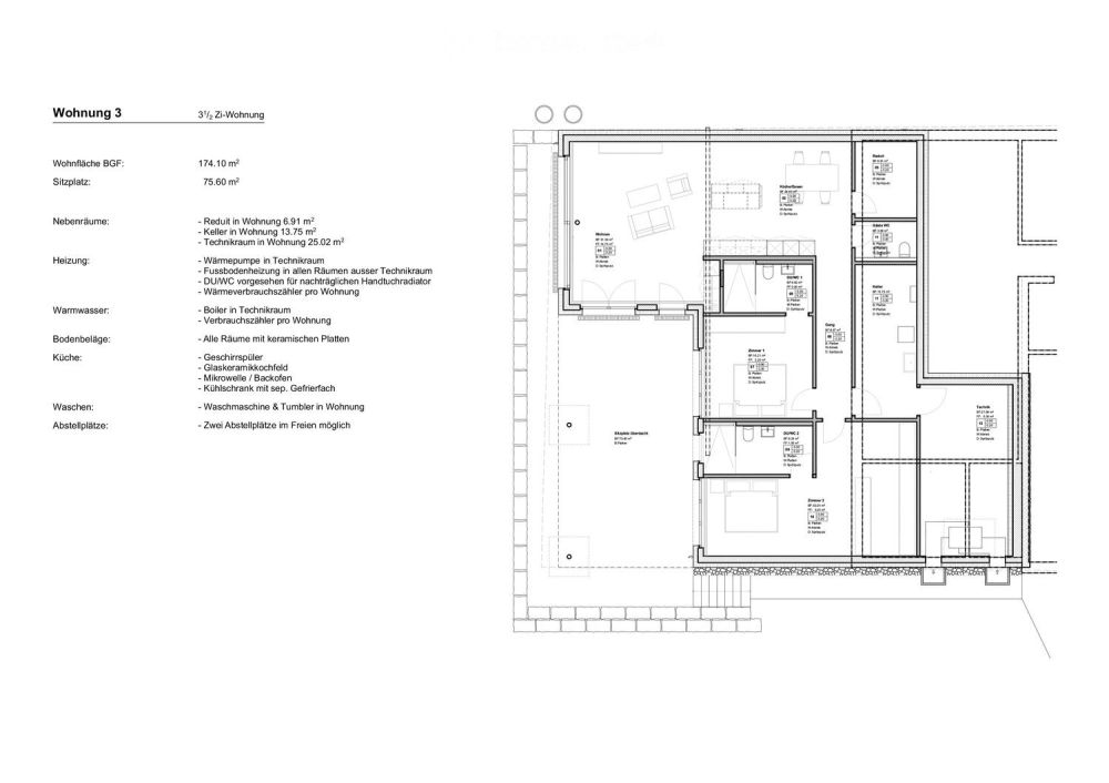
Entdecken Sie diese grosszügige 3.5-Zimmer-Wohnung in einem brandneuen Gebäude (Baujahr 2026) in der Gemeinde Tegerfelden. Mit 174.1 m² Wohnfläche bietet diese moderne Wohnung viel Platz und Komfort für anspruchsvolle Mieter.
Die Wohnung verfügt über:
Grosszügiges Wohnzimmer: Heller und einladender Wohnbereich
Zwei separate Schlafzimmer: mit direktem Zugang zu Dusche/WC (auch als WG geeignet)
Moderne Küche: Zeitgemäss ausgestattet für komfortables Kochen
Badezimmer: Modern und funktional gestaltet
Praktischer Hauswirtschaftsraum: Mit eigener Waschmaschine ausgestattet
Abstellraum: Zusätzlicher Stauraum für Ihre Bedürfnisse
Privater Sitzplatz: 75.60 m2 mit Aussicht Besondere Ausstattung: Die Wohnung ist mit einer eigenen Waschmaschine ausgestattet und verfügt über einen Parkplatz. Rauchen ist in der Wohnung gestattet. Lage und Umgebung: Die Wohnung ist sehr sonnig gelegen und bietet im Sommer viel Sonnenschein. Die nächste Bushaltestelle "Tegerfelden Hochbrücke" erreichen Sie in etwa 5 Gehminuten. Autoabstellplätze sind vorhanden.
Diese Neubau-Wohnung ist ab April 2026 verfügbar und bietet modernen Wohnkomfort in einer attraktiven Lage im Kanton Aargau. Ideal für alle, die Ruhe und Komfort in einem neuen Zuhause suchen.

Kontakt

Mühlebach Arnold
  • Mühlebach Arnold
  • gibt Ihnen gerne Auskunft.
  • Nummer Anzeigen

Auch inseriert auf:

homegate.ch