Wohnobjekt

Grosszügige 3.5-Zimmerwohnung "ännet em Dorfbach"

CHF 1'900

 | 

80 m²

 | 

3.5 Zimmer

Ort & Lage

Käsereistrasse 2B, 9555 Tobel

Grosszügige 3.5-Zimmerwohnung "ännet em Dorfbach" - Karte

Kosten

Nettomiete:
CHF 1'760
Nebenkosten:
140
Mietpreis:
CHF 1'900

Angaben

Objektkategorie
Miete
Objektreferenz
b2b47cc0-d984-4d0f-bb32-603c63be29ea
Adresse
Käsereistrasse 2B
PLZ/Ort
9555 Tobel
Region
Münchwilen
Wohnfläche
80 m²
Anzahl Zimmer
3.5
Etage
3
Baujahr
2024

Merkmale und Ausstattung

Minergie

Beschreibung

Zentrum Tobel
Das "Zentrum Tobel" w& 228;chst weiter. An der K& 228;sereistrasse 2a/b, wurden zwei weitere Wohnh& 228;user mit je 16 Mietwohnungen "& 228;nnet em Dorfbach" im ruhigen Teil zwischen dem renaturierten und idyllischen Dorfbach und der Gr& 252;nzone im Jahre 2024 fertig erstellt.
Der Naturbach und die verkehrsberuhigend ausgef& 252;hrte Erschliessungsstrasse sollen zum Aufenthalts- und Begegnungsraum f& 252;r die Bewohner werden. Der Dorfmarkt mit Poststelle f& 252;r den t& 228;glichen Bedarf ist ebenfalls in das Quartier eingebunden.

& 214;kologisch und mit PlusEnergie wohnen
PlusEnergie bedeutet, dass diese H& 228;user, & 252;ber das gesamte Jahr betrachtet, mehr Energie produzieren als von den Bewohnern verbraucht wird. Der ben& 246;tigte Solarstrom f& 252;rs Wohnen wird auf dem Hausdach produziert. & 220;bersch& 252;ssiger Strom wird in den hauseigenen Batterien gespeichert oder dem & 246;ffentlichen Stromnetz zugef& 252;hrt.
Der hohe D& 228;mmstandard der Geb& 228;udeh& 252;lle und das innovative Energie-/ L& 252;ftungskonzept ber& 252;cksichtigen den & 246;kologisch Aspekt und sorgen zudem f& 252;r geringe Energiekosten und eine gleichbleibend hohe Wohnqualit& 228;t.

Wohnen "& 228;nnet em Bach"
Die grossz& 252;gigen Wohnungen sind gut durchdacht und lassen viel Spielraum f& 252;r die Bewohner.

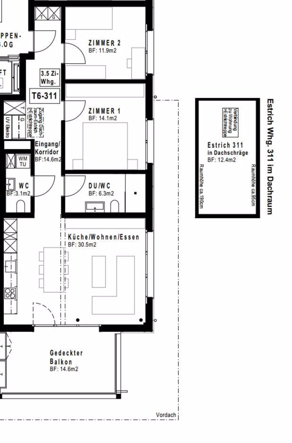
  • Wohnfl& 228;che ca. 80 m& 178;
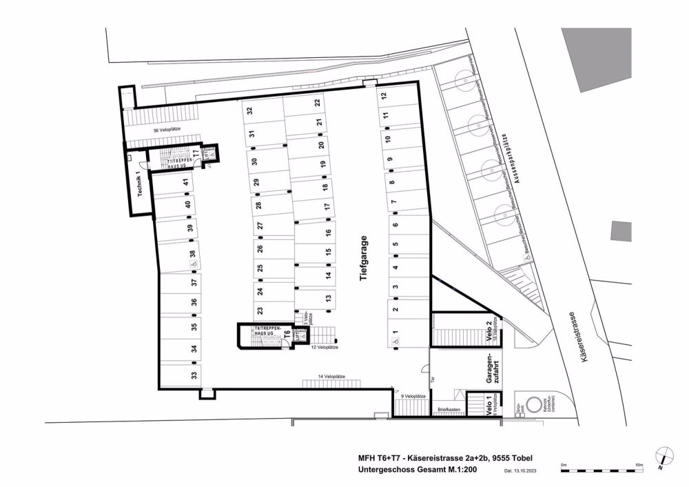
  • Lift vom UG in alle Geschosse
  • Tiefgarage mit Ladem& 246;glichkeiten f& 252;r Elektrofahrzeuge
  • gen& 252;gend Fahrradabstellpl& 228;tze
  • Entr& 233;e mit Garderobenschrank
  • separate Dusche, Lavabo, Spiegelschrank und WC
  • separates WC, Lavabo, M& 246;bel mit integrierter Waschmaschine und W& 228;schetrockner
  • Schlafzimmer 14 m2
  • 1 zus& 228;tzliches Zimmer 12 m2
  • K& 252;che mit besten K& 252;chenger& 228;ten, helle Fronten
  • K& 252;chen-, Ess-, Wohnbereich wird durch einen grossen Balkon erweitert
  • gedeckter Balkon
  • LED-Deckenlampen im Entr& 233;e, Korridor und K& 252;che
  • elektrische Rafflamellenstoren
  • ganze Wohnung mit Plattenbel& 228;gen und gestrichenen/lasierten Betondecken
  • Zur Wohnung geh& 246;rt ein Kellerabteil im Untergeschoss
  • PlusEnergieBau, Minergie P-D& 228;mmung, Photovoltaikanlage, Batteriespeicher
  • Kontrollierte Wohnrauml& 252;ftung

Falls die Wohnung Ihr Interesse geweckt hat, z& 246;gern Sie nicht uns f& 252;r eine Besichtigung zu kontaktieren.

Haustiere auf Anfrage.

Kontakt

  • WICK Liegenschaftentreuhand AG
  • Weinfelderstrasse 6, 9542, Münchwilen TG
  • Nummer Anzeigen

Auch inseriert auf:

newhome.ch