Wohnobjekt

grosszügige Dachwohnung, "Zentrum Tobel"

CHF 1'965

 | 

97 m²

 | 

4.5 Zimmer

Ort & Lage

Käsereistrasse 2b, 9555 Tobel

grosszügige Dachwohnung,  "Zentrum Tobel" - Karte

Verfügbarkeit

Bezugstermin:
1. Februar 2026

Kosten

Nettomiete:
CHF 1'785
Nebenkosten:
180
Mietpreis:
CHF 1'965

Angaben

Objektkategorie
Miete
Objektreferenz
7907f0d8-1898-45ea-8dae-e54bfdf18f41
Adresse
Käsereistrasse 2b
PLZ/Ort
9555 Tobel
Region
Münchwilen
Wohnfläche
97 m²
Anzahl Zimmer
4.5
Baujahr
2024

Merkmale und Ausstattung

Balkon
Kabelfernsehen
Lift
Garage
Schöne Aussicht
Parkplatz
Minergie

Beschreibung

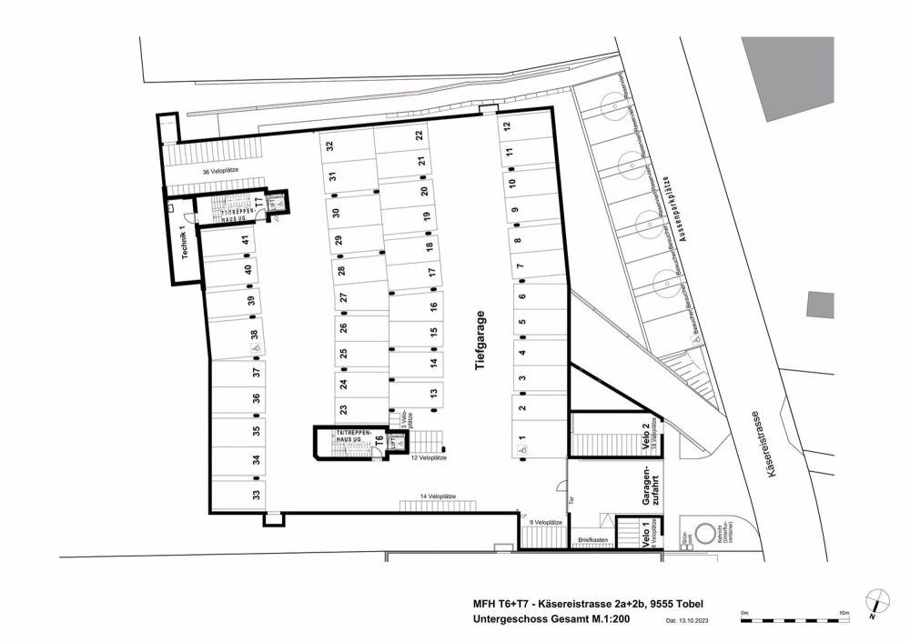
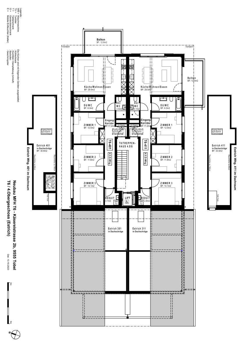
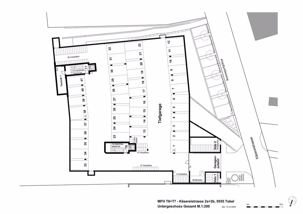
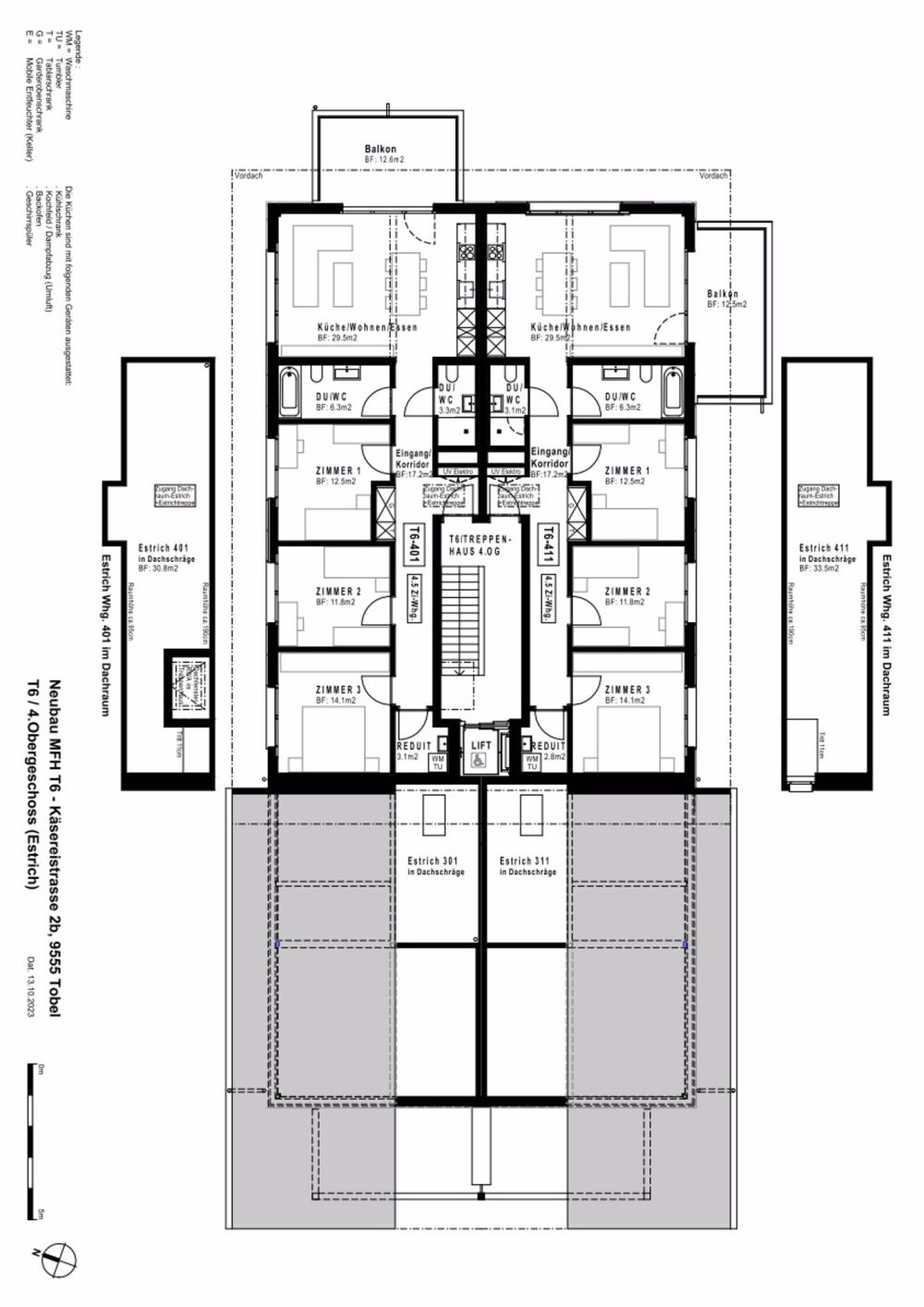
Zentrum Tobel Das "Zentrum Tobel" wächst weiter. An der Käsereistrasse 2a/b, wurden zwei weitere Wohnhäuser mit je 16 Mietwohnungen "ännet em Dorfbach" im ruhigen Teil zwischen dem renaturierten und idyllischen Dorfbach und der Grünzone im Jahre 2024 erbaut.Der Naturbach und die verkehrsberuhigend ausgeführte Erschliessungsstrasse sollen zum Aufenthalts- und Begegnungsraum für die Bewohner werden.Der Dorfmarkt mit Poststelle für den täglichen Bedarf ist ebenfalls in das Quartier eingebunden. Ökologisch und mit PlusEnergie wohnen PlusEnergie bedeutet, dass diese Häuser, über das gesamte Jahr betrachtet, mehr Energie produzieren als von den Bewohnern verbraucht wird. Der benötigte Solarstrom fürs Wohnen wird auf dem Hausdach produziert. Überschüssiger Strom wird in den hauseigenen Batterien gespeichert oder dem öffentlichen Stromnetz zugeführt.Der hohe Dämmstandard der Gebäudehülle und das innovative Energie-/ Lüftungskonzept berücksichtigen den ökologisch Aspekt und sorgen zudem für geringe Energiekosten und eine gleichbleibend hohe Wohnqualität. Wohnen "ännet em Bach" Die grosszügige Dachwohnung ist gut durchdacht und lässt viel Spielraum für die Bewohner. Wohnfläche ca. 97 m² Lift vom UG in alle Geschosse Tiefgarage mit Lademöglichkeiten für Elektrofahrzeuge genügend Fahrrad- oder Motorradabstellplätze Dachwohnung mit sichtbaren Dachschrägen und hohen Räumen Entrée mit Garderoben- und Einbauschränken separate Dusche, Lavabo, Spiegelschrank und WC separates Bad, Lavabo, Spiegelschrank, WC, Waschmaschine und Wäschetrockner (Whg. Typ 411, WA/TU in sep. Reduit) 3 Schlafzimmer Küche mit besten Küchengeräten, helle Fronten Küchen-, Ess-, Wohnbereich wird durch einen grossen Balkon erweitert grosser Balkon LED-Deckenlampen im Entrée, Korridor und Küche Estrich mit ausziehbarer Estrichtreppe elektrische Rafflamellenstoren ganze Wohnung mit Plattenbelägen und gestrichenen/lasierten Betondecken Zur Wohnung gehört ein Kellerabteil im Untergeschoss PlusEnergieBau, Minergie P-Dämmung, Photovoltaikanlage, Batteriespeicher Kontrollierte Wohnraumlüftung Kontaktieren Sie uns zur Vereinbarung einer Besichtigung. Haustiere auf Anfrage.

Kontakt

  • WICK Liegenschaftentreuhand AG
  • Weinfelderstrasse 6, 9542, Münchwilen
  • Nummer Anzeigen

Auch inseriert auf:

homegate.ch