Wohnobjekt

Ihr Traumzuhause am Dorfrand - Freistehendes Einfamilienhaus in Truttikon

CHF 3'500

 | 

131 m²

 | 

5.5 Zimmer

Ort & Lage

Blachenstrasse, 8467 Truttikon

Ihr Traumzuhause am Dorfrand - Freistehendes Einfamilienhaus in Truttikon - Karte

Verfügbarkeit

Bezugstermin:
1. Oktober 2026

Kosten

Mietpreis:
CHF 3'500

Angaben

Objektkategorie
Miete
Objektreferenz
b276eed5-06b3-4f1e-80c4-6d8b4e2a0830
Adresse
Blachenstrasse
PLZ/Ort
8467 Truttikon
Region
Andelfingen
Wohnfläche
131 m²
Grundstücksfläche
647 m²
Anzahl Zimmer
5.5
Baujahr
2026

Merkmale und Ausstattung

Balkon
Parkplatz
Kinderfreundlich

Beschreibung

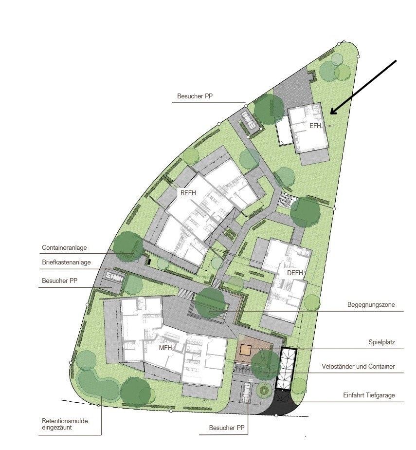
Einfamilienhaus in Truttikon - Ruhe, Sonne und Nachhaltigkeit vereint:Entdecken Sie Ihr neues Zuhause, das all Ihre Wünsche erfüllt. Eingebettet in eine ruhige und sonnige Lage am idyllischen Dorfrand, bietet die Überbauung Spitzler ein unvergleichliches Wohngefühl. Das zur Vermietung stehende Einfamilienhaus ist gestalterisch in die Überbauung integriert, ansonsten aber autark (Parkierung, Heizung etc.).Highlights:Ruhige und sonnige Lage: Geniessen Sie die idyllische Ruhe am Dorfrand, fernab vom Trubel, und lassen Sie sich von der Sonne verwöhnen. Hier finden Sie die perfekte Balance zwischen Natur und Nähe zu den umliegenden Städten.Grosszügige und helle Wohnräume: Das Einfamilienhaus ist mit grosszügigen Grundrissen und grossen Fensterfronten ausgestattet, die für lichtdurchflutete Räume sorgen. Jeder Raum lädt zum Wohlfühlen und Entspannen ein.Energieeffizient und nachhaltig: Nachhaltigkeit wird bei uns grossgeschrieben. Das Einfamilienhaus überzeugt mit modernster Energieeffizienz und ökologischen Materialien, sodass Sie nicht nur die Umwelt schonen, sondern auch von niedrigen Energiekosten profitieren.Facts:Beheizung: Erdsonden-WärmepumpePhotovoltaik-Anlage Stromerzeugung durch SonnenlichtWohnräume mit ParkettHERZOG-Küche mit sehr guter Ausstattung (Induktion, Granitabdeckung etc.)GarderobeneinbauHochwertiger Elektroausbau mit mit LED-Einbauspots, Multimedia-Verkabelung, elektrische Rafflamellenstoren und MarkisenNasszellen mit Qualitätsprodukten (z.B. Glasduschwand, Unterbaumöbel)Waschturm V-ZUGCarportPflegeleichte GartenanlageWohnfläche 131m2, zzgl. Nutzfläche im UG 34m2Konditionen:Bezug 1. Oktober 2026 oder nach VereinbarungMindestdauer 1.5 JahreNebenkostenverrechnung direkt an Mieter (Werke etc.)Dieses Einfamilienhaus bietet Ihnen nicht nur ein Zuhause, sondern auch einen Ort der Erholung und Lebensqualität. Ihr neues Zuhause wartet auf Sie!Wilkommen in Truttikon:In der idyllischen Region Weinland, eingebettet im Bezirk Andelfingen, liegt die charmante Gemeinde Truttikon.Umgeben von üppigen Wäldern, sanften Hügeln und einladenden Naherholungsgebieten wie den Husemerseen, dem Barchetsee und der Thur, lädt sie zu erfrischenden Badetagen und erholsamen Wanderungen in unberührter Natur ein.Trotz der malerischen Ruhe ist Truttikon in nur 15-20 Minuten von den lebhaften Städten Winterthur, Schaffhausen und Frauenfeld sowie innerhalb von 35 Minuten von Zürich aus erreichbar.In Truttikon finden Familien, die seit Generationen hier verwurzelt sind, ebenso wie Neuankömmlinge, die Lebensqualität suchen und schätzen, ideale Bedingungen vor. Die örtlichen Vereine prägen eine lebendige Dorfgemeinschaft und bieten den Bewohnern die Möglichkeit, aktiv am Dorfleben teilzunehmen.Der Kindergarten sowie die Oberstufe befinden sich in der benachbarten Gemeinde Ossingen, während die Primarschule direkt in Truttikon liegt.Frisches Brot, Gebäck und andere Köstlichkeiten sind in nur ein paar Gehminuten beim “Wyland Beck” erhältlich.Überzeugen Sie sich selbst von den Qualitäten und Vorzügen dieser liebenswerten Gemeinde!Bei Fragen oder Anregungen erreichen Sie uns am besten über das Kontaktformular. Die Rückmeldung folgt innert 2-3 Tagen. Sollten Sie das Objekt im Rohbau besichtigen wollen, können Sie gerne über das Kontaktformular ihre Kontaktdaten hinterlassen. Wir melden uns, sobald die Besichtigungen organisiert sind.

Kontakt

Selina Isler
  • Selina Isler
  • BlatterIMMO AG
  • gibt Ihnen gerne Auskunft.
  • Nummer Anzeigen

Auch inseriert auf:

homegate.ch