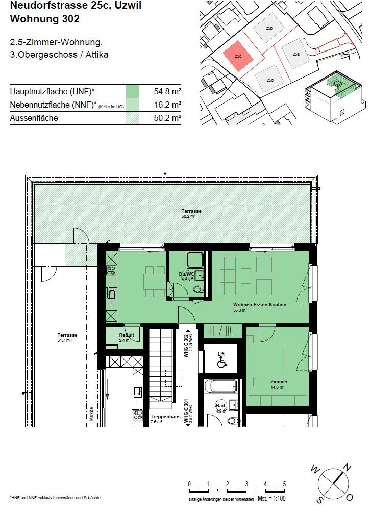
Wohnobjekt

Moderne Wohnung mit grosser Dachterrasse

CHF 1'515

 | 

57 m²

 | 

2.5 Zimmer

Ort & Lage

Neudorfstrasse 25c, 9240 Uzwil

Moderne Wohnung mit grosser Dachterrasse - Karte

Verfügbarkeit

Bezugstermin:
1. April 2026

Kosten

Nettomiete:
CHF 1'355
Nebenkosten:
160
Mietpreis:
CHF 1'515

Angaben

Objektkategorie
Miete
Objektreferenz
a13a86b5-34fa-4181-a9bb-c9cb834e125f
Adresse
Neudorfstrasse 25c
PLZ/Ort
9240 Uzwil
Region
Wil
Wohnfläche
57 m²
Anzahl Zimmer
2.5
Etage
3

Merkmale und Ausstattung

Balkon
Lift

Beschreibung

Wir vermieten diese moderne 2.5 Zimmer-Wohnung an der Neudorfstrasse 25c in Uzwil.Das erwartet Sie:Wunderschöne, lichtdurchflutete, neue Wohnung (Neubau 2021)Küche mit Glaskeramik, Backofen, Geschirrspüler, Kühlschrank und TiefkühlerHelles WohnzimmerBad (1x Dusche, 1x WC)Eigene Waschmaschine / Tumbler im grosszügigen KellerGrosse DachterrasseLiftDie Liegenschaft verfügt zudem über eine PhotovoltaikanlageNahegelegene Einkaufsmöglichkeiten Migros/Coop (5min)Autobahn Anschluss St. Gallen / Zürich sowie SBB Bahnhof (5min)Zur Wohnung können Tiefgaragenplätze à CHF 130.00/Monat oder Tiefgaragenplätze mit E-Ladestation à CHF 160.00/Monat dazu gemietet werden.Wir freuen uns über Ihre Kontaktaufnahme.Freundliche GrüsseL+B AG, HGV

Kontakt

Ramona Adank
  • Ramona Adank
  • L + B AG, HGV
  • gibt Ihnen gerne Auskunft.
  • Nummer Anzeigen

Auch inseriert auf:

homegate.ch