Wohnobjekt

Erstbezug – Helle 2.5-Zimmer-Neubauwohnung mit sonnigem Balkon

CHF 2'300

 | 

44 m²

 | 

2.5 Zimmer

Ort & Lage

Allmendstrasse 4, 8304 Wallisellen

Erstbezug – Helle 2.5-Zimmer-Neubauwohnung mit sonnigem Balkon - Karte

Verfügbarkeit

Bezugstermin:
1. April 2026

Kosten

Mietpreis:
CHF 2'300

Angaben

Objektkategorie
Miete
Objektreferenz
f587a5f3-65fc-46ef-8bed-5389d5d249ae
Adresse
Allmendstrasse 4
PLZ/Ort
8304 Wallisellen
Region
Bülach
Wohnfläche
44 m²
Anzahl Zimmer
2.5
Etage
3
Baujahr
2026

Merkmale und Ausstattung

Balkon
Lift
Garage
Schöne Aussicht
Kinderfreundlich
Rollstuhlgängig

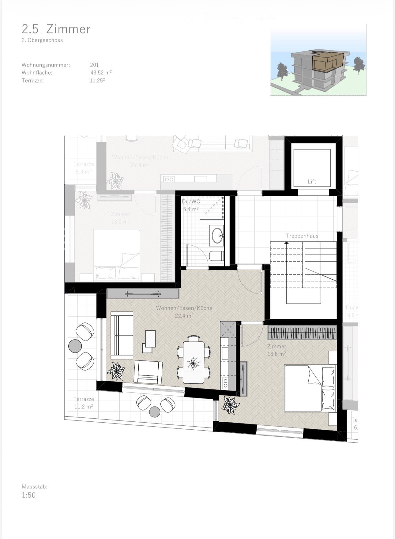
Beschreibung

Diese moderne 2.5-Zimmer-Wohnung im Erstbezug überzeugt durch ihre sehr helle und freundliche Wohnatmosphäre sowie einen durchdachten Grundriss.
Der offene Wohn- und Essbereich mit integrierter Küche wird durch grosse Fensterflächen lichtdurchflutet und bietet direkten Zugang zum sonnigen Balkon (11.2 m²) – ideal zum Entspannen.
Die moderne Küche ist hochwertig ausgestattet und fügt sich harmonisch in den Wohnraum ein. Das Schlafzimmer bietet eine angenehme Rückzugsmöglichkeit.
Das Badezimmer überzeugt mit zeitloser Ausstattung und bodenebener Dusche.
✨ Highlights
Neubau / Erstbezug
Sehr helle, lichtdurchflutete Räume
Sonniger Balkon (11.2 m²)
Moderne Küche
Lift vorhanden
Eigene Waschmaschine & Tumbler im Untergeschoss
Attraktive Lage mit schneller Anbindung nach Zürich
???? Lage
Die Wohnung befindet sich in Wallisellen mit hervorragender Infrastruktur. Einkaufsmöglichkeiten, ÖV und Naherholung sind in wenigen Minuten erreichbar. Zürich ist schnell erreichbar.

Kontakt

Ceyda Yagis
  • Ceyda Yagis
  • gibt Ihnen gerne Auskunft.
  • Nummer Anzeigen

Auch inseriert auf:

homegate.ch