Wohnobjekt

Moderne Dachwohnung mit Neubaucharakter

keine Preisangabe

 | 

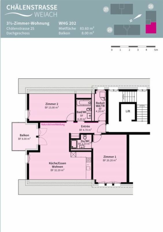
3.5 Zimmer

Ort & Lage

Chälenstrasse 27, 8187 Weiach

Moderne Dachwohnung mit Neubaucharakter - Karte

Verfügbarkeit

Bezugstermin:
1. April 2026

Kosten

Mietpreis:
keine Preisangabe

Angaben

Objektkategorie
Miete
Objektreferenz
7a89deeb-2a63-4e5b-94bb-b87bb36bc6f1
Adresse
Chälenstrasse 27
PLZ/Ort
8187 Weiach
Region
Dielsdorf
Anzahl Zimmer
3.5
Etage
2

Merkmale und Ausstattung

Balkon
Lift
Garage
Parkplatz

Beschreibung

Suchen Sie eine stilvolle Wohnung in gepflegter, moderner Umgebung in Weiach? Diese hochwertige Wohnung bietet eine perfekte Kombination aus exklusivem Design, modernster Ausstattung und luxuriösem Komfort - eine Oase zum Wohlfühlen, perfekt gelegen nahe dem Naherholungsgebiet.
Die Highlights im Überblick:
Elegante Steinwand im Wohnzimmer: Setzt ein edles Highlight und verleiht dem grosszügigen und lichtdurchfluteten Raum eine besondere AtmosphäreGebäudeautomation: Mit der «Loxone» Smart-Home-Technologie ist die Steuerung von Licht, Beschattung und Sicherheit über ein zentrales Panel oder eine App möglich, High Speed Internet wird gratis zur Verfügung gestellt Luxuriöse Badezimme: Raumhohe Feinsteinzeugplatten. Das eine Badezimmer ist mit Badewanne, Lavabo, Spiegelschrank und WC ausgestattet - das zweite Badezimmer mit Dusche, Lavabo, Spiegelschrank und WCModerne, offene Küche: Vollausgestattet mit modernsten Geräten: Backofen, grossem Kühlschrank, separatem Tiefkühler, Kochfeld und Geschirrspüler. Die Arbeitsflächen aus Keramik und eine elegante Beleuchtung setzen Akzente Komfortable Raumaufteilung: Grosszügige Schlafzimmer und ein heller, offener Wohn-/EssbereichEinladender Balkon: Grosszügiger Balkon für entspannte Stunden im FreienPraktischer Stauraum: Hochwertige Einbauschränke im Entrée und ein separates Reduit mit eigener Waschmaschine und Tumbler, Kellerabteil im UntergeschossStilvolles Interieur: Hochwertige, besonders strapazierfähige Landhausdielen und ein durchdachtes Farb- und Lichtkonzept in der ganzen WohnungKomfortable Bodenheizung: Fussbodenheizung in allen RäumenBarrierefrei: Liftanlage für bequemen Zugang zu allen GeschossenParking: Einstellplätze können für CHF 130.00 pro Monat hinzu gemietet werden Diese Wohnung erfüllt höchste Ansprüche und bietet ein einzigartiges Wohngefühl. Sie ist ideal für anspruchsvolle Singles, Paare oder Familien, die eine perfekte Kombination aus Luxus, Funktionalität und Komfort suchen.
Finanzielles:Nettomietzins: CHF 1'990.00 pro MonatNebenkostenakonto: CHF 330.00 pro MonatEinstellplatz: CHF 130.00 pro Monat
Lage:Zürich HB: 29 Min.Zürich-Flughafen: 18 Min.Öffentlicher Verkehr (Bus): 5 Gehminuten (400 Meter) Einkaufen: in wenigen Gehminuten
Haben wir Ihr Interesse geweckt? Fordern Sie jetzt weitere Informationen zur Besichtigung über das Kontaktformular an. Diese Wohnung bietet alles für einen modernen Lebensstil an einer ruhigen, bestens vernetzten Lage.
Stoop Immobilien AG

Kontakt

Kathrin Zollinger
  • Kathrin Zollinger
  • Stoop Immobilien AG
  • gibt Ihnen gerne Auskunft.
  • Nummer Anzeigen

Auch inseriert auf:

homegate.ch