Wohnobjekt

Exklusive Attikawohnung mit Weitblick und traumhafter Abendsonne

CHF 2'325

 | 

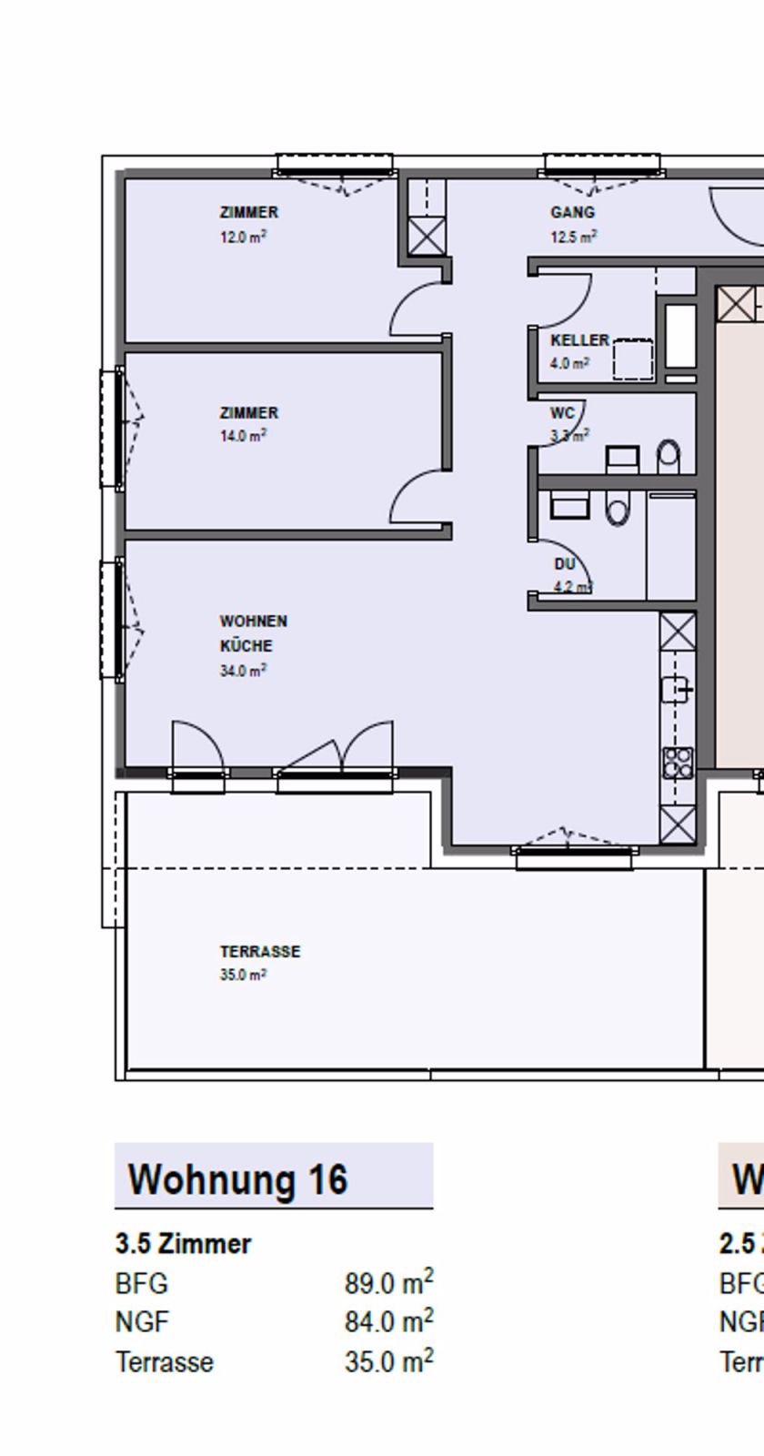
85 m²

 | 

3.5 Zimmer

Ort & Lage

8570 Weinfelden

Exklusive Attikawohnung mit Weitblick und traumhafter Abendsonne - Karte

Kosten

Nettomiete:
CHF 2'155
Nebenkosten:
170
Mietpreis:
CHF 2'325

Angaben

Objektkategorie
Miete
Objektreferenz
903d3fc6-25a7-45e0-96fb-8759303ec547
PLZ/Ort
8570 Weinfelden
Region
Weinfelden
Wohnfläche
85 m²
Anzahl Zimmer
3.5
Etage
1
Baujahr
2025

Merkmale und Ausstattung

Schöne Aussicht

Beschreibung

Ankommen, durchatmen, geniessen – willkommen in Ihrem neuen Zuhause über den Dächern von Weinfelden. Diese moderne 3.5-Zimmer-Attikawohnung überzeugt durch ihre ruhige Lage in einer Sackgasse, sonnige Ausrichtung und einen Weitblick, der bis zum Säntis reicht.
Grosszügige Räume, ein offenes Wohnkonzept und hochwertige Materialien schaffen ein Ambiente, das Eleganz und Geborgenheit vereint. Die grosse Terrasse lädt zum Entspannen ein – ob bei einem Kaffee am Morgen oder beim Sonnenuntergang mit Panoramablick.
Highlights:
Lichtdurchfluteter Wohn- und Essbereich mit Zugang zur Terrasse
Traumhafte Aussicht & absolute Privatsphäre
Hochwertiger Innenausbau mit stilvollen Materialien
Lift direkt in die Wohnetage – barrierefrei & komfortabel
Zentrale, dennoch ruhige Lage – Einkauf & ÖV in Gehdistanz
Naturnahe Umgebung mit viel Raum für Erholung
Diese Attikawohnung ist ideal für Paare, Singles oder Ruhesuchende, die modernes Wohnen mit Seele und Aussicht suchen.

Kontakt

  • Zeyt GmbH
  • Hauptstrasse 14, 8280, Kreuzlingen
  • Nummer Anzeigen

Auch inseriert auf:

immoscout24.ch