Wohnobjekt

Erstmietung im Unterdorf von Zürich-Affoltern: attraktive Familienwohnungen

CHF 3'180

 | 

90 m²

 | 

4.5 Zimmer

Ort & Lage

Horensteinstrasse 30, 8046 Zürich

Erstmietung im Unterdorf von Zürich-Affoltern: attraktive Familienwohnungen - Karte

Verfügbarkeit

Bezugstermin:
1. Oktober 2026

Kosten

Nettomiete:
CHF 2'900
Nebenkosten:
280
Mietpreis:
CHF 3'180

Angaben

Objektkategorie
Miete
Objektreferenz
a5816f5a-e1f3-4380-aa82-9c8b71aaa4ec
Adresse
Horensteinstrasse 30
PLZ/Ort
8046 Zürich
Region
Zürich Stadt
Wohnfläche
90 m²
Anzahl Zimmer
4.5
Etage
1
Baujahr
2026

Merkmale und Ausstattung

Balkon
Lift
Garage
Kinderfreundlich

Beschreibung

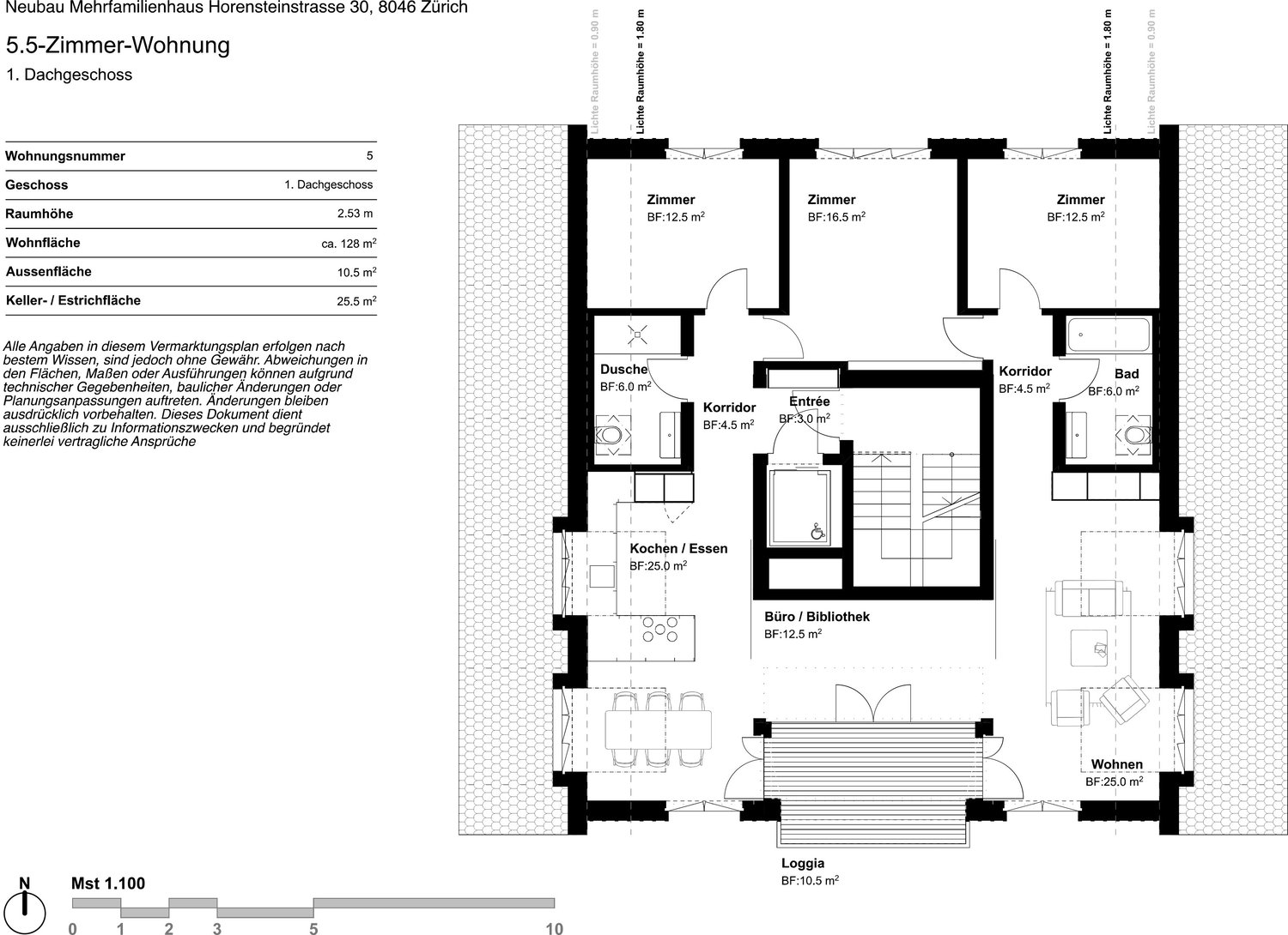
Per 1. Oktober 2026 vermieten wir in diesem Neubau diese 4 ½-Zimmerwohnungen im 1. Obergeschoss (ca. 90 m2) sowie eine 5 ½-Zimmerwohnung im 1. Dachgeschoss (ca. 128 m2).
Die Liegenschaft befindet sich im Unterdorf von Zürich-Affoltern in naturnaher Umgebung. Beide Wohnungen überzeugen durch ihre offenen Grundrisse, den modernen Innenausbau sowie die neuesten Ausstattungen in Küche und Bad.
Folgender Ausbau erwartet Sie:
Fugenlose Anhydrit-Gussbodenbeläge in warmer Optik im Entrée, Wohn- / Essbereich, Zimmer und Küche, Badezimmer und sep. Dusche mit fugenlosem PU-Belag
Moderne Küchen mit hellen Kunstharzfronten und hochwertigen Geräten (Backofen und separater Dampfgarer, Geschirrspüler, Induktionsherd, Kühlschrank mit separatem Gefrierschrank)
Wandschrank im Eingangsbereich mit integrierter Garderobe
Deckenleuchten im Korridor und Küche
Fussbodenheizung via zentraler Heizungsanlage (Wärmepumpe mit Erdsonde), Photovoltaikanlage auf dem Dach
Eigener Waschturm im Reduit, gemeinsam benutzbarer Trocknungsraum im Untergeschoss
Balkon (ca. 4 m2) mit eigener Sitzplatz-Ecke im Aussenbereich (4 ½-Zimmerwohnung)
oder
gemütliche Loggia (ca. 10,5 m2) in der 5 ½-Zimmerwohnung
Pflanzgarten-Abteil zur eigenen Bewirtschaftung
sep. Estrichabteil (ca. 8,5 m2) für die 4 ½-Zimmerwohnung
oder
sep. Estrich / Waschküche (ca. 25,5 m2) zur 5 ½-Zimmerwohnung gehörend (darf nicht als Wohnraum benutzt werden)
Lift vom Untergeschoss bis 2. Obergeschoss
Garagenplätze können ab Fr. 170.00 / Monat, Motorradplätze für Fr. 60.00 / Monat dazu gemietet werden. Die Grundinstallation für E-Mobilität ist vorhanden. Für Fahrräder sind zahlreiche Aufhängmöglichkeiten vorhanden.
Die Bushaltestellen "Unteraffoltern" oder "Blumenfeldstrasse" sowie der Bahnhof Zürich-Affoltern sind in wenigen Gehminuten erreichbar. Ab dem Bahnhof Zürich-Affoltern verkehren ganztags im 30-Minuten-Takt, zu Hauptverkehrszeiten im 15-Minuten-Takt, Züge Richtung Baden oder Oerlikon über den Zürcher Hauptbahnhof bis nach Uetikon am See. Zudem erreichen Sie mit den Buslinien 61 / 62 den Bahnhof Zürich-Affoltern in 2 Minuten, den Bahnhof Oerlikon in nur 10 Minuten.
In wenigen Gehminuten befinden sich diverse Einkaufsmöglichkeiten. Im Einkaufszentrum Zürich-Affoltern gibt es eine Apotheke, Migros mit Restaurant, Denner, ein Kleidergeschäft und die Post. Ein grosser Coop in zu Fuss in 5 Minuten erreichbar. Verschiedene Restaurants tragen zum Dorfleben bei.
Das nahe gelegene Schulhaus Blumenfeld ist eine Tagesschule (Kindergarten bis 6. Klasse) und bietet auch Hort-Betreuungsmöglichkeiten ab Kindergartenstufe an. In nächster Nähe gibt es diverse Kleinkinderkrippen.
Das Naherholungsgebiet Katzensee liegt quasi direkt vor der Haustüre und lädt ein zu Spaziergängen, Joggingrunden usw. Im Sommer ist der Katzensee sehr beliebt und bietet eine schöne Abkühlung nach dem Spaziergang. Im Baderestaurant gibt es kleine Essens- und Dessertangebote.
Haben wir Ihr Interesse geweckt? Kontaktieren Sie uns unverbindlich für die Zustellung der Vermietungsdokumentation.

Kontakt

Sandra Grauer
  • Sandra Grauer
  • Eisenegger Immobilien & Treuhand AG
  • gibt Ihnen gerne Auskunft.
  • Nummer Anzeigen

Auch inseriert auf:

homegate.ch