Wohnobjekt

Erstvermietung: Einziehen und Wohlfühlen

CHF 2'580

 | 

58 m²

 | 

2.5 Zimmer

Ort & Lage

Horensteinstrasse 30, 8046 Zürich

Erstvermietung: Einziehen und Wohlfühlen - Karte

Verfügbarkeit

Bezugstermin:
1. Oktober 2026

Kosten

Nettomiete:
CHF 2'390
Nebenkosten:
190
Mietpreis:
CHF 2'580

Angaben

Objektkategorie
Miete
Objektreferenz
67e37633-97b4-4857-8031-573cffb723a7
Adresse
Horensteinstrasse 30
PLZ/Ort
8046 Zürich
Region
Zürich Stadt
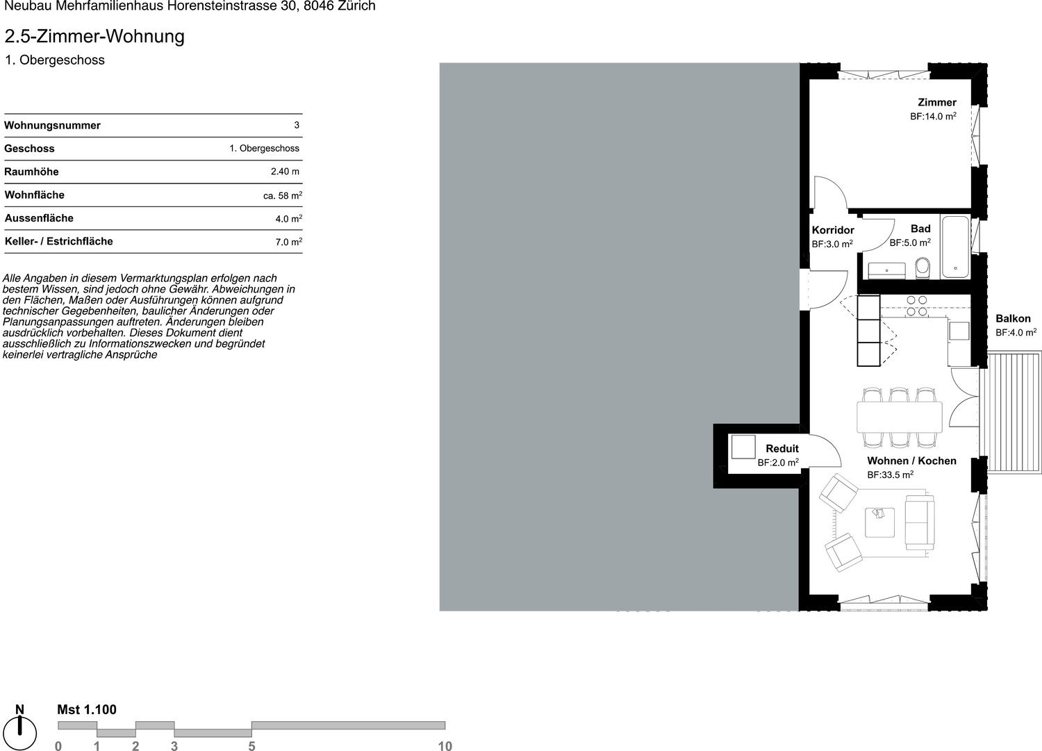
Wohnfläche
58 m²
Anzahl Zimmer
2.5
Etage
EG
Baujahr
2026

Merkmale und Ausstattung

Balkon
Lift
Garage

Beschreibung

Per 1. Oktober 2026 vermieten wir in diesem Neubau zwei 2 ½-Zimmerwohnungen (1x im Erdgeschoss und 1x im 1. Obergeschoss, je ca. 58 m2).
Die Liegenschaft befindet sich im Unterdorf von Zürich-Affoltern in naturnaher Umgebung. Alle Wohnungen überzeugen durch ihre offenen Grundrisse, den modernen Innenausbau sowie die neuesten Ausstattungen in Küche und Bad.
Folgender Ausbau erwartet Sie:
Fugenlose Anhydrit-Gussbodenbeläge in warmer Optik im Entrée, Wohn- / Essbereich, Zimmer und Küche, Badezimmer mit fugenlosem PU-Belag
Moderne Küchen mit hellen Kunstharzfronten und hochwertigen Geräten (Backofen und separater Dampfgarer, Geschirrspüler, Induktionsherd, Kühlschrank mit separatem Gefrierschrank)
Wandschrank im Eingangsbereich mit integrierter Garderobe
Deckenleuchten im Korridor und Küche
Fussbodenheizung via zentraler Heizungsanlage (Wärmepumpe mit Erdsonde), Photovoltaikanlage auf dem Dach
Eigener Waschturm im Reduit, gemeinsam benutzbarer Trocknungsraum im Untergeschoss
Sitzplatz (ca. 12,5 m2) mit grosser Rasenfläche zur Alleinnutzung
oder
Balkon (ca. 4 m2) mit eigener Sitzplatz-Ecke im Aussenbereich
Pflanzgarten-Abteil zur eigenen Bewirtschaftung
Pro Wohnung ein Keller- bzw. Estrichabteil (ca. 6 bzw. 7 m2)
Lift vom Untergeschoss bis 2. Obergeschoss
Garagenplätze können ab Fr. 170.00 / Monat, Motorradplätze für Fr. 60.00 / Monat dazu gemietet werden. Die Grundinstallation für E-Mobilität ist vorhanden. Für Fahrräder sind zahlreiche Aufhängmöglichkeiten vorhanden.
Die Bushaltestellen "Unteraffoltern" oder "Blumenfeldstrasse" sowie der Bahnhof Zürich-Affoltern sind in wenigen Gehminuten erreichbar. Ab dem Bahnhof Zürich-Affoltern verkehren ganztags im 30-Minuten-Takt, zu Hauptverkehrszeiten im 15-Minuten-Takt, Züge Richtung Baden oder Oerlikon über den Zürcher Hauptbahnhof bis nach Uetikon am See. Zudem erreichen Sie mit den Buslinien 61 / 62 den Bahnhof Zürich-Affoltern in 2 Minuten, den Bahnhof Oerlikon in nur 10 Minuten.
In wenigen Gehminuten befinden sich diverse Einkaufsmöglichkeiten. Im Einkaufszentrum Zürich-Affoltern gibt es eine Apotheke, Migros mit Restaurant, Denner, ein Kleidergeschäft und die Post. Ein grosser Coop in zu Fuss in 5 Minuten erreichbar. Verschiedene Restaurants tragen zum Dorfleben bei.
Das nahe gelegene Schulhaus Blumenfeld ist eine Tagesschule (Kindergarten bis 6. Klasse) und bietet auch Hort-Betreuungsmöglichkeiten ab Kindergartenstufe an. In nächster Nähe gibt es diverse Kleinkinderkrippen.
Das Naherholungsgebiet Katzensee liegt quasi direkt vor der Haustüre und lädt ein zu Spaziergängen, Joggingrunden usw. Im Sommer ist der Katzensee sehr beliebt und bietet eine schöne Abkühlung nach dem Spaziergang. Im Baderestaurant gibt es kleine Essens- und Dessertangebote.
Haben wir Ihr Interesse geweckt? Kontaktieren Sie uns unverbindlich für die Zustellung der Vermietungsdokumentation.

Kontakt

Sandra Grauer
  • Sandra Grauer
  • Eisenegger Immobilien & Treuhand AG
  • gibt Ihnen gerne Auskunft.
  • Nummer Anzeigen

Auch inseriert auf:

homegate.ch