Wohnobjekt

IHRE NEUE GARTENWOHNUNG

CHF 1'850

 | 

85 m²

 | 

3.5 Zimmer

Ort & Lage

Hinterfeldstrasse 18, 4222 Zwingen

IHRE NEUE GARTENWOHNUNG - Karte

Verfügbarkeit

Bezugstermin:
29. Januar 2026

Kosten

Nettomiete:
CHF 1'600
Nebenkosten:
250
Mietpreis:
CHF 1'850

Angaben

Objektkategorie
Miete
Objektreferenz
40a42dcd-2b06-4155-8b55-faebaf42c9cd
Adresse
Hinterfeldstrasse 18
PLZ/Ort
4222 Zwingen
Region
Laufen
Wohnfläche
85 m²
Anzahl Zimmer
3.5
Etage
EG

Merkmale und Ausstattung

Balkon
Lift
Garage
Schöne Aussicht

Beschreibung

Wir vermieten eine attraktive 3.5 Zimmer Wohnung in optimaler Lage in Zwingen mit folgendem Ausbaustandard:
Entrée mit Parkettboden
Grosszügiges, helles Wohnzimmer mit Parkettboden und offener Wohnküche.
Küche mit viel Stauraum, Glaskeramikherd und integriertem Dampfabzug (Bora-System), Geschirrspülmaschine, Backofen auf Sichthöhe, grosser Kühlschrank sowie separater Tiefkühlschrank. Arbeitsplatte aus Granit.
Zwei grosszügige Schlafzimmer mit Parkettboden
Badezimmer mit Lavabo, Badewanne, keramische Bodenplatten
Gäste-WC mit bodenebener Dusche, keramische Bodenplatten
Bodenheizung
Gartensitzplatz mit Südausrichtung und Rasenfläche
Veloabstellraum vorhanden
Separate Waschküche mit Waschturm
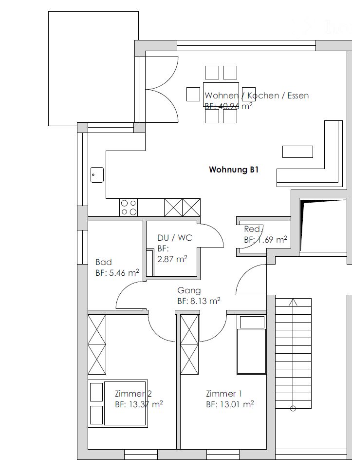
Grundrissplan einer typenähnlichen Wohnung (Küche siehe Fotos)
Ein Kellerabteil gehört zur Wohnung dazu. Ein Auto-Einstellhallenplatz kann für CHF 140.00/mtl. dazu gemietet werden.
Einkaufsmöglichkeiten (Lidl, Denner, Bäckerei etc.), Schule und öffentliche Verkehrsmittel (Bahn, Bus) sind in kurzer Gehdistanz (2-10 Min.) gut erreichbar.
Haben wir Ihr Interesse geweckt? Gerne zeigen wir Ihnen diese wunderschöne Wohnung bei einem unverbindlichen Besichtigungstermin. Wir freuen uns über Ihre Kontaktaufnahme.

Kontakt

Planungs- und Baubüro Stenz AG
  • Planungs- und Baubüro Stenz AG
  • gibt Ihnen gerne Auskunft.
  • Nummer Anzeigen

Auch inseriert auf:

homegate.ch