Wohnobjekt

Projekt Heustallausbau in Susch

keine Preisangabe

 | 

165 m²

 | 

6 Zimmer

Ort & Lage

Terza d'Immez 25A, 7542 Susch

Projekt Heustallausbau in Susch - Karte

Kosten

Kaufpreis:
keine Preisangabe

Angaben

Objektkategorie
Kauf
Objektreferenz
11eb9e17-be6b-4567-9acf-92181b984613
Adresse
Terza d'Immez 25A
PLZ/Ort
7542 Susch
Region
Inn
Wohnfläche
165 m²
Grundstücksfläche
318 m²
Anzahl Zimmer
6

Merkmale und Ausstattung

Feuerstelle
Garage
Schöne Aussicht

Beschreibung

Das Projekt
Die Chasa Terza d‘Immez war in ihrem Ursprung ein typischer Engadiner Heustall. Die massive Bausubstanz blieb trotz des Eingriffs in den 70er Jahren erhalten. Der Stall war damals über den Sulèr des angrenzenden Wohnhauses erschlossen. Die Verbindungen der beiden Hausteile wurden aufgelöst. Dennoch sind sie bis heute erkennbar.
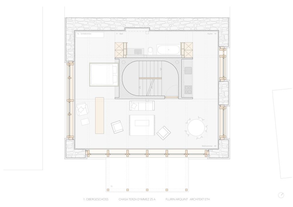
Das neue Projekt schafft, inspiriert durch den Charakter des Engadiner Heustalls, zeitgemässen Wohnraum. Die Einzigartigkeit des Gebäudetyps wird wieder erkenn- und erlebbar gemacht. Das Gebäude wird von seinen Altlasten befreit und tritt neu wieder selbstbewusst in Erscheinung. Der Eingriff fokussiert primär auf die beiden Wohngeschosse mit minimalen Anpassungen im Erdgeschoss. Das typische Engadiner Kaltdach bleibt erhalten, und der Dachraum dient als Baureserve.
Die Balkone werden entfernt und durch eine ortstypische Holzlaube (Lobgia) ersetzt Der Innenausbau ist in Holz geplant.
Realisieren Sie mit uns dieses einzigartige Projekt in einem Tablà in Susch!
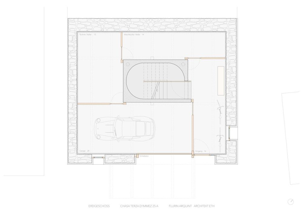
Grundriss Erdgeschoss
Direkt an den Inn angrenzend liegt der Gartenbereich des Gebäudes mit dem Hauseingang. Im Erdgeschoss befindet sich zentral der Eingangsbereich mit Technikraum, Abstellplatz und Garage.
Susch
Das schmucke Engadinerdorf Susch überzeugt in vielerlei Hinsicht als idealer Lebensraum. Einer dieser Vorzüge ist die gute Anbindung in alle Richtungen. Die zentrale Lage des Ortes im Engadin ist vorteilhaft für Ausfahrten ins Ober- und Unterengadin, ebenso wie ins Val Müstair und ins Südtirol, Italien und Österreich. Durch den Flüelapass und den nahegelegenen Vereina-Tunnel besteht eine ideale Anbindung nach Landquart und in die restliche Schweiz.
Die markanten Wahrzeichen Suschs sind die beiden Türme «La Tuor Planta» und «La Praschun». Doch der beschauliche Ort mit rund 220 Einwohnern bietet noch mehr Kultur und Kulturgüter, beispielsweise den Aussichtspunkt mit der geschichtsträchtigen Burgruine «Fortezza Rohan» und das Muzeum Susch.
die Lage
Die Chasa Terza d’Immez liegt abgewandt von der Strasse, dort wo die Susasca in den Inn mündet. Die grossen Heuställe, die bei den Engadinerhäusern die Hälfte des Gebäudevolumens ausmachen, wurden zur sonnigen Südseite positioniert, um die Wärme für die Trocknung des Heus zu nutzen. Heute kommt diese Lage beim Ausbau des Heustalls den Bewohnern zugute.
Die sonnige Lage und der freie, unverbaubare Blick auf die alte gedeckte Holzbrücke und die grandiose Berglandschaft prägen das entspannte Wohngefühl.
Gerne geben wir Ihnen weitere Informationen, wie Sie dieses Traumobjekt mit dessen Verfasser zusammen realisieren können.

Kontakt

Martin Lauber
  • Martin Lauber
  • Lauber Barbüda Treuhand AG
  • gibt Ihnen gerne Auskunft.
  • Nummer Anzeigen

Auch inseriert auf:

homegate.ch