Wohnobjekt

AFFITTASI Nuovi appartamenti in Residenza Botüm a Biasca

CHF 1'925

 | 

3.5 Zimmer

Ort & Lage

Via G. Papa, 6710 Biasca

AFFITTASI Nuovi appartamenti in Residenza Botüm a Biasca - Karte

Verfügbarkeit

Verfügbar ab:
10. April 2026

Kosten

Mietpreis:
CHF 1'925

Angaben

Objektkategorie
Miete
Objektreferenz
6fee25e3-a7b7-4c1a-bd55-a72b2c94cf8b
Adresse
Via G. Papa
PLZ/Ort
6710 Biasca
Region
Distretto di Riviera
Anzahl Zimmer
3.5
Baujahr
2026

Beschreibung

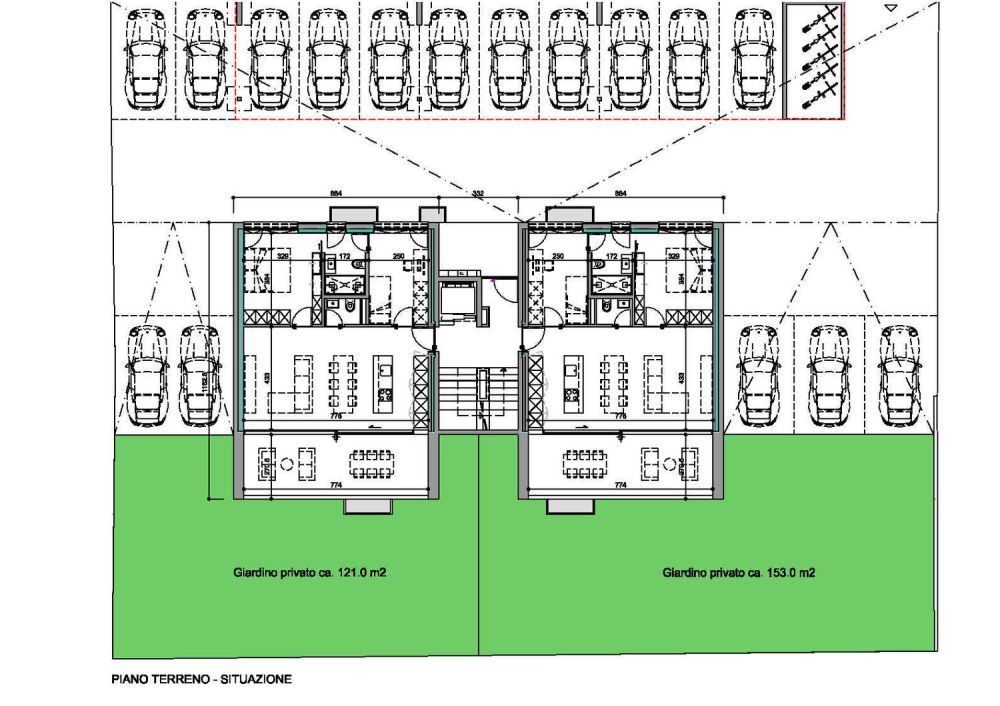
Nuova costruzione Residenza Botüm a Biasca
Sorge a Biasca, in via Parallela, il nuovo progetto Residenza Botüm, composto da 8 moderni appartamenti da 3.5 locali, progettati con attenzione al comfort e alla qualità.
Le unità abitative saranno dotate di finiture di alto standing, ampie terrazze, bagno padronale e doppio servizio, oltre ad un luminoso soggiorno ideale per vivere in relax.
I lavori di costruzione sono attualmente in corso e procedono secondo programma.
Consegna prevista: estate 2026.
Non perdere l'occasione per riservare il tuo nuovo appartamento in una zona tranquilla, ben servita ed immersa nella natura.
Pigioni mensili stabilite, come indicato di seguito:
- Appartamenti al Piano Terreno: ANCORA UNO DISPONIBILE
CHF 2'000.00/mese (tutto compreso, affitto, spese a forfait e 2 posti auto di cui 1 coperto e 1 scoperto)
- Appartamenti al 1° piano:
CHF 1'925.00/mese (tutto compreso, affitto, spese a forfait e 2 posti auto di cui 1 coperto e 1 scoperto)
- Appartamenti al 2° piano:
CHF 1'950.00/mese (tutto compreso, affitto, spese a forfait e 2 posti auto di cui 1 coperto e 1 scoperto)
- Appartamenti al 3° piano (attico): RISERVATI
CHF 2'000.00/mese (tutto compreso, affitto, spese a forfait e 2 posti auto di cui 1 coperto e 1 scoperto)

Kontakt

ADN Studio Tecnico SA SA
  • ADN Studio Tecnico SA SA
  • ADN Studio Tecnico SA
  • gibt Ihnen gerne Auskunft.
  • Nummer Anzeigen

Auch inseriert auf:

homegate.ch