Wohnobjekt

Wunderschöne Attika-Wohnung in neuer Wohnüberbauung

CHF 2'590

 | 

62 m²

 | 

2.5 Zimmer

Ort & Lage

Rebgasse 27, 4102 Binningen

Wunderschöne Attika-Wohnung in neuer Wohnüberbauung - Karte

Kosten

Nettomiete:
CHF 2'220
Nebenkosten:
370
Mietpreis:
CHF 2'590

Angaben

Objektkategorie
Miete
Objektreferenz
d865802f-fb0a-45e7-a42e-176c354495de
Adresse
Rebgasse 27
PLZ/Ort
4102 Binningen
Region
Arlesheim
Wohnfläche
62 m²
Anzahl Zimmer
2.5
Etage
2
Baujahr
2025

Merkmale und Ausstattung

Balkon
Lift
Garage
Schöne Aussicht
Parkplatz

Beschreibung

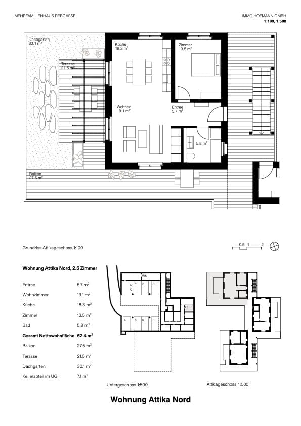
Die kleine Wohnüberbauung mit 9 Wohnungen besteht aus drei dreigeschossigen Gebäudekörpern, es handelt sich um einen Neubau, der ab 01. März 2026 oder nach Vereinbarung bezugsbereit ist. Die Wohnung ist grosszügig bemessen und lichtdurchflutet, mit heller Holzdecke und Gussboden, die eine Atmosphäre moderner Gemütlichkeit vermitteln.
Die 2.5 Zimmer-Attika-Wohnung verfügt über einen grosse Terrasse/Dachgarten und Balkon mit sehr schöner Aussicht. Der Wohnraum ist sehr hell und grosszügig mit Einbauschränken. Die Wohnung verfügt über einen eigenen Waschturm.
Die Wohnungen sind durch einen offenen Laubengang erschlossen.
Das Gebäude ist in konsequenter Holzbauweise errichtet. Zudem steht ein schöner Garten zur gemeinsamen Nutzung zur Verfügung.
Ein Garage-Platz kann dazu gemietet werden.

Kontakt

Gioia Hofmann / Immo Hofmann GmbH
  • Gioia Hofmann / Immo Hofmann GmbH
  • gibt Ihnen gerne Auskunft.

Auch inseriert auf:

homegate.ch