Wohnobjekt

Appartement à Crissier

CHF 2'180

 | 

78 m²

 | 

3.5 Zimmer

Ort & Lage

Chemin des Sous-Bois 3, 1023 Crissier

Appartement à Crissier - Karte

Verfügbarkeit

Verfügbar ab:
1. Mai 2026

Kosten

Mietpreis:
CHF 2'180

Angaben

Objektkategorie
Miete
Objektreferenz
0e56fe9e-486f-4dab-b753-c4d6645a3045
Adresse
Chemin des Sous-Bois 3
PLZ/Ort
1023 Crissier
Region
Lausanne
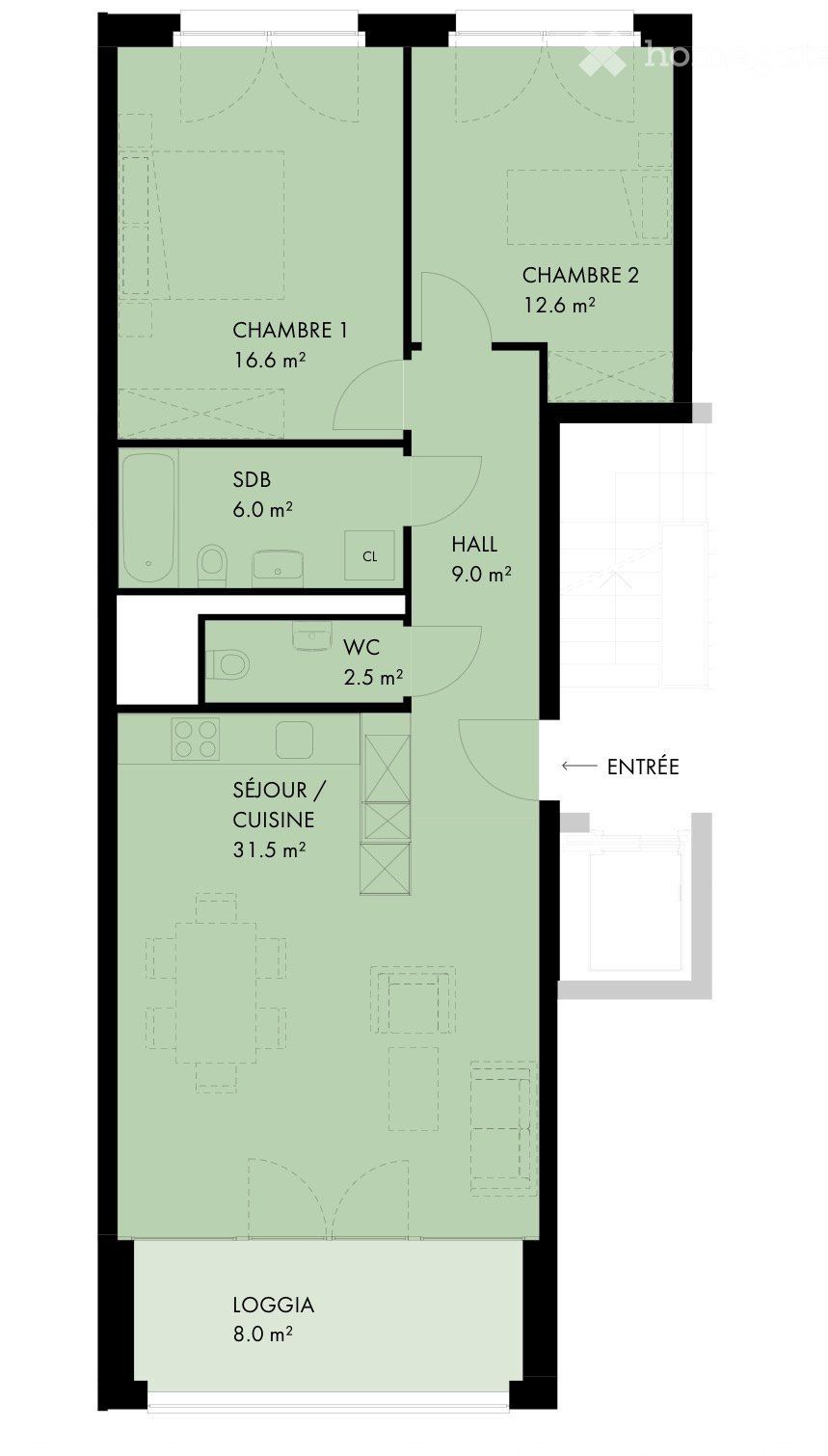
Wohnfläche
78 m²
Anzahl Zimmer
3.5
Etage
5
Baujahr
2024

Merkmale und Ausstattung

Haustiere erlaubt
Balkon
Lift
Parkplatz
Kinderfreundlich
Rollstuhlgängig
Minergie

Beschreibung

Loyer brut: CHF 2180 par mois
Loyer net: CHF 1980 par mois
Charges: CHF 200 par mois
5ème étage
Pièces: 3 ½
Surface: 78m²
Disponibilité: 1. mai 2026
Annee de construction: 2024
Possibilité de le visiter ou de faire une visite virtuelle sur le site de l'orée

Kontakt

Oliveira
  • Oliveira
  • gibt Ihnen gerne Auskunft.
  • Nummer Anzeigen

Auch inseriert auf:

homegate.ch